 |
|
 |
| Автор |
Сообщение
|
victorvm
Зарегистрирован: Сб 15 Март 2025, 16:22
Сообщения: 33
Регион: новосибирск
|
Добавлено:
Пт 21 Март 2025, 19:24
|
  |
Печное строительство - одна из глав жизни русского архитектора П. М. Еропкина.
перенос темы с форума https://www.forumhouse.ru/threads/568316/
Автопортрет размещенный на сайте Шведского Национального музея -
https://collection.nationalmuseum.se/sv/collection/item/239558/
Почему именно этот автопортрет может быть авторским , и принадлежать русскому архитектору 18 века Петру Михайловичу Еропкину.
1. Автопортрет находится в колекции , где находятся чертежи и рисунки связанные с Российской архитектурой
2. На сайте указано , что автопортет выполнен художником , но на столе у автора
расположенны чертежные принадлежности ( инструменты архитектора - циркуль,транспортир )
3. Сзади за автором находится стелаж с папками (в большом количестве), что как раз соответсвует деятельности П.М.Еропкина , как руководителя и архитектора .
|
| Описание: |
| Предпологаемый автопортрет П.М.Еропкина. |
|
| Размер файла: |
622.39 КБ |
| Просмотров: |
52 раз(а) |

|
|
|
  |
 |
victorvm
Зарегистрирован: Сб 15 Март 2025, 16:22
Сообщения: 33
Регион: новосибирск
|
Добавлено:
Пт 21 Март 2025, 20:56
|
  |
|
  |
 |
Андрей_Алексеевич

Зарегистрирован: Пн 13 Декабрь 2010, 19:17
Сообщения: 5964
Регион: малая родина Павлова, Скобелева, Циолковского, Уткиных и др.
|
Добавлено:
Сб 22 Март 2025, 00:23
|
  |
стр. 25 -- об оплате труда печников
|
_________________ Печник - милостью и промыслом Божиим.
Печное отопление частного дома и т.п., авторское сопровождение проектов, наставничество в т.ч. дистанционное, партнёрство в кладке печей.
89106130763 МТС
andrejka61@mail.ru
andrej.kuzmischev@yandex.ru
| Описание: |
|
| Размер файла: |
398.41 КБ |
| Просмотров: |
60 раз(а) |

|
|
|
   |
 |
Андрей_Алексеевич

Зарегистрирован: Пн 13 Декабрь 2010, 19:17
Сообщения: 5964
Регион: малая родина Павлова, Скобелева, Циолковского, Уткиных и др.
|
Добавлено:
Сб 22 Март 2025, 00:30
|
  |
... и несколько слов о приоритетах...
|
_________________ Печник - милостью и промыслом Божиим.
Печное отопление частного дома и т.п., авторское сопровождение проектов, наставничество в т.ч. дистанционное, партнёрство в кладке печей.
89106130763 МТС
andrejka61@mail.ru
andrej.kuzmischev@yandex.ru
| Описание: |
|
| Размер файла: |
196.87 КБ |
| Просмотров: |
56 раз(а) |

|
|
|
   |
 |
victorvm
Зарегистрирован: Сб 15 Март 2025, 16:22
Сообщения: 33
Регион: новосибирск
|
Добавлено:
Сб 22 Март 2025, 04:55
|
  |
О производстве кирпича .(Трактат - Кодекс )
|
| Описание: |
|
| Размер файла: |
720.75 КБ |
| Просмотров: |
51 раз(а) |

|
|
|
  |
 |
victorvm
Зарегистрирован: Сб 15 Март 2025, 16:22
Сообщения: 33
Регион: новосибирск
|
Добавлено:
Вс 30 Март 2025, 18:24
|
  |
Продолжая тему о архитекторе Петре Михайловиче , хочу привести статью
ПАМЯТНИК ЕМУ — ГОРОД. Есть деяния – величие которых прославляют в веках и ... статье: Мильков В.И., Мильков В. В. Садки // Московский журнал. 2012. № 6 ...
https://www.leocdn.ru/uploadsForSiteId/200898/content/b43f2abf-a489-4366-8f71-dd21053b6565.pdf
.............. Рукописное наследие Петра Еропкина после его гибели постигла печальная судьба. После ареста пропал первый, собственно авторский вариант
трактата. Черновик перевода Палладио, к счастью, сохранился,
переплетенный с бумагами «Должности Архитектурной экспедиции». Но
только черновик! Не дошел до нас в полном составе и проект «О
поправлении русских государственных дел». А. П. Волынский успел
уничтожить рукопись.
Не смотря на то, что имя репрессированного автора власти предали
забвению, причастность Петра Еропкина к текстам «Должности»
чувствуется во многих разделах. Трактат буквально пропитан идеями
петербургского градостроителя. Оно и понятно, в Комиссии не было равного
ему человека по философской образованности, не было никого другого,
обладающего столь обширной осведомленностью в достижениях разных
отраслей наук и художеств. Вклад Петра Михайловича в трактат столь
значителен, что если бы вынули из него заложенный Еропкиным фундамент,
трактат попросту бы рассыпался.
Главная идея трактата родилась из стремления зодчего преодолеть
несовершенство и неразбериху при организации строительства в ту
неблагодарную для созидания эпоху. Под пером главного зодчего Комиссии
о санкт-петербургском строении затребованный властями как инструкция
документ превратился в фундаментальный архитектурно-строительный
кодекс. В 30 главах «Должности» подробно расписаны функции и
обязанности архитектора, регламентированы принципы планировки города,
включая отвод мест, составление планов и наблюдение за строительством. В
качестве базового формулировался принцип государственного упорядочения
всего архитектурного дела. Проводилась мысль о высокой ответственности
градостроителя за качество и красоту своих творений. Критерий качества
39
работы архитектора по Еропкину определяется по формуле: пропорции,
крепость, красота. Эстетическому совершенству, по мысли Петра Еропкина,
должен способствовать союз архитектуры, скульптуры и живописи. Для
того, чтобы обеспечить Россию кадрами, которые способны реализовать
поставленные задачи, намечался план создания Архитектурной академии.
Скрупулезное внимание уделено технике, строительным материалам и
приемам, применяющимся в архитектурном деле. Многие строительнотехнические правила поясняются иллюстративно. Чисто ремесленная
сторона дела конечно важна, но вся ее детализация вдохновлялась высокими
задачами предназначения зодчества и зодчих.
В истории отечественной архитектуры то был первый русский
теоретический трактат, в котором утверждалось государственное значение
градостроительного искусства, излагалась программа централизованной
организации архитектурно-строительного дела. «Должность Архитектурной
экспедиции» положила начало русской архитектурной теории. В своих
положениях Еропкин опирался на существовавшую до него традицию.
Трактат включал изложение положений «славнейших» европейских
теоретиков Витрувия и Андреа Палладио. Видимо Петр Михайлович хотел
познакомить русских архитекторов с подлинными текстами классиков и
взялся за перевод на русский язык знаменитого трактата «Четыре книги об
архитектуре» Палладио.
Представление о кругозоре Петра Еропкина могла бы составить его
библиотека. Но и о ней мы не имеем точных и полных сведений. По описи,
сделанной при аресте, числится 319 книг. Исследователи полагают, что то
была «рабочая библиотека» зодчего. 30 книг по архитектуре, среди них как
редкость, книги по архитектуре военной. В библиотеке имелась техническая
и математическая литература, книги по точным наукам, сочинения об
античном мире и Италии. Многие издания на итальянском, французском и
немецком языках, которыми владелец библиотеки владел в совершенстве.
Интерес к истории и архитектуре древнего Рима и милой сердцу Италии —
понятен. На италийской земле, у подножия прославленных творений
античных зодчих и художников, брал начало корень «художества»
40
Еропкина, его первоначальное архитектурное образование, которое не
прекращалось потом всю жизнь. Где-то рядом с «Введением в древнюю
республику Римскую», «Уставами бедных болонских монахов», стояло на
полке и «Новое описание италианских путешеств», и «Дант с новым и полезным толкованием». В библиотеке имелись древнерусские летописи, которыми пользовался как драгоценными историческими источниками
В. Н. Татищев. Из свидетельств первого русского историка мы об этом знаем
точно, но летописи в опись не е попали. Зато в перечне, составленном
небрежно и безграмотно, упоминаются «комментари о Москве две книги».
Поражает широта культурных и научных интересов этого человека,
интересовавшегося разными областями человеческого знания и
углублявшегося в историю человеческой культуры от античных времен до
ХУП столетия. Специалисту и гражданину гуманитарная литература, как
можем видеть, была не менее важна, чем узко профессиональные работы.
К большому сожалению, не найдены личные бумаги Петра Еропкина,
отчего так скудны наши представления о биографии этого замечательного
человека. Но то, что мы знаем о Петре Михайловиче, позволяет говорить о
нем, как натуре высоко одухотворенной, углубленно осознающей свое место
и предназначение в обществе, на родной земле. Удивительная личность!
Такие люди являются раз в столетие. Бироновские сатрапы знали, кого
возводили на плаху.
В пантеоне славных разумом патриотов России Петр Еропкин занимает
одно из самых достойных мест. Он создал город по величественной красоте
и стройности архитектурных ансамблей славный своей неповторимостью во
всем мире. Совершил подвиг гражданина столь же великий и дерзновенный,
сколь прекрасен и смел был его созидающий на века зодческий замысел.
Работа Петра Еропкина в Комиссии о санкт-петербургском строении
вечной славой увенчала художнический гений одного из самых
замечательных «птенцов гнезда Петрова». Еропкинский план Петербурга —
творение века, одно из высших достижений XVIII столетия в
градостроительстве. Он выдержал испытание временем, сохранив в своей
основе планировку, заданную его творцом.
41
Пока не написана детальная повесть о жизни и подвиге архитектора Петра Еропкина. Нет посвященных творчеству Еропкина монографий. Еще не
поставлено ему памятника на родной земле Подмосковья. Нет памятника
Еропкину и в городе на Неве, который обязан ему своей красотой и
органической согласованностью планировки с природным окружением.
Только сам град Великого Петра остается бессмертным памятником творцу
его, свершившему за три года неслыханную в мировой практике градостроительную работу. В этом, наверное, и есть самым убедительный знак в
судьбе знаменитого зодчего.
Рукописные работы и чертежи архитектора П.М.Еропкина могли исчезнуть и появится уже у других авторов , позже. Но вот идеи , и разработки автора были воплощены в жизнь , иначе быть не могло , так как он находился в рабочем контакте со строителями и архитекторами , чиновниками .
В "летописи открытий и изобретений .."
Говорится , что в 1736 году начали строить в России кирпичные , теперь употребляемые , изнутри топимые печи, ......
Мы видим , что печи в момент написания трактат- кодекса начали строиться , а вот что в них было нового , не совсем понятно . Только ли конструктивные особенности печей были новы или же цепочка конструктивных решений печного строительства позволила строить печи нового типа .
Начнем с того , что было до этого - .... Прежде того времени имели в России голландские , изразцовые печи.
Голландские печи.
Камин из Голландии . 18 век.
https://vk.com/@696157252-kamin-iz-gollandii-18-vek
Рождение «голландской» печи в России.
Воспользуюсь информацией с сайта kaminline.ru/stati/rozh....
Первое упоминание о «голландской печи» относится к в 1644 году. Надпись о такой эффективной обогревательной системе находится на столпе в городе Вестзаане. Петр Великий, пребывая в Нидерландах в 1697 году в городе Зандаме, не мог увидеть «голландки» в их классическом виде. Так как в то время в этой стране были широко распространены обычные большие камины «haard» с глазурированной отделкой.Поэтому известная нам всем искусно отделанная отдельно стоящая голландская печь – это на самом деле адаптированный под российские вкусы и условия эксплуатации нидерландский камин с объёмной топкой. Так что в этом случае произошедшая ассимиляция открыла удивительный простор для творчества русских печников.
Сведений о надписи не нашел подвердить такое немогу , а в остальном вполне соответствует.
В нучной статье Е. А . Авдеевой
Отопительные приборы первой четверти XVIII в.на примере дворцов А . Д. Меньшикова в Петербурге и пригородах.
file:///home/vm/%D0%A0%D0%B0%D0%B1%D0%BE%D1%87%D0%B8%D0%B9%20%D1%81%D1%82%D0%BE%D0%BB/3/Andreeva_04.pdf
www.forumhouse.ru/attachment...
Наблюдаем схожую информацию. Как все же понять о какой констукции идет речь , что за печь и печь ли это , почему именно голландский камин был транформирован. Отопопление дома с помощью огня под высоким вытяжным колпаком было мало эффективно.Кроме того высоко размещенный колпак дымохода создавал сильное задымление .Неприятное задымление было вызвано высоким колпаком и плохой подачей кислорода, поскольку огонь разводился на самом низу. Красота , ушла на второй план. Что же предприняли голландские мастера , посмотрим . В России мы вряд ли сможем , что то найти посмотрим в Голландии ведь голландские мастера возрашались домой и наверняка приобретенный опыт и знания применяли у себя дома .
nl.wikipedia.org/wiki/Schoo...
beeldbank.cultureelerfgoed.nl/rce-mediab...
Русская печь в Голланди , а у нас голландская .Смотрим - Описание
Интерьер виллы, русская печь с терракотовым антаблементом, рельефом и каминной полкой
beeldbank.cultureelerfgoed.nl/rce-mediab...
beeldbank.cultureelerfgoed.nl/rce-mediab...?
beeldbank.cultureelerfgoed.nl/rce-mediab... asc
Строили у нас , что то подобное . Рассмотрим проект архитектора Коробова
www.prlib.ru/item/13335...
В проекте на разрезе правого крыла здания наблюдаем два камина(или каминопечи) .
Более наглядно такой тип конструкции можно посмотреть на
архитектурном сайте Санкт-Петербурга в теме - Старинные печи и камины forum.citywalls.ru/topic371.html
Вывод можно сделать однозначный "голландская печь" , это голландский камин трансформированный в каминопечь , голландскими , а возможно и русскими печниками или архитекторами
Дополнительный материал - " Голландская печь" - исторической поиск на форуме - www.forumhouse.ru/threads/53...
На сайте www.prlib.ru/section/13... находится папка с подборкой различных печей , в том числе и похожая на печь и на камин . Вырезка из чертежа файл - Светлица 2 , старый опыт бывает полезен , вероятно рассматривался и изучался.
https://vk.com/id696157252
|
| Описание: |
|
| Размер файла: |
198.13 КБ |
| Просмотров: |
58 раз(а) |

|
| Описание: |
|
| Размер файла: |
88.72 КБ |
| Просмотров: |
56 раз(а) |

|
|
|
  |
 |
victorvm
Зарегистрирован: Сб 15 Март 2025, 16:22
Сообщения: 33
Регион: новосибирск
|
Добавлено:
Вс 30 Март 2025, 19:49
|
  |
|
  |
 |
victorvm
Зарегистрирован: Сб 15 Март 2025, 16:22
Сообщения: 33
Регион: новосибирск
|
Добавлено:
Вс 30 Март 2025, 19:59
|
  |
Продолжение.
|
| Описание: |
| Русская печь ( В России голландская ) |
|
| Размер файла: |
243.96 КБ |
| Просмотров: |
40 раз(а) |

|
| Описание: |
|
| Размер файла: |
702.82 КБ |
| Просмотров: |
46 раз(а) |

|
| Описание: |
|
| Размер файла: |
267.39 КБ |
| Просмотров: |
43 раз(а) |

|
| Описание: |
|
| Размер файла: |
456.63 КБ |
| Просмотров: |
46 раз(а) |

|
| Описание: |
| чертеж архитектора Коробова |
|
| Размер файла: |
481.05 КБ |
| Просмотров: |
42 раз(а) |

|
|
|
  |
 |
victorvm
Зарегистрирован: Сб 15 Март 2025, 16:22
Сообщения: 33
Регион: новосибирск
|
Добавлено:
Пн 31 Март 2025, 05:43
|
  |
Из описания в научной статьи
Е.А. А н д р е е в ой
ОТОПИТЕЛЬНЫЕ ПРИБОРЫ ПЕРВОЙ ЧЕТВЕРТИ XVIII в.
на примере дворцов А.Д. Меншикова в Петербурге и пригородах *
....Большой Ораниенбаумский дворец, а точнее его центральная часть, был заложен ле-
том 1711 г. Второй этап строительства дворца начался в 1716 г. С этого же года отделывались
многие интерьеры центрального корпуса 43 .
В этом дворце было большое количество каминов. Так, из 15 жилых палат цен-
тральной части парадного этажа 11 отапливались каминами. Камины были и во фли-
гелях. Кроме того, здесь также были установлены оригинальные по своему устройству
отопительные приборы камино-печи, которые отличались от обычной печи широким и
высоким топочным отверстием, наподобие каминов. Смысл их состоял в том, что они,
имея внешний вид более близкий к камину, держали тепло своей нагретой массой прак-
тически как печи. Такие камино-печи были установлены в обеих «передних» палатах
дворца 44 . В описи 1728 г. они названы «комен, над ним печь». Описание следующее:
«... убраны плитками галанскими. Капители и гзымзы местами позолочены и высеребря-
ны. При оной печи мешечик и щетка лаковой работы. У оного мешечка трубка медная
и обита медными гвоздми» 45 . Более подробное описание этого отопительного прибора
содержится в описи 1745 г.: «...камин с печью... убран з галанскими ж с лица плитками,
полуцикрульной, при оном карниз по местам и впадины вызолочены местами, да по
обе стороны того комня на пиодесталах пилястры коринтического ордера с резными
золочеными капителями и с их украшениями из дерева, которые выкрашены голубою
краскою, да в тех же пилястрах имеются каналеты, в них местами вызолочено» 46 . Как
отмечает М.А. Павлова, в обеих «передних» в другом углу был поставлен шкаф, оформ-
ление которого повторяет декор камино-печи: «...по обе стороны того шкафа со стороны
зделаны пилястры, подобно как у камина» 47 .
Можно сказать , что " Голландскими " печами первовоначально и называли усовершенствованные голландские камины ( [/url] https://geschichte-der-fliese.de/norden4.jpg [url]). В дальнейшем из-за внешней схожести "Голландских " печей и печей " Топимых изнутри " это название закрепилось и за новыми печами . А трагические события произошедщие в Санкт - Петербурге , и приведшие к ужасной казни архитектора П.М.Еропкина и ссылке в сибирь его помощника и друга Ивана Яковлевича Бланк (российский архитектор немецкого происхождения, отец архитектора К. И. Бланка. Известен постройками Знаменской церкви в Царском Селе, Троицкой церкви в Красном селе, фонтанов «Шахматная гора» и «Римские фонтаны» в Петергофе - https://golnk.ru/kOO47) , еще больше закрепили такое название за печами в то время . Думаю , что никто бы не осмелился говорить в то время о создателе этих печей.(Участники заговора были подвергнуты пыткам и приговорены к смертной казни. 27 июня 1740 года казнь состоялась на Сытном рынке близ Петропавловской крепости . Тела казненных без церковного обряда были захоронены у ограды Сампсониевской церкви. Их имущество было конфисковано, а обширная библиотека Еропкина передана Академии наук.)
В дальнейшем , уже в присвоенных и опубликованных работах " Фурнологами" под своим именем приводятся сведения о строительстве "Голландских" печей голландскими мастерами . Но говорить о голландских мастерах в конце 18 века , как о недавно присходящем , по моему не очень корректно . Вот для начала 18 века (36 -40 г) в самый раз , уже в этот период голландских мастеров практически не осталось. В работах архитектора П.М.Еропкина об этом вполне уместно , и в соответсвии времени было написано.
|
| Описание: |
| Голландия .Фонд «Мизерикорд» «Дом в саду» Капуцийненстраат |
|
| Размер файла: |
87.08 КБ |
| Просмотров: |
42 раз(а) |

|
| Описание: |
Е.А. А н д р е е в а ОТОПИТЕЛЬНЫЕ ПРИБОРЫ ПЕРВОЙ ЧЕТВЕРТИ XVIII в. на примере дворцов А.Д. Меншикова в Петербурге и пригородах |
|
 Скачать |
| Название файла: |
Andreeva_04.pdf |
| Размер файла: |
341.25 КБ |
| Скачено: |
63 раз(а) |
|
|
  |
 |
victorvm
Зарегистрирован: Сб 15 Март 2025, 16:22
Сообщения: 33
Регион: новосибирск
|
Добавлено:
Пн 31 Март 2025, 11:25
|
  |
Чертеж (набросок) к ранне написанному .
[ На сайте www.prlib.ru/section/13... находится папка с подборкой различных печей , в том числе и похожая на печь и на камин . Вырезка из чертежа файл - Светлица 2 , старый опыт бывает полезен , вероятно рассматривался и изучался. ]
Архитектурные планы, чертежи, рисунки : альбом : [конец XVII в. - 1-я половина XVIII в.]. Т. 6. - Масштабы разные. -[Б. м. : б. и., 1690-1750]. -153 листа. - (Фонд Карты, планы, чертежи и рисунки из "Собрания Петра I". Т. 6).
https://www.prlib.ru/item/1333536#v=d&z=2&n=5&i=193707_doc1.tiff&y=288.90625&x=293
cтр.274
|
| Описание: |
| чертеж помещений с тремя печами каминного типа |
|
| Размер файла: |
631.95 КБ |
| Просмотров: |
57 раз(а) |

|
|
|
  |
 |
victorvm
Зарегистрирован: Сб 15 Март 2025, 16:22
Сообщения: 33
Регион: новосибирск
|
Добавлено:
Пт 11 Апрель 2025, 18:50
|
  |
Два видео по реконструкции Голландского камина Smuiger .
1.Реконструкция смуйгера XVIII века, выполненная с вниманием к деталям.
Реконструирован с использованием старых материалов 17 века.
Авторы: Барт Ньювенхейс, Йооп Вестра и Патрик Беркхаут.
Здание излучает атмосферу 17 века. Как будто время остановилось.
Выдающийся образец как внутри, так и снаружи.
А как насчет передней комнаты с поперечной рамой и специальным
прекрасно сделанный дверной косяк, на котором указан год,
с украшениями и символическим изображением и задней комнатой
с деревянной обшивкой. Не говоря уже о прекрасном смуйгере.
Здание представляет собой бывшую пекарню из Вестзана.
Сейчас это жилой дом в Заандейке.
( Реконструкция камина на первом этаже)
https://www.youtube.com/watch?v=g_RO_Ze4ZgQ
2. Фонд Элоута Вайтема восстанавливает Смуйгера.
Реставратор Барт Ньювенхейс Вестцаан.
Патрик Берхаут плитка и сантехника North-Scharwoude
(Реконструкция камина на втором этаже и строительство дымовой трубы)
https://www.youtube.com/watch?v=dL3rLIFK73U
|
| Описание: |
| Реконструкция камина на первом этаже |
|
| Размер файла: |
314.82 КБ |
| Просмотров: |
38 раз(а) |

|
| Описание: |
| Реконструкция камина на втором этаже и строительство дымовой трубы |
|
| Размер файла: |
258.44 КБ |
| Просмотров: |
41 раз(а) |

|
|
|
  |
 |
victorvm
Зарегистрирован: Сб 15 Март 2025, 16:22
Сообщения: 33
Регион: новосибирск
|
Добавлено:
Сб 12 Апрель 2025, 16:58
|
  |
Продолжим далее , 1736 год . Для того что бы лучше разобраться "изнутри топимыми печами" рассмотрим и изразцовые печи. Внешнюю изразцовую составляющую печей пропустим , посмотрим на их конструктивные особенности со стороны топки. И так русские изразцовые.
|
| Описание: |
| А. Кившенко. Царь Борис Годунов и дети.. |
|
| Размер файла: |
79.62 КБ |
| Просмотров: |
31 раз(а) |

|
| Описание: |
|
| Размер файла: |
381.04 КБ |
| Просмотров: |
36 раз(а) |

|
| Описание: |
| Изразцовые печи в Архиерейских палатах Суздаля. XVIII в. |
|
| Размер файла: |
300.21 КБ |
| Просмотров: |
39 раз(а) |

|
| Описание: |
| печи (Палаты Строгановых, Усолье ) |
|
| Размер файла: |
645.17 КБ |
| Просмотров: |
55 раз(а) |

|
|
|
  |
 |
victorvm
Зарегистрирован: Сб 15 Март 2025, 16:22
Сообщения: 33
Регион: новосибирск
|
Добавлено:
Сб 12 Апрель 2025, 17:25
|
  |
Изразцовые , белые печи ( без изразцов) топились одинаково - из сеней и имели узкий дымоход над топочным отверстием (c разрывом газового тракта )
ИССЛЕДОВАНИЕ И РЕСТАВРАЦИЯ. РУССКИХ ИЗРАЗЦОВЫХ ПЕЧЕЙ. XVII-XVIII BEKOB. Немцова н.и.
https://www.restsouz.ru/upload/guidelines/038-Nemcova-N-I-Issledovanie-i-restavraciya-russkih-izrazcovyh-pechej.pdf
|
| Описание: |
|
| Размер файла: |
65.18 КБ |
| Просмотров: |
56 раз(а) |

|
| Описание: |
| в Архиерейских палатах Суздаля. XVIII в |
|
| Размер файла: |
100.54 КБ |
| Просмотров: |
31 раз(а) |

|
| Описание: |
|
| Размер файла: |
19.23 КБ |
| Просмотров: |
34 раз(а) |

|
| Описание: |
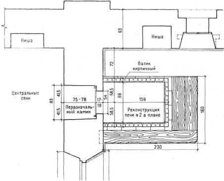
| План первоначального камина в стене и печи |
|
| Размер файла: |
15.3 КБ |
| Просмотров: |
52 раз(а) |

|
| Описание: |
| Примеры размещения печей. |
|
| Размер файла: |
227.85 КБ |
| Просмотров: |
30 раз(а) |

|
|
|
  |
 |
victorvm
Зарегистрирован: Сб 15 Март 2025, 16:22
Сообщения: 33
Регион: новосибирск
|
Добавлено:
Сб 12 Апрель 2025, 17:58
|
  |
Далее.
|
| Описание: |
| Суздаль.Архиерейские палаты.(Передний камин топки печи. |
|
| Размер файла: |
64.45 КБ |
| Просмотров: |
41 раз(а) |

|
| Описание: |
| Металлический топочный притвор |
|
| Размер файла: |
294.55 КБ |
| Просмотров: |
33 раз(а) |

|
| Описание: |
| Соловки .сени ( Металлический топочный притвор ) |
|
| Размер файла: |
78.62 КБ |
| Просмотров: |
45 раз(а) |

|
|
|
  |
 |
victorvm
Зарегистрирован: Сб 15 Март 2025, 16:22
Сообщения: 33
Регион: новосибирск
|
Добавлено:
Сб 12 Апрель 2025, 18:38
|
  |
|
  |
 |
victorvm
Зарегистрирован: Сб 15 Март 2025, 16:22
Сообщения: 33
Регион: новосибирск
|
Добавлено:
Сб 12 Апрель 2025, 19:21
|
  |
Печи европейского образца .
Бывший монастырь Райтенхаслах.
https://mediatum.ub.tum.de/doc/1086900/128287.pdf
|
| Описание: |
|
| Размер файла: |
439.75 КБ |
| Просмотров: |
58 раз(а) |

|
| Описание: |
| Схема печи с топкой из смежного помещения |
|
| Размер файла: |
546.59 КБ |
| Просмотров: |
39 раз(а) |

|
| Описание: |
|
| Размер файла: |
320.03 КБ |
| Просмотров: |
51 раз(а) |

|
| Описание: |
|
| Размер файла: |
253.94 КБ |
| Просмотров: |
33 раз(а) |

|
|
|
  |
 |
victorvm
Зарегистрирован: Сб 15 Март 2025, 16:22
Сообщения: 33
Регион: новосибирск
|
Добавлено:
Сб 12 Апрель 2025, 19:53
|
  |
|
  |
 |
victorvm
Зарегистрирован: Сб 15 Март 2025, 16:22
Сообщения: 33
Регион: новосибирск
|
Добавлено:
Сб 12 Апрель 2025, 20:32
|
  |
Изразцовые печи Дания .Италия .
|
| Описание: |
| Изразцовая печь с топкой из кухни |
|
| Размер файла: |
116.58 КБ |
| Просмотров: |
39 раз(а) |

|
| Описание: |
| Сан-Дженезио дымоход.Италия |
|
| Размер файла: |
241.94 КБ |
| Просмотров: |
53 раз(а) |

|
| Описание: |
Вид на топку изразцовой печи(Италия) Дверца . |
|
| Размер файла: |
358.02 КБ |
| Просмотров: |
39 раз(а) |

|
| Описание: |
| Реконструкция Изразцовой печи.Топка |
|
| Размер файла: |
195.34 КБ |
| Просмотров: |
40 раз(а) |

|
|
|
  |
 |
victorvm
Зарегистрирован: Сб 15 Март 2025, 16:22
Сообщения: 33
Регион: новосибирск
|
Добавлено:
Сб 12 Апрель 2025, 20:52
|
  |
Германия.
|
| Описание: |
| Открытый дымосборник над выходом из топки. |
|
| Размер файла: |
76.47 КБ |
| Просмотров: |
33 раз(а) |

|
| Описание: |
| Германия .Топка в стене здания из дерева. |
|
| Размер файла: |
36.79 КБ |
| Просмотров: |
40 раз(а) |

|
|
|
  |
 |
Селиван Виктор
Проектировщик

Зарегистрирован: Сб 2 Январь 2010, 14:33
Сообщения: 6706
Регион: г.Челябинск
|
Добавлено:
Вс 13 Апрель 2025, 05:46
|
  |
Примитивные конструкции были однако. Просто колпаки с выходом дыма вверху. Ценность в изразцовом кузове печей.
|
_________________ Я за здоровую конкуренцию в печном деле и за работу во благо потребителям услуг печника.Тел. +79507468555
|
|
     |
 |
|
|
|
Следующая тема
Предыдущая тема
Вы не можете начинать темы Вы не можете отвечать на сообщения Вы не можете редактировать свои сообщения Вы не можете удалять свои сообщения Вы не можете голосовать в опросах Вы не можете добавлять приложения в этом форуме Вы можете скачивать файлы в этом форуме
|
|