 |
|
 |
| Автор |
Сообщение
|
Артемий
Зарегистрирован: Сб 17 Ноябрь 2007, 12:23
Сообщения: 4
|
Добавлено:
Сб 17 Ноябрь 2007, 13:07
|
  |
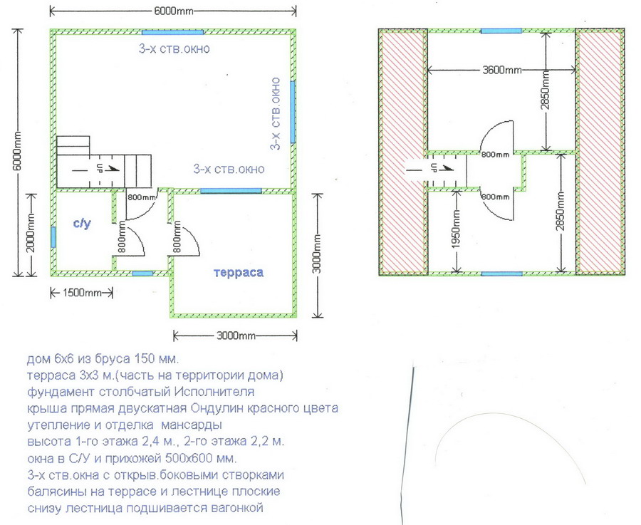
Уважаемые мастера.
Подскажите пожалуйста какую и главное где в таком доме лучше поставить печь.
Дело в том, что в конторе где заказывал дом сказали, что проект мы вам сделаем какой хотите, а вот с печью думайте сами. А поскольку опыта в строительстве нет, вот жена и навояла, вроде удобно, а печь куда поставить теперь не понятно.
Дом пока не построен я решил всё таки спросить знающих людей пока не поздно.
Дом из бруса 100х150, размером 6х6, пол и потолок первого и второго этажа двойные утеплены изовером 50мм. Рамы двойные.
Проживание в основном наездами и зимой и летом. Ещё хотелось бы, чтобы второй этаж хоть мало мальски отапливался, по возможности печкой первого этажа, если это возможно.
Заранее спасибо за ответ.
|
| Описание: |
|
| Размер файла: |
133.54 КБ |
| Просмотров: |
1160 раз(а) |

|
|
|
  |
 |
Владимир Жирнов
Зарегистрирован: Пт 12 Май 2006, 23:29
Сообщения: 713
|
Добавлено:
Сб 17 Ноябрь 2007, 18:37
|
  |
|
   |
 |
Артемий
Зарегистрирован: Сб 17 Ноябрь 2007, 12:23
Сообщения: 4
|
Добавлено:
Вс 18 Ноябрь 2007, 15:43
|
  |
Владимир, спасибо за ответ.
Мы такое расположение рассматривали. Дело в том, что расстояние между печкой и верандным окном получаетс примерно 1м, а там предпологалась кухня соответственно столешница 60см и остаётся 40см на проход, а это совсем мало. Есть ли возможность поставить печку в этих местах. Те насколько такое расположение вообще возможно. И насколько оно рационально.
Спасибо.
|
| Описание: |
|
| Размер файла: |
79.46 КБ |
| Просмотров: |
986 раз(а) |

|
|
|
  |
 |
Евгений Колчин

Зарегистрирован: Чт 3 Октябрь 2002, 06:26
Сообщения: 10151
Регион: Москва
|
Добавлено:
Вс 18 Ноябрь 2007, 19:31
|
  |
Артемий, рисуя печку не забывайте про трубу и ПП разделки (отступки).
Плясать надо от печки ..
Поэтому при уже выбранном проекте лучше сделать перепланировку второго этажа, а печь установить вдоль конька, при этом отделив кухню и зал (т.е при входе в зал печь справа).
Тогда транзитом печь на второй этаж, сменив планировку второго этажа.
|
|
|
|
      |
 |
Владимир Жирнов
Зарегистрирован: Пт 12 Май 2006, 23:29
Сообщения: 713
|
Добавлено:
Вс 18 Ноябрь 2007, 21:29
|
  |
Тогда только так.
|
|
|
|
   |
 |
Чуриков Александр

Зарегистрирован: Чт 18 Май 2006, 07:25
Сообщения: 2293
Регион: Санкт-Петербург
|
Добавлено:
Вс 18 Ноябрь 2007, 22:04
|
  |
Задумайтесь так же об утеплении дома. При таком утеплении, как Вы описали, зимой Вы столкнётесь с проблемой. Как-то большой расход дров для обогрева дома. И размер печи так же будет чрезмерно большим. Если посещение дачи весна-лето-осень, то куда ни шло, а вот про зиму забудте. Печь будете перетапливать, дров проц. на 30-40 больше тратить.
|
_________________ +7-921-742-16-92 Услуги печника. Кладка печей, мангалов, банных печей, чертежи
***********************************************************************
|
|
     |
 |
Евгений Колчин

Зарегистрирован: Чт 3 Октябрь 2002, 06:26
Сообщения: 10151
Регион: Москва
|
Добавлено:
Вс 18 Ноябрь 2007, 22:15
|
  |
Да, Владимир, именно так.
Вот теперь перекроить второй этаж так, чтобы печь грела две комнаты.
И будет отлично.
|
|
|
|
      |
 |
Чуриков Александр

Зарегистрирован: Чт 18 Май 2006, 07:25
Сообщения: 2293
Регион: Санкт-Петербург
|
Добавлено:
Вс 18 Ноябрь 2007, 22:18
|
  |
Думаю, что при таком утеплении отопление дома зимой будет неэкономичным.
|
_________________ +7-921-742-16-92 Услуги печника. Кладка печей, мангалов, банных печей, чертежи
***********************************************************************
|
|
     |
 |
Евгений Колчин

Зарегистрирован: Чт 3 Октябрь 2002, 06:26
Сообщения: 10151
Регион: Москва
|
Добавлено:
Вс 18 Ноябрь 2007, 22:42
|
  |
там наверно опечатка - 150 мм ?
|
|
|
|
      |
 |
Артемий
Зарегистрирован: Сб 17 Ноябрь 2007, 12:23
Сообщения: 4
|
Добавлено:
Пн 19 Ноябрь 2007, 14:45
|
  |
Большое спасибо всем ответившим.
Вроде уболтал половину на такое расположение как показал Владимир во втором варианте.
Подскажите пожалуйста варианты печей каминов, что бы он топился с торца, те из центра комнаты.
Спасибо.
|
|
|
|
  |
 |
Владимир Жирнов
Зарегистрирован: Пт 12 Май 2006, 23:29
Сообщения: 713
|
Добавлено:
Вт 20 Ноябрь 2007, 19:15
|
  |
Артемий, мы не знаем какие функции должна выполнять ваша печь.
Предпологаю что варочные тоже.
Вот такая есть печь:
| Артемий писал(а): |
| Ещё хотелось бы, чтобы второй этаж хоть мало мальски отапливался, по возможности печкой первого этажа, если это возможно. |
Хорошее желание и очень востребованное
|
|
|
|
   |
 |
Артемий
Зарегистрирован: Сб 17 Ноябрь 2007, 12:23
Сообщения: 4
|
Добавлено:
Ср 21 Ноябрь 2007, 21:39
|
  |
Все и особенно Владимиру, огромное спасибо.
С печью вроде определились.
Артемий.
|
|
|
|
  |
 |
|
|
|
Следующая тема
Предыдущая тема
Вы не можете начинать темы Вы не можете отвечать на сообщения Вы не можете редактировать свои сообщения Вы не можете удалять свои сообщения Вы не можете голосовать в опросах Вы не можете добавлять приложения в этом форуме Вы можете скачивать файлы в этом форуме
|
|