 |
|
 |
| Автор |
Сообщение
|
SerAP
Зарегистрирован: Вт 16 Сентябрь 2008, 12:16
Сообщения: 24
Регион: Москва
|
Добавлено:
Вт 16 Сентябрь 2008, 14:54
|
  |
Уважаемые Печники!
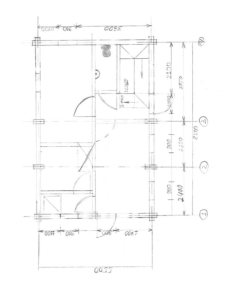
Ситуация следующая. В этом году был построен дом-баня из сруба. Бревно оцилиндрованное 20 см. в диаметре. Размеры дома по центрам бревна 5,5 х 8,3 метра. Фундамент ленточный, монолитный, армированный. Второй этаж наполовину тоже сделан из оцилинрованного бревна (6-7 венцов). Крыша утеплена 10 см. изорока. Сверху лежит металлочерепица.
Печь была запланирована в центре дома, на рисунке прямоугольник перечеркнутый крест на крест. Под нее уже сделан монолитный армированный фундамент размер 80 х 140 см., но из-за того, что промахнулись с нижней связывающей балкой, часть фундамента оказалась под этой балкой и реальный размер фундамента, на который можно поставить печь где-то 80 х 100 см.
Поначитавшись Интернета, было решено, что лучшие печи это печи Кузнецова. Сначала решили ставить печь с камином. Потом, пообщавшись с соседями, решили камин не делать, т.к. по их заверениям, камином все пользуются очень редко (обычно 1-2 раза затопят и все), в основном топят печь, а камин просто занимает место. Потом, опять же пообщавшись с соседями, все насоветовали на парилку ставить отдельную печь, но т.к. дом будет использован не только как баня, то получается, что нужна еще и отдельная отопительная печь.
В связи со всем этим думаем совместить две печи на уже имеющемся фундаменте (предварительно его увеличив).
Для бани (парилки) сделать печь Бик-2, а для отопления остального дома ставить отопительную печь.
Господа, Печники, что посоветуете в данной ситуации? Какую печь ставить? Стоит ли совмещать две печи?
|
|
|
|
  |
 |
SerAP
Зарегистрирован: Вт 16 Сентябрь 2008, 12:16
Сообщения: 24
Регион: Москва
|
Добавлено:
Ср 17 Сентябрь 2008, 13:07
|
  |
Вот и картинки:
|
| Описание: |
|
| Размер файла: |
80.15 КБ |
| Просмотров: |
1679 раз(а) |

|
Последний раз редактировалось: SerAP (Ср 17 Сентябрь 2008, 13:18), всего редактировалось 1 раз |
|
  |
 |
SerAP
Зарегистрирован: Вт 16 Сентябрь 2008, 12:16
Сообщения: 24
Регион: Москва
|
Добавлено:
Ср 17 Сентябрь 2008, 13:10
|
  |
еще
|
| Описание: |
|
| Размер файла: |
121.42 КБ |
| Просмотров: |
1247 раз(а) |

|
|
|
  |
 |
Андрей Ищенко
Проектировщик
Зарегистрирован: Вт 7 Февраль 2006, 10:08
Сообщения: 2946
Регион: Пенза
|
Добавлено:
Ср 17 Сентябрь 2008, 21:46
|
  |
Панацеи от всех бед не существует. Определитесь в своих желаниях.
Если банная печка, то она должна обеспечивать нужный режим в парной. Если камин, то для души. Если обогреть все помещения, то отопительная печь. Обычое дело в комбайне,если ломается одна деталь ремонтируют ВСЁ!
|
|
|
|
     |
 |
SerAP
Зарегистрирован: Вт 16 Сентябрь 2008, 12:16
Сообщения: 24
Регион: Москва
|
Добавлено:
Чт 18 Сентябрь 2008, 07:35
|
  |
Это, конечно понятно.
Желания такие:
1. Чтобы баня была хорошая
2. В доме было тепло.
камин нафиг.
|
|
|
|
  |
 |
Паша

Зарегистрирован: Ср 28 Ноябрь 2007, 23:35
Сообщения: 369
|
Добавлено:
Чт 18 Сентябрь 2008, 08:42
|
  |
Вот сейчас холодрыга по утрам и я часик топлю камин со стеклом старыми газетами и даже книжками (рекламными).
Камин полезное нужное устройство.
|
|
|
|
  |
 |
Чуриков Александр

Зарегистрирован: Чт 18 Май 2006, 07:25
Сообщения: 2293
Регион: Санкт-Петербург
|
Добавлено:
Чт 18 Сентябрь 2008, 08:51
|
  |
Только не путайте открытый камин с топкой и стеклянной дверцей-это уже печь.
|
_________________ +7-921-742-16-92 Услуги печника. Кладка печей, мангалов, банных печей, чертежи
***********************************************************************
|
|
     |
 |
SerAP
Зарегистрирован: Вт 16 Сентябрь 2008, 12:16
Сообщения: 24
Регион: Москва
|
Добавлено:
Чт 18 Сентябрь 2008, 09:51
|
  |
всего в дом не впихнешь, если делать и камин и две печки, то это пол дома займет. Я так не хочу. У меня вот такой вопрос, а если поставить просто БИК-2. Его хватит чтобы дом отопить и на парную?
|
|
|
|
  |
 |
Валерий Петров

Зарегистрирован: Пт 9 Декабрь 2005, 14:33
Сообщения: 1085
Регион: Россия
|
Добавлено:
Чт 18 Сентябрь 2008, 20:20
|
  |
А можно поподробнее описать назначение помещений и то, как предполагается отапливать второй этаж?
|
_________________ +7 911 090-08-96 (МТС СПб)
________________________________________
Чтобы получать правильные ответы, научись задавать правильные вопросы...
|
|
     |
 |
SerAP
Зарегистрирован: Вт 16 Сентябрь 2008, 12:16
Сообщения: 24
Регион: Москва
|
Добавлено:
Пт 19 Сентябрь 2008, 07:28
|
  |
Да, конечно, можно!
где парилка подписано на рисунке, над ней будет душ, из него выход в кухню совмещенную с комнатой отдыха, отдельная комната, рядом с туалетом будет спальня. Второй этаж отапливать планирую обычными электрообогревателями, если тепла с первого этажа будет не хватать.
|
|
|
|
  |
 |
Валерий Петров

Зарегистрирован: Пт 9 Декабрь 2005, 14:33
Сообщения: 1085
Регион: Россия
|
Добавлено:
Пт 19 Сентябрь 2008, 11:33
|
  |
Дело в том, что банная пчь - агрегат весьма своеобрзный. Она сродни промышленным печам - т.е. главная задача - нагреть камни, а сама она должна при этом оставаться "холодной". И топить ее для обогрева дома - несколько неправильно. А на кухне варочные функции не нжны? По сути вилится всетаки две печи, объединенные в один комбайн. каменка, и рядом с ней отдельно стоящя отопительнаяили отопительно-варочная печь Рядом для компактности, а отдельно для снятия напряжений при топке одной из их.
И еще, в каком режиме планируется посещать этот дом- баню? Только приезд в баню и отдохнуть или и просто отдохнуть и пожить на даче? В первом случае можно попробовать обойтись одной , во втором сложнее. А еще есть теоретическая бредовая идея сделать печь- каменку- котел и развести батареи по дому. Но это нужновнимательно просчитывать и проектировать.
|
_________________ +7 911 090-08-96 (МТС СПб)
________________________________________
Чтобы получать правильные ответы, научись задавать правильные вопросы...
|
|
     |
 |
SerAP
Зарегистрирован: Вт 16 Сентябрь 2008, 12:16
Сообщения: 24
Регион: Москва
|
Добавлено:
Пт 19 Сентябрь 2008, 12:45
|
  |
Варочные функции не нужны. Дом будет использоваться переодически, наездами. Зимой на выходных приехать в баньку. Ну а летом в общем-то топка для тепла то и не нужна, летом там будет мама с бабушкой и дедушкой жить.
На счет котла не знаю, но змеевик для горячей воды в печке я хотел бы иметь.
А сколько места такая печь комбайн займет и как это будет выглядеть (есть фотки)?
|
|
|
|
  |
 |
Валерий Петров

Зарегистрирован: Пт 9 Декабрь 2005, 14:33
Сообщения: 1085
Регион: Россия
|
Добавлено:
Вс 21 Сентябрь 2008, 09:41
|
  |
Про лето понятно, ну а для зимы - банная печь печь с камином и регистром для нагрева воды, если не нужно второй этаж отапливать.
|
_________________ +7 911 090-08-96 (МТС СПб)
________________________________________
Чтобы получать правильные ответы, научись задавать правильные вопросы...
|
|
     |
 |
SerAP
Зарегистрирован: Вт 16 Сентябрь 2008, 12:16
Сообщения: 24
Регион: Москва
|
Добавлено:
Пн 22 Сентябрь 2008, 16:40
|
  |
А что это за конструкция будет? и Каких она размеров нужна?
|
|
|
|
  |
 |
Валерий Петров

Зарегистрирован: Пт 9 Декабрь 2005, 14:33
Сообщения: 1085
Регион: Россия
|
Добавлено:
Пн 22 Сентябрь 2008, 22:34
|
  |
Конструкция очень сильно зависит от того типа парной, который Вы предпочитаете и от режима парения. Это может быть печь периодического или постоянного действия, с различными системами паро-образования. Ну и размеры уже от конструкции отталкиваются. Какая баня вам нужна: Сауна? Русская паровая? Турецкая? Как долго, и какое колическо лбдей будет парится? во сколько заходов? Какие еще предпочтения в бане необходимо учитывать? А то может Вам нужно одно, жене другое.... Рассказывайте, а то прямо как на допросе!
|
_________________ +7 911 090-08-96 (МТС СПб)
________________________________________
Чтобы получать правильные ответы, научись задавать правильные вопросы...
|
|
     |
 |
SerAP
Зарегистрирован: Вт 16 Сентябрь 2008, 12:16
Сообщения: 24
Регион: Москва
|
Добавлено:
Вт 23 Сентябрь 2008, 07:46
|
  |
Баню хочу русскую паровую. Т.к. размер парной небольшой, чуть больше чем 2х2, то париться там будет немного людей, ну 3, ну 4 человека, думаю вряд ли больше. По времени сказать сложно, но сколько себя помню больше 2х-3х часов ниразу не сидели. Заходов было наверное по 5-7, каждый минут по 5-10.
по поводу того переодического или постоянного действия, то если я правильно понимаю этот термин, то конечно переодического действия, т.е. раз в неделю приехали попарились и домой.
|
|
|
|
  |
 |
Чуриков Александр

Зарегистрирован: Чт 18 Май 2006, 07:25
Сообщения: 2293
Регион: Санкт-Петербург
|
Добавлено:
Вт 23 Сентябрь 2008, 08:22
|
  |
Постоянного действия-это когда печь топиться постоянно. В топку подбрасываются дрова для достижения и поддержания необходимых параметров.
Периодическая когда печь сначала протапливают, нагревая дымом камни, после выстаивают тем самым подготавливая парную к процессу.
Конечно сама баня так же может быть для постоянного использования и периодического, но это другой разговор. Вам конечно же скорее всего нужна периодическая.
|
_________________ +7-921-742-16-92 Услуги печника. Кладка печей, мангалов, банных печей, чертежи
***********************************************************************
|
|
     |
 |
SerAP
Зарегистрирован: Вт 16 Сентябрь 2008, 12:16
Сообщения: 24
Регион: Москва
|
Добавлено:
Вт 23 Сентябрь 2008, 10:14
|
  |
В общем все равно не совсем понял что значит постоянного или переодического. Надо чтобы печь затопили и пошли париться. Ну и время от времени, если температура падать начнет, то и дровишки подбрасывать.
|
|
|
|
  |
 |
Валерий Петров

Зарегистрирован: Пт 9 Декабрь 2005, 14:33
Сообщения: 1085
Регион: Россия
|
Добавлено:
Вт 23 Сентябрь 2008, 13:24
|
  |
Периодического - означает что дым проходит через камни, и есть период топки, а есть период парения. Истопили, все прогорело, баня настоялась, приготовилась и тогда только пошли попарились. Каменка постоянного действия предполагает что камни находятся в духовке, изолированы от дыма, что позволяет париться при топящейся печке. Но и тут нужно какое-товремя для первоначального нагрева камней. А вот предложить конструкцию отвечающую требованию - "затопили и пошли париться" я не могу. Даже металическую печь нужно топить какое-то время, прежде чем пойти парится.И даже электро каменки для саун не беспечивают мгновенного прогрева, а топить кирпичную печь придется несколько часов.
Подходящим вариантом считал-бы руссуну, но вот по времени готовности она не подходит Вам.
|
_________________ +7 911 090-08-96 (МТС СПб)
________________________________________
Чтобы получать правильные ответы, научись задавать правильные вопросы...
|
|
     |
 |
SerAP
Зарегистрирован: Вт 16 Сентябрь 2008, 12:16
Сообщения: 24
Регион: Москва
|
Добавлено:
Вт 23 Сентябрь 2008, 15:26
|
  |
Все понял, Спасибо за разъяснение. Лучше с баком для камней.
|
|
|
|
  |
 |
|
|
|
Следующая тема
Предыдущая тема
Вы не можете начинать темы Вы не можете отвечать на сообщения Вы не можете редактировать свои сообщения Вы не можете удалять свои сообщения Вы не можете голосовать в опросах Вы не можете добавлять приложения в этом форуме Вы можете скачивать файлы в этом форуме
|
|