 |
|
 |
| Автор |
Сообщение
|
cyk3r
Зарегистрирован: Ср 1 Сентябрь 2010, 15:12
Сообщения: 9
Регион: Москва
|
Добавлено:
Пн 7 Февраль 2011, 16:49
|
  |
Здравствуйте уважаемые!
в общем задумался о водяном отоплении дома, дом конечно в основном сезонного проживания, но с заездами зимой, пока все на стадии проектирования.
Сначала думал об электро котле, но если летом с эл-вом более менее все в порядке, то осенью,весной, и зимой бывают частые отключения, с различной продолжительностью. использовать генератор конечно можно, но один котел жрет около 6 КВт.
И вот почитав немного форум понял что возможно котел встраиивать в печь, вариант очень понравился.
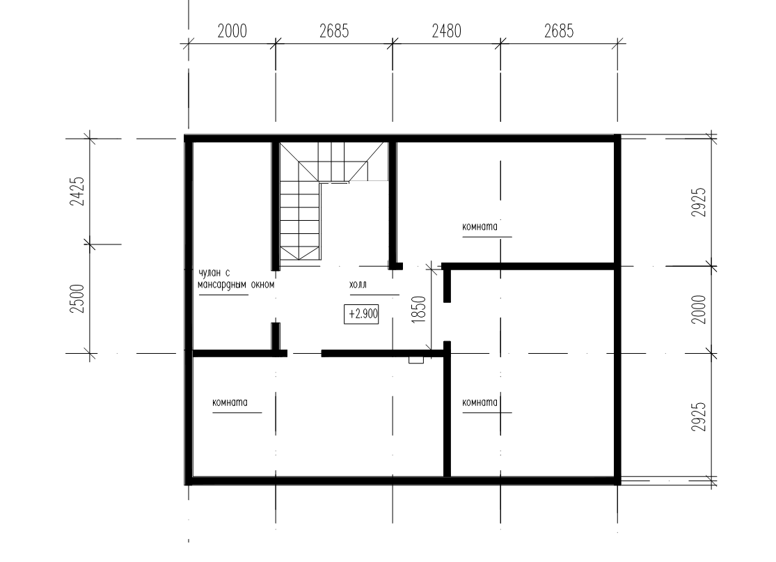
Поэтому вопрос - печь запроектирована в центре дома размером 1х1м (+-15см).
возможно ли в такие габариты печи встроить котел и будет ли эффективным отопления обоих этажей?
брус 150х150, высота 1 эт - 2.8м, 2 эт - 2.8м, окон конечно пока нет на проекте
|
| Описание: |
|
| Размер файла: |
53.32 КБ |
| Просмотров: |
796 раз(а) |

|
|
|
  |
 |
cyk3r
Зарегистрирован: Ср 1 Сентябрь 2010, 15:12
Сообщения: 9
Регион: Москва
|
Добавлено:
Пн 7 Февраль 2011, 16:50
|
  |
2 эт
|
| Описание: |
|
| Размер файла: |
46.09 КБ |
| Просмотров: |
784 раз(а) |

|
|
|
  |
 |
stas

Зарегистрирован: Вт 29 Январь 2008, 22:53
Сообщения: 916
Регион: Москва
|
Добавлено:
Пн 7 Февраль 2011, 21:55
|
  |
cyk3r, печь не используется для того, чтобы дополнительно греть теплоноситель, так как теплоноситель после протопки печи сравнительно быстро остынет и не обеспечит равномерный обогрев комнат в течении суток, также это ухудшит работу самой печи и усложнит ее эксплуатацию.
Чтобы греть теплоноситель, делается кирпичный котел, причем в том случае, когда дом нельзя отопить печью. У Вас же вполне возможно отопить дом одной печью (двухэтажной) - оба этажа, за исключением санузла и душевой - их придется отапливать электроконверторами. Но для этого надо разместить печь в другом месте и сделать небольшую перепланировку, также рассчитать требуемую мощность печи для вашего дома.
На представленной вами схеме печь отапливает одну комнату, коридор и лестничную клетку. Если сделать эту печь двухэтажной - то она будет отапливать такие же помещения на втором этаже. И не более.
|
|
|
|
    |
 |
cyk3r
Зарегистрирован: Ср 1 Сентябрь 2010, 15:12
Сообщения: 9
Регион: Москва
|
Добавлено:
Вт 8 Февраль 2011, 10:13
|
  |
Спасибо большое за ответ. как и ожидал все не так просто
|
|
|
|
  |
 |
stas

Зарегистрирован: Вт 29 Январь 2008, 22:53
Сообщения: 916
Регион: Москва
|
Добавлено:
Вт 8 Февраль 2011, 13:30
|
  |
cyk3r , непросто, но и усложнять без необходимости не стоит. Можете, если сочтете нужным, обратиться лично, посмотрим уже поконкретнее, что и как у Вас можно сделать.
|
|
|
|
    |
 |
|
|
|
Следующая тема
Предыдущая тема
Вы не можете начинать темы Вы не можете отвечать на сообщения Вы не можете редактировать свои сообщения Вы не можете удалять свои сообщения Вы не можете голосовать в опросах Вы не можете добавлять приложения в этом форуме Вы можете скачивать файлы в этом форуме
|
|