 |
|
 |
| Автор |
Сообщение
|
Сергей
Зарегистрирован: Пт 12 Февраль 2010, 17:10
Сообщения: 3
Регион: С-Петербург
|
Добавлено:
Пт 12 Февраль 2010, 17:24
|
  |
Здравствуйте, Уважаемые!
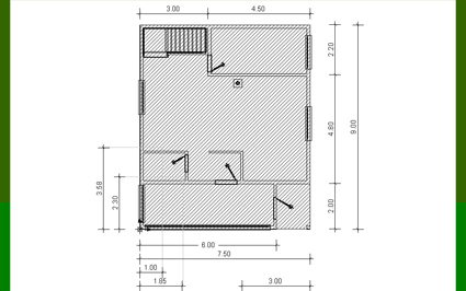
Прошу совета по выбору печи-камина для дачного дома. Исходные данные: каркасный дом для круглогодичных приездов на 2-3 дня. Объем помещения около 125 м3. Желание иметь вид на открытый огонь (камин или печь со стеклянной дверцей) с возможностью прогрева всего помещения и плиту для готовки в виде одной конфорки. Требуется возможность отопления мансарды ( как вариант – подключение мет. «буржуйки») Фундамент – армированная плита 10см. Высота потолков – 2.5 м, конек – 7м. Рисунки прилагаю.
|
| Описание: |
|
| Размер файла: |
13.26 КБ |
| Просмотров: |
711 раз(а) |

|
| Описание: |
|
| Размер файла: |
75.44 КБ |
| Просмотров: |
765 раз(а) |

|
| Описание: |
|
| Размер файла: |
255.31 КБ |
| Просмотров: |
793 раз(а) |

|
|
|
  |
 |
Сергей68

Зарегистрирован: Пт 5 Декабрь 2008, 21:49
Сообщения: 855
Регион: Питер
|
Добавлено:
Сб 13 Февраль 2010, 15:27
|
  |
| Сергей писал(а): |
| Желание иметь вид на открытый огонь (камин или печь со стеклянной дверцей) с возможностью прогрева всего помещения и плиту для готовки в виде одной конфорки. Требуется возможность отопления мансарды ( как вариант – подключение мет. «буржуйки») Фундамент – армированная плита 10см. Высота потолков – 2.5 м, конек – 7м. Рисунки прилагаю. |
Логичнее совместить в один объем каминную касету и плиту со щитом. Каминная касета позволит быстро нагреть помещение, а последующая топка плиты со щитом позволит создать комфортную температуру на ночь. отапливание мансарды возможно и от касеты ( посредством воздуховодов от "конвекционной" камеры над чугунной топкой.
|
_________________ 8-921-743-33-53
|
|
    |
 |
Сергей
Зарегистрирован: Пт 12 Февраль 2010, 17:10
Сообщения: 3
Регион: С-Петербург
|
Добавлено:
Вс 14 Февраль 2010, 19:55
|
  |
| Сергей68 писал(а): |
| Сергей писал(а): |
| Желание иметь вид на открытый огонь (камин или печь со стеклянной дверцей) с возможностью прогрева всего помещения и плиту для готовки в виде одной конфорки. Требуется возможность отопления мансарды ( как вариант – подключение мет. «буржуйки») Фундамент – армированная плита 10см. Высота потолков – 2.5 м, конек – 7м. Рисунки прилагаю. |
Логичнее совместить в один объем каминную касету и плиту со щитом. Каминная касета позволит быстро нагреть помещение, а последующая топка плиты со щитом позволит создать комфортную температуру на ночь. отапливание мансарды возможно и от касеты ( посредством воздуховодов от "конвекционной" камеры над чугунной топкой. |
Сергей, Спасибо за ответ. Это как раз один из вариантов которые я рассматривал, но пока не смог сделать выбор - кассета против кирпича, во-первых - чисто внешне, мне не нравяться эти "телевизоры" (кассеты), во-вторых смущает узел подключения кассеты в виде мет.трубы - боюсь прогорит лет через пять. Хотя может и ошибаюсь.
|
|
|
|
  |
 |
prot.anatolij

Зарегистрирован: Вс 21 Июнь 2009, 10:37
Сообщения: 39
Регион: Россия
|
Добавлено:
Пн 15 Февраль 2010, 08:58
|
  |
Касету можно облицевать кирпичем, с виду получится тот же кирпичный камин со стеклянной дверкой. А соединения из нержавейки устойчивы к прогаранию.
|
_________________ 89630029900 Анатолий Евгеньевич
89125251130
|
|
    |
 |
Сергей
Зарегистрирован: Пт 12 Февраль 2010, 17:10
Сообщения: 3
Регион: С-Петербург
|
Добавлено:
Пн 15 Февраль 2010, 10:33
|
  |
Вопрос состоит в том, сможет ли каминопечь из кирпича сложенная в указанных габаритах прогреть указанный объем и второй момент, для меня немаловажна финансовая сторона, т.е. что дешевле, кирпич или кассета.
|
|
|
|
  |
 |
Иван из Беларуси
Зарегистрирован: Ср 21 Январь 2009, 08:34
Сообщения: 507
|
Добавлено:
Пн 15 Февраль 2010, 14:00
|
  |
| Сергей писал(а): |
| Вопрос состоит в том, сможет ли каминопечь из кирпича сложенная в указанных габаритах прогреть указанный объем и второй момент, для меня немаловажна финансовая сторона, т.е. что дешевле, кирпич или кассета. |
грамотно сложенная топка с футеровкой надежнее кассеты,у нас дык и дешевле.Вам надо нормальная каминопечь типа:
По кссете была тема http://forum.stovemaster.ru/viewtopic.php?t=3418
|
|
|
|
  |
 |
Михаил Мирошниченко

Зарегистрирован: Пн 4 Январь 2010, 17:53
Сообщения: 95
Регион: выборг ленинградская обл.
|
Добавлено:
Пт 19 Февраль 2010, 17:59
|
  |
| Сергей писал(а): |
| Вопрос состоит в том, сможет ли каминопечь из кирпича сложенная в указанных габаритах прогреть указанный объем и второй момент, для меня немаловажна финансовая сторона, т.е. что дешевле, кирпич или кассета. |
ё
Если бы дом был для постоянного проживания, то печь однозначно лучше, а для наездов лучше кассета и никто меня в этом не переубедит. Нормальная испанская кассета стоит 18 000 , а дверка каминная 410+410 SVT - 15 000-20 000. Разница? Кассетой мансарду полноценно обогреть можно. А если по деньгам дешевле охота, то с обратной стороны щитка подсоеденить буржуйку " типа камин" - МЕТА наша или чешская порядка 25 000. Будет дешево и сердито.
С уважением ко всем участникам форума.
|
_________________ +7 960 273 08 01
+7 921 365 17 90
печи, камины, дымоходы.
|
|
    |
 |
|
|
|
Следующая тема
Предыдущая тема
Вы не можете начинать темы Вы не можете отвечать на сообщения Вы не можете редактировать свои сообщения Вы не можете удалять свои сообщения Вы не можете голосовать в опросах Вы не можете добавлять приложения в этом форуме Вы можете скачивать файлы в этом форуме
|
|