 |
|
 |
| Автор |
Сообщение
|
Seregin
Зарегистрирован: Вт 7 Февраль 2012, 22:55
Сообщения: 12
Регион: Гродно
|
Добавлено:
Вт 7 Февраль 2012, 23:23
|
  |
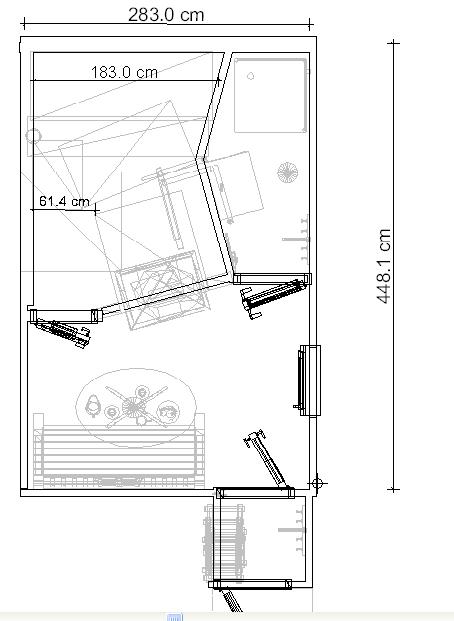
Пока на улице мороз - можно строить наполеоновские планы. Хочется получить пару советов по размещению печи и ее возведению.
Кладку печи планирую делать самостоятельно не имея опыта, но руки чешутся.
Итак, имею летнюю кухню размер 280х450, каркасная, снаружи обита доской 20мм, внутри пока ДВП, фундамент - ленточный.
Хочу получить - русскую баню.
Планируется снять ДВП, проложить мембрану для ветрозащиты, утеплить стены - 50mm пенопласт, пол,потолок - 100мм пенопласт. Парная дополнительно 50мм мин. вата Парок. Стены комнаты отдыха - гипсокартон , парная - вагонка.
Печь - БИК1, с ящиком или без - пока в раздумьях.
Вот планировка, пришедшая на ум
Печь разворачиваю, чтобы влезли двери
|
| Описание: |
|
| Размер файла: |
37.25 КБ |
| Просмотров: |
862 раз(а) |

|
| Описание: |
|
| Размер файла: |
32.2 КБ |
| Просмотров: |
899 раз(а) |

|
|
|
  |
 |
Elm

Зарегистрирован: Пн 12 Декабрь 2011, 13:23
Сообщения: 1413
Регион: Первомайск (на Южном Буге)
|
Добавлено:
Вт 7 Февраль 2012, 23:42
|
  |
Я так понял, протискиваться между горячей печкой и горячей же стенкой, - фигня вопрос?
|
|
|
|
    |
 |
Евгений Колчин

Зарегистрирован: Чт 3 Октябрь 2002, 06:26
Сообщения: 10146
Регион: Москва
|
Добавлено:
Ср 8 Февраль 2012, 08:23
|
  |
вариант, сместить печь в перегородку
выигрыш еще 20-30 см
а это уже почти метр прохода в парной
|
_________________ ************************************
|
|
      |
 |
Павел Раст
Зарегистрирован: Вт 15 Февраль 2011, 21:14
Сообщения: 457
|
Добавлено:
Ср 8 Февраль 2012, 09:21
|
  |
|
  |
 |
Seregin
Зарегистрирован: Вт 7 Февраль 2012, 22:55
Сообщения: 12
Регион: Гродно
|
Добавлено:
Ср 8 Февраль 2012, 22:50
|
  |
| Elm писал(а): |
| Я так понял, протискиваться между горячей печкой и горячей же стенкой, - фигня вопрос? |
У меня в комнату двухстворчатая дверь, открыта только половинка, замерил - 60см, т.е. протискиваться не проблема, но не учел, что поверхность горячая - спасибо, принимается.
|
|
|
|
  |
 |
Евгений Колчин

Зарегистрирован: Чт 3 Октябрь 2002, 06:26
Сообщения: 10146
Регион: Москва
|
Добавлено:
Ср 8 Февраль 2012, 23:00
|
  |
Павел, все двери в бане должны открываться наружу ... чтоб бежать, еже ли что, без препятствий
|
_________________ ************************************
|
|
      |
 |
Seregin
Зарегистрирован: Вт 7 Февраль 2012, 22:55
Сообщения: 12
Регион: Гродно
|
Добавлено:
Ср 8 Февраль 2012, 23:03
|
  |
| Евгений Колчин писал(а): |
вариант, сместить печь в перегородку
выигрыш еще 20-30 см
а это уже почти метр прохода в парной |
Все это наворотил по принципу три стены в парной - хорошо
Перепланировал, вот, что получилось:
Развернул противопожарную разделку, т.к. топка в БИК1 смещена влево, то может и не будет смотреться нелепо.
Но вот что смущает: высота потолка 250см, площадь парной за минусом печи получилась 3,5м2 на две стены, моечная -2,3м2 с одной стеной(наверно жарко)
Правда, однозначный плюс - доступность ЗЛХ
|
|
|
|
  |
 |
Seregin
Зарегистрирован: Вт 7 Февраль 2012, 22:55
Сообщения: 12
Регион: Гродно
|
Добавлено:
Ср 8 Февраль 2012, 23:10
|
  |
Имеет ли право на жизнь такое мнение:
Мойка и парная не должны соединяться дверью, дабы запахи мыльных средств не перебивали запахов...пота в парной.
|
|
|
|
  |
 |
Seregin
Зарегистрирован: Вт 7 Февраль 2012, 22:55
Сообщения: 12
Регион: Гродно
|
Добавлено:
Ср 8 Февраль 2012, 23:13
|
  |
Самое главное, что хотел спросить:
Можно ли оставлять дверцу каменки сбоку при такой планировке?
И какова необходимость или недостатки второго колпака, кроме ремонтопригодности?
|
|
|
|
  |
 |
Анатолич

Зарегистрирован: Ср 23 Сентябрь 2009, 23:25
Сообщения: 393
Регион: Рязань
|
Добавлено:
Чт 9 Февраль 2012, 09:52
|
  |
Вот так спланирована банька у моего друга...
Вам нужно будет только удлинить общую длину л. кухни до 5 с небольшим метров.
|
| Описание: |
|
| Размер файла: |
20.4 КБ |
| Просмотров: |
833 раз(а) |

|
|
|
    |
 |
ЮрийК
Зарегистрирован: Пт 6 Январь 2012, 10:32
Сообщения: 14
Регион: Москва
|
Добавлено:
Чт 9 Февраль 2012, 10:01
|
  |
| Seregin писал(а): |
Имеет ли право на жизнь такое мнение:
Мойка и парная не должны соединяться дверью, дабы запахи мыльных средств не перебивали запахов...пота в парной. |
Поперечная перегородка как делит помещение?
|
|
|
|
  |
 |
Анатолич

Зарегистрирован: Ср 23 Сентябрь 2009, 23:25
Сообщения: 393
Регион: Рязань
|
Добавлено:
Чт 9 Февраль 2012, 10:31
|
  |
2 метра-1.2 метра-2.2 метра. Ширина уже задана...
|
|
|
|
    |
 |
Seregin
Зарегистрирован: Вт 7 Февраль 2012, 22:55
Сообщения: 12
Регион: Гродно
|
Добавлено:
Чт 9 Февраль 2012, 22:02
|
  |
| Анатолич писал(а): |
Вот так спланирована банька у моего друга...
Вам нужно будет только удлинить общую длину л. кухни до 5 с небольшим метров. |
Спасибо за предложение, но...
Перспектива удлинять - не улыбается.
С одной короткой стороны - забор соседа
Со второй, где вход - залито крыльцо со ступеньками
Л. кухня на ленточном фундаменте
Т. е. Заливать и привязывать фундамент, а дальше стойки, перекрытия, стропила...
Проще построить новую.
У меня задача перестроить старую, стены и входная дверь остаются неизменными.
|
|
|
|
  |
 |
Анатолич

Зарегистрирован: Ср 23 Сентябрь 2009, 23:25
Сообщения: 393
Регион: Рязань
|
Добавлено:
Пт 10 Февраль 2012, 00:04
|
  |
ПокажИте хоть потом, как всё получилось...
|
|
|
|
    |
 |
Seregin
Зарегистрирован: Вт 7 Февраль 2012, 22:55
Сообщения: 12
Регион: Гродно
|
Добавлено:
Пт 10 Февраль 2012, 23:02
|
  |
| Анатолич писал(а): |
ПокажИте хоть потом, как всё получилось...  |
Не вопрос, думаю, к новому 2015 году - покажу
Планы: 1 год - разобрать старую печь, сделать фундамент, новую печь.
2 год - коммуникации - водa, электричество, канализация. Перегородки.
3 год - окна, двери, отделка.
Работать буду один, по выходным, совмещая с отдыхом.
|
|
|
|
  |
 |
Алексей Елисеев
Зарегистрирован: Чт 19 Ноябрь 2009, 17:28
Сообщения: 11
|
Добавлено:
Сб 11 Февраль 2012, 09:31
|
  |
Seregin, не городи закутки - при таких габаритах бани и кирпичной печи нормальную парилку можно сделать только при совмещении ее с мойкой. Поверь, с кирпичной печью это вполне приемлемо.
|
|
|
|
  |
 |
Евгений Колчин

Зарегистрирован: Чт 3 Октябрь 2002, 06:26
Сообщения: 10146
Регион: Москва
|
Добавлено:
Сб 11 Февраль 2012, 12:00
|
  |
+1
|
_________________ ************************************
|
|
      |
 |
Seregin
Зарегистрирован: Вт 7 Февраль 2012, 22:55
Сообщения: 12
Регион: Гродно
|
Добавлено:
Вс 12 Февраль 2012, 15:19
|
  |
| Алексей Елисеев писал(а): |
| Seregin, не городи закутки - при таких габаритах бани и кирпичной печи нормальную парилку можно сделать только при совмещении ее с мойкой. Поверь, с кирпичной печью это вполне приемлемо. |
Спасибо за помощь. Буду думать.
|
|
|
|
  |
 |
ЮрийК
Зарегистрирован: Пт 6 Январь 2012, 10:32
Сообщения: 14
Регион: Москва
|
Добавлено:
Вс 12 Февраль 2012, 22:39
|
  |
| Seregin писал(а): |
Спасибо за помощь. Буду думать. |
А я бы сделал так.
Парилка и мойка должны быть отдельные.
А то в парилке жарко мыться, а в мойке холодно париться.
Так что если уж и делать, то хоть маленькие, но отдельные.
А то у нас как принято - если на коне в парилку не въехать, то это уже и не парилка вовсе.
А может взводами здесь париться не будут?
Печь, кстати, вовсе не должна походить на доменную.
А это мой план.
Печка кирпичная, может быть с баком, либо регистр для нагрева воды.
Камни по белому.
Вот как-то так.
|
|
|
|
  |
 |
Алексей Елисеев
Зарегистрирован: Чт 19 Ноябрь 2009, 17:28
Сообщения: 11
|
Добавлено:
Пн 13 Февраль 2012, 11:02
|
  |
| ЮрийК писал(а): |
| ...Парилка и мойка должны быть отдельные... |
Интересное утверждение, судя по всему навеянное от применения в нынешних банях железных печек. При раскочегаренной железяке действительно трудно возле нее нормально помыться.
С кирпичной печкой все несколько проще - от нее так не фонит излишним жаром. Достаточно проветрить помещение - и можно спокойно мыться.
Начиная постройку бани и выбирая материалы для ее строительства, часто кивают на опыт предков, например - баня должна быть деревянной (дерево "дышит", лучше микроклимат и т.д.). В то же время "историческая" совмещенная планировка в расчет не берется - обязательно надо отделить мойку и еще комнату отдыха сделать поболе...
Раздельные мойка и парилка несколько удобнее при эксплуатации бани "на потоке" - в парилке постоянно кто-то парится (или парят кого-то). Для небольшой семейной бани вполне приемлем режим: попарились, проветрили, помылись. И это вовсе не означает, что париться более нельзя: вентиляцию закрыл, парку поддал - и парься на здоровье!
ЗЫ Все-таки в первую очередь в данном случае все привязано к габаритам помещения бани, разделить на два помещения комнату 2,8х2,8 без ущерба для бани не удастся. Больших семь шапок из овцы не выкроишь никак...
|
|
|
|
  |
 |
|
|
|
Следующая тема
Предыдущая тема
Вы не можете начинать темы Вы не можете отвечать на сообщения Вы не можете редактировать свои сообщения Вы не можете удалять свои сообщения Вы не можете голосовать в опросах Вы не можете добавлять приложения в этом форуме Вы можете скачивать файлы в этом форуме
|
|