| Автор |
Сообщение
|
Zhubi
Зарегистрирован: Пт 4 Ноябрь 2011, 16:21
Сообщения: 12
Регион: Москва
|
Добавлено:
Пт 4 Ноябрь 2011, 17:28
|
  |
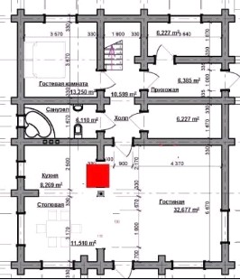
Добрый день! Помогите, Господа Печники!
Начинаем строительство дома. Были запланированы печь голландка и камин. На плане они перечеркнуты красным. А красный квадрат - это мечта хозяйки.
Срочно нужны размеры - для расчета фундамента. А какую выбрать печь? Главные требования - отопление и хлебная камера. В идеале хочется, чтобы ХК на сторону кухни, а огонь на стороне гостиной. Бывают такие?
|
| Описание: |
|
| Размер файла: |
357.12 КБ |
| Просмотров: |
922 раз(а) |

|
|
|
  |
 |
Александр Шалагин

Зарегистрирован: Пт 2 Январь 2009, 18:00
Сообщения: 1341
Регион: Киров
|
Добавлено:
Пт 4 Ноябрь 2011, 19:11
|
  |
| Zhubi писал(а): |
| В идеале хочется, чтобы ХК на сторону кухни, а огонь на стороне гостиной. |
Выкладываю фото
|
| Описание: |
|
| Размер файла: |
59.06 КБ |
| Просмотров: |
838 раз(а) |

|
| Описание: |
|
| Размер файла: |
57.59 КБ |
| Просмотров: |
854 раз(а) |

|
|
|
    |
 |
Zhubi
Зарегистрирован: Пт 4 Ноябрь 2011, 16:21
Сообщения: 12
Регион: Москва
|
Добавлено:
Пт 4 Ноябрь 2011, 19:22
|
  |
Какая красавица!!! Что за зверь? Как правильно называется?
|
|
|
|
  |
 |
Александр Шалагин

Зарегистрирован: Пт 2 Январь 2009, 18:00
Сообщения: 1341
Регион: Киров
|
Добавлено:
Пт 4 Ноябрь 2011, 19:29
|
  |
|
    |
 |
Zhubi
Зарегистрирован: Пт 4 Ноябрь 2011, 16:21
Сообщения: 12
Регион: Москва
|
Добавлено:
Пт 4 Ноябрь 2011, 19:54
|
  |
А какой у нее размер? И какой фундамент под нее нужен?
А расположение такое относительно стены принципиально? Хочется, чтобы в моем варианте со стороны гостиной была углублена, а выступала больше со стороны кухни
А по цене вопроса куда обратиться?
|
|
|
|
  |
 |
Александр Шалагин

Зарегистрирован: Пт 2 Январь 2009, 18:00
Сообщения: 1341
Регион: Киров
|
Добавлено:
Пт 4 Ноябрь 2011, 19:58
|
  |
|
    |
 |
Zhubi
Зарегистрирован: Пт 4 Ноябрь 2011, 16:21
Сообщения: 12
Регион: Москва
|
Добавлено:
Пт 4 Ноябрь 2011, 20:16
|
  |
Спасибо! Но сегодня поздновато, а завтра продолжения дня Согласия и Примирения! В понедельник буду заполнять опросный лист. Но у меня в эти выходные закладывают фундамент. Подскажите размеры плиты под такую печку.
И еще. Ориентировка ХК и топки на 180гр. не ухудшает эффективность отопления помещения? Хотели в разные стороны, чтобы в гостиной можно было любоваться огнем . А у вас на форуме прочитала о том, что стеклянные дверцы хуже чугунных.
И еще на взгляд профессионала: может быть лучше вот такое размещение печи?
Помогите Блондинке
|
| Описание: |
|
| Размер файла: |
355.27 КБ |
| Просмотров: |
840 раз(а) |

|
|
|
  |
 |
Виктор_А

Зарегистрирован: Чт 6 Январь 2011, 17:01
Сообщения: 850
Регион: МО г.Серпухов
|
Добавлено:
Пт 4 Ноябрь 2011, 20:32
|
  |
По поводу дверцы ХК- возьмите глухую, стекло всегда можно докупить. А по фундаменту- печь с фото 5*4 кирпича( 1300*1000мм).Фундамент 1400* 1100мм.
|
Последний раз редактировалось: Виктор_А (Пт 4 Ноябрь 2011, 20:35), всего редактировалось 1 раз |
|
    |
 |
Шура

Зарегистрирован: Чт 8 Январь 2009, 20:09
Сообщения: 4171
Регион: Москва - Тамбов
|
Добавлено:
Пт 4 Ноябрь 2011, 20:34
|
  |
| Zhubi писал(а): |
... А у вас на форуме прочитала о том, что стеклянные дверцы хуже чугунных.
И еще на взгляд профессионала: может быть лучше вот такое размещение печи? |
Чугунные дверки считаются лучшими для банных печей, а в Вашем случае, лучше со стеклом.
Второй вариант размещения печи, гораздо лучше, а ещё лучше, убрать внутренний угол(переруб), чтобы он не загораживал излучение от печи. Если убрать переруб нежелательно, из за того что он является несущим элементом сруба, то можно его заменить на столб, с возможностью регулировки высоты.
|
| Описание: |
|
| Размер файла: |
28.66 КБ |
| Просмотров: |
760 раз(а) |

|
|
|
   |
 |
Zhubi
Зарегистрирован: Пт 4 Ноябрь 2011, 16:21
Сообщения: 12
Регион: Москва
|
Добавлено:
Пт 4 Ноябрь 2011, 21:15
|
  |
Благодарю за консультацию! Я и предполагала, что дверца ХК будет металл, а топка - стекло.
Убирать переруб нежелательно. Да и жалко терять площадь кухни на которую у меня (как у хозяйки) большие планы. Сначала вообще планировали голландку, но почувствовав возможность печь хлеб... Мечта!!!
А если вариант со всеми основными технологическими отверстиями в сторону столовой - где у печки будет труба наверх - на уровне столовой или гостиной? Архитектор спрашивает. Бедному не даю в выходные отдыхать.
Хотя наверно этот вопрос решается и позже? Или конструкция печи строго выдержана по плану?
|
|
|
|
  |
 |
Zhubi
Зарегистрирован: Пт 4 Ноябрь 2011, 16:21
Сообщения: 12
Регион: Москва
|
Добавлено:
Сб 5 Ноябрь 2011, 19:14
|
  |
Господа Печники, снова SOS!
Пересчитала положение печи на фундаменте. Получается, что плита под печь пересекает ленту фундамента дома. Можно так делать или нет? Прочитала, что фундаменты не должны быть связаны. Что же делать?
|
|
|
|
  |
 |
pe4ka
Зарегистрирован: Ср 23 Сентябрь 2009, 17:36
Сообщения: 1918
Регион: Туймазы
|
Добавлено:
Сб 5 Ноябрь 2011, 19:56
|
  |
Поднимите книги по печам.Надо переделать проект.Одноперевальные печи-вчерашний день
|
_________________ окажу консультации по кладке печей каминов и их ремонту д51055 код8-34782 сот 8-9173752622 г.Туймазы башкирия
|
|
   |
 |
Виктор_А

Зарегистрирован: Чт 6 Январь 2011, 17:01
Сообщения: 850
Регион: МО г.Серпухов
|
Добавлено:
Сб 5 Ноябрь 2011, 20:14
|
  |
Если опора на фундамент будет равномерно распределена, то ничего страшного в этом нет.
|
|
|
|
    |
 |
Андрей_Алексеевич

Зарегистрирован: Пн 13 Декабрь 2010, 19:17
Сообщения: 5932
Регион: малая родина Павлова, Скобелева, Циолковского, Уткиных и др.
|
Добавлено:
Сб 5 Ноябрь 2011, 20:15
|
  |
| Zhubi писал(а): |
Господа Печники, снова SOS!
Пересчитала положение печи на фундаменте. Получается, что плита под печь пересекает ленту фундамента дома. Можно так делать или нет? Прочитала, что фундаменты не должны быть связаны. Что же делать? |
Если фундамент под стены дома монолитный ж/б шириной не менее 0,5м. высотой 1,40м., залит единым массивом с фундаментом под печь (плюсом по 15 см с каждой стороны печи), то возможно.
|
_________________ Печник - милостью и промыслом Божиим.
Печное отопление частного дома и т.п., авторское сопровождение проектов, наставничество в т.ч. дистанционное, партнёрство в кладке печей.
89106130763 МТС
andrejka61@mail.ru
andrej.kuzmischev@yandex.ru
|
|
   |
 |
Zhubi
Зарегистрирован: Пт 4 Ноябрь 2011, 16:21
Сообщения: 12
Регион: Москва
|
Добавлено:
Сб 5 Ноябрь 2011, 20:23
|
  |
Фундамент лента шириной 40 см, глубиной 60 см + столбы на 1,5 м. Фундамент рассмптривали по плюс 5 см с каждой стороны, но это еще не поздно исправить.
А как опору на фундамент распределить равномерно? Если я завтра скажу такую фразу моему фундаментщику - он поймет о чем речь?
|
|
|
|
  |
 |
Zhubi
Зарегистрирован: Пт 4 Ноябрь 2011, 16:21
Сообщения: 12
Регион: Москва
|
Добавлено:
Сб 5 Ноябрь 2011, 20:27
|
  |
| pe4ka писал(а): |
| Поднимите книги по печам.Надо переделать проект.Одноперевальные печи-вчерашний день |
Даже Гугл не нашел ответа о том, что такое одноперевальные печи. РасскАжите? А вчерашний день... так все новое хорошо забытое старое.
|
|
|
|
  |
 |
Виктор_А

Зарегистрирован: Чт 6 Январь 2011, 17:01
Сообщения: 850
Регион: МО г.Серпухов
|
Добавлено:
Сб 5 Ноябрь 2011, 20:35
|
  |
Если фундамет заливной, то проблем нет (Зальёте монолит, и всё). Если же лента, то центральная ось печи должна попадать на ось фундамента( как-то так).
|
|
|
|
    |
 |
Zhubi
Зарегистрирован: Пт 4 Ноябрь 2011, 16:21
Сообщения: 12
Регион: Москва
|
Добавлено:
Сб 5 Ноябрь 2011, 22:33
|
  |
| Виктор_А писал(а): |
| Если фундамет заливной, то проблем нет (Зальёте монолит, и всё). Если же лента, то центральная ось печи должна попадать на ось фундамента( как-то так). |
Спасибо, с этим понятно. А где в таком случае располагается труба печи? И какие у нее габариты? Ведь в случае симметричногл расположения печь от стены (33 см) будет выступать по 40 см в каждую сторону. Достаточно для выхода трубы? Или ее встаивают в стену 2 этажа?
|
|
|
|
  |
 |
Андрей_Алексеевич

Зарегистрирован: Пн 13 Декабрь 2010, 19:17
Сообщения: 5932
Регион: малая родина Павлова, Скобелева, Циолковского, Уткиных и др.
|
Добавлено:
Сб 5 Ноябрь 2011, 22:37
|
  |
| Zhubi писал(а): |
Фундамент лента шириной 40 см, глубиной 60 см + столбы на 1,5 м. Фундамент рассмптривали по плюс 5 см с каждой стороны, но это еще не поздно исправить.
А как опору на фундамент распределить равномерно? Если я завтра скажу такую фразу моему фундаментщику - он поймет о чем речь? |
Вот подобным образом... Но это справедливо лишь для монолитных фундаментов!!!
|
_________________ Печник - милостью и промыслом Божиим.
Печное отопление частного дома и т.п., авторское сопровождение проектов, наставничество в т.ч. дистанционное, партнёрство в кладке печей.
89106130763 МТС
andrejka61@mail.ru
andrej.kuzmischev@yandex.ru
| Описание: |
|
| Размер файла: |
37.9 КБ |
| Просмотров: |
801 раз(а) |

|
|
|
   |
 |
Валентин Стрибук

Зарегистрирован: Чт 17 Июль 2008, 18:53
Сообщения: 636
Регион: Москва
|
Добавлено:
Сб 5 Ноябрь 2011, 23:18
|
  |
Как Вы собираетесь попасть центром тяжести печи на ось фундамента?????
Вернитесь к первому варианту, где красный квадрат стоит в столовой ("мечта хозяйки") и никак не пересекает фундамент дома. Если надо быстро, то залейте в этом месте завышенный по размерам монолитный железобетонный фундамент, скажем 150*150см, не доходящий до уровня пола сантиметров на 20.
Надо ещё и возможность прохождения трубы посмотреть.
Сразу залить второй фундамент под камин с кирпичным аккумулятором тепла.
|
_________________ 9164865048@mail.ru ... Вернём русскую печь в Россию через барбекю
|
|
     |
 |
|
|