| Автор |
Сообщение
|
karenin

Зарегистрирован: Пн 8 Сентябрь 2008, 15:52
Сообщения: 74
Регион: Санкт Петербург
|
Добавлено:
Пн 1 Август 2011, 17:30
|
  |
Подскажите ПЖта,знатоки жизнеспособна ли такая идея в подвале котеджа установить котел,на дравах ,угле ,др твердом топливе. а над ним, на 1-м жилом этаже, печь-камин или щиток отопительный с выходом в общий дымоход. Комната 4х6 м дом 2 этажа общ. площадь 150 м кв.? Какой конструкции котел выбрать.
Спасибо!
|
_________________ Дымоходы Шидель В СПБ и Л.О. поставка и монтаж
Официальный сертифицированный партнер Schiedel на СЗ
|
|
     |
 |
Евгений Колчин

Зарегистрирован: Чт 3 Октябрь 2002, 06:26
Сообщения: 10146
Регион: Москва
|
Добавлено:
Пн 1 Август 2011, 21:32
|
  |
Если котел устанавливается типа КИК, то вполне реально сделать на его перекрытие вторую печь уже на первом этаже.
Получаем- котел для зимы, а в межсезонье работает печь.
Самый распространенный вариант при наличие подвального (цокольного) помещения.
По такой схеме ставили и котел с печью в Полушкино на семинаре в 2009 г. Два сезона люди живут и отопливают дом котлом и печью, в зависимости от холодов.
|
_________________ ************************************
|
|
      |
 |
diobar
Зарегистрирован: Пт 5 Август 2011, 21:35
Сообщения: 5
Регион: Область Киева
|
Добавлено:
Пт 5 Август 2011, 21:53
|
  |
Здравствуйте уважаемые профессионалы печных дел! Просветите дилетанта!
Учитывая потери лучистого излучения, достаточно ли мощности топки КИК-17, размещенного в подвале, для поочередного выполнения задачи нагрева через задвижку летнего хода лежанки (1750*1500*700мм.), или отопительного щитка (2500*370*2400мм.)?
|
| Описание: |
|
| Размер файла: |
64.55 КБ |
| Просмотров: |
864 раз(а) |

|
|
|
  |
 |
Евгений Колчин

Зарегистрирован: Чт 3 Октябрь 2002, 06:26
Сообщения: 10146
Регион: Москва
|
Добавлено:
Сб 6 Август 2011, 07:39
|
  |
будет достаточно...НО
схема д.б прямая: котел->щиток->дымовая труба
|
_________________ ************************************
|
|
      |
 |
diobar
Зарегистрирован: Пт 5 Август 2011, 21:35
Сообщения: 5
Регион: Область Киева
|
Добавлено:
Сб 6 Август 2011, 10:09
|
  |
Спасибо за уделенное внимание!
Правильно ли я понимаю, что предложенная мною схема расположения отопительных приборов не сможет работать по причине большой протяженности горизонтальных участков движения дымовых газов от топки до дымовой трубы? Или еще есть другая причина?
|
|
|
|
  |
 |
Евгений Колчин

Зарегистрирован: Чт 3 Октябрь 2002, 06:26
Сообщения: 10146
Регион: Москва
|
Добавлено:
Сб 6 Август 2011, 14:16
|
  |
если все еще и горизонтально, тогда вообще не пойдет
а как вы планируете щиток с лежанкой, можно схему?
|
_________________ ************************************
|
|
      |
 |
diobar
Зарегистрирован: Пт 5 Август 2011, 21:35
Сообщения: 5
Регион: Область Киева
|
Добавлено:
Сб 6 Август 2011, 21:41
|
  |
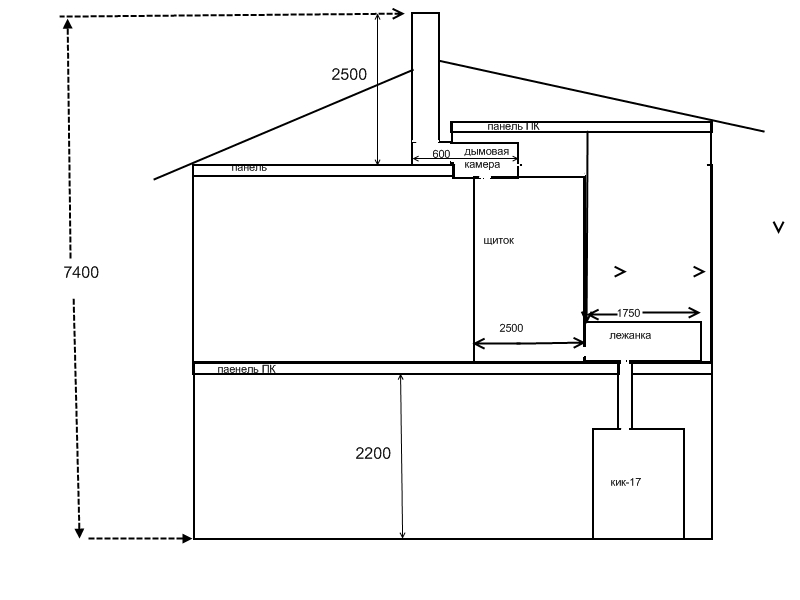
Очень благодарен за внимание! Схема которую мне хотелось бы реализовать возникла по причине невозможности расположения отопительных приборов по классике (один над другим). Причина - нет желания в панелях ПК долбить дыры для организации дымовых каналов. Схема носит условный характер.
Обозначения:
а, б - задвижки включения-выключения щитка;
с-стена,
д - задвижка включения-выключения лежанки,
куг - камера управления газами, окошко в куг возле стенки подвертка лежанки,
г1+г2-участок который я называю горизонтальным
|
| Описание: |
|
| Размер файла: |
35.34 КБ |
| Просмотров: |
673 раз(а) |

|
|
|
  |
 |
Евгений Колчин

Зарегистрирован: Чт 3 Октябрь 2002, 06:26
Сообщения: 10146
Регион: Москва
|
Добавлено:
Сб 6 Август 2011, 21:58
|
  |
| diobar писал(а): |
Причина - нет желания ... |
тогда удачи ...
|
_________________ ************************************
|
|
      |
 |
diobar
Зарегистрирован: Пт 5 Август 2011, 21:35
Сообщения: 5
Регион: Область Киева
|
Добавлено:
Вс 7 Август 2011, 20:40
|
  |
Евгений Викторович, а есть ли шанс на удачу при реализации этой "схемы"?
Какие "подводные камни" могут появится при материализации этой идеи?
Заранее благодарен!
|
|
|
|
  |
 |
karenin

Зарегистрирован: Пн 8 Сентябрь 2008, 15:52
Сообщения: 74
Регион: Санкт Петербург
|
Добавлено:
Чт 8 Сентябрь 2011, 16:18
|
  |
Не котел такой!
Древний, чугуневый.;-) А отопительный щиток -как общий дымоход- из подвала до крыши..
|
_________________ Дымоходы Шидель В СПБ и Л.О. поставка и монтаж
Официальный сертифицированный партнер Schiedel на СЗ
| Описание: |
|
| Размер файла: |
35.97 КБ |
| Просмотров: |
902 раз(а) |

|
| Описание: |
|
| Размер файла: |
28.77 КБ |
| Просмотров: |
898 раз(а) |

|
|
|
     |
 |
karenin

Зарегистрирован: Пн 8 Сентябрь 2008, 15:52
Сообщения: 74
Регион: Санкт Петербург
|
Добавлено:
Чт 8 Сентябрь 2011, 16:20
|
  |
правду ли говорят что без воды эти котлы?? склонны к рассыханию????:-)
На какую мощность он расчитан???
|
_________________ Дымоходы Шидель В СПБ и Л.О. поставка и монтаж
Официальный сертифицированный партнер Schiedel на СЗ
|
|
     |
 |
Александр Спиридонов
Зарегистрирован: Чт 18 Август 2011, 17:30
Сообщения: 68
Регион: Москва
|
Добавлено:
Чт 8 Сентябрь 2011, 18:57
|
  |
karenin, этот чугунный маломощный бестолковый котел сдать на металлолом, а вместо него построить нормальный кирпичный котел с регистром из стальных труб. Трубы лучше из нержавейки, если позволяет бюджет.
|
_________________ Печник на пенсии, 1950-го года рождения от Рождества Христова
|
|
  |
 |
karenin

Зарегистрирован: Пн 8 Сентябрь 2008, 15:52
Сообщения: 74
Регион: Санкт Петербург
|
Добавлено:
Вт 13 Сентябрь 2011, 09:19
|
  |
Почему маломощный?и бестолковый(КПД маленький? Люди у которых он стоял сказали что он грел дам м 80 кв. и служил цать лет?
|
_________________ Дымоходы Шидель В СПБ и Л.О. поставка и монтаж
Официальный сертифицированный партнер Schiedel на СЗ
|
|
     |
 |
Александр Спиридонов
Зарегистрирован: Чт 18 Август 2011, 17:30
Сообщения: 68
Регион: Москва
|
Добавлено:
Вт 13 Сентябрь 2011, 11:56
|
  |
| karenin писал(а): |
| Люди у которых он стоял сказали что он грел дам м 80 кв. и служил цать лет? |
Ну так поставьте себе 2 таких котла и пусть они греют дом площадью 160 кв. м и служат вам -надцать лет. И вы будете при этих котлах круглосуточным истопником.
Если этот котел такой хороший, почему тогда эти люди его сняли и отдали (бесплатно) вам?
|
_________________ Печник на пенсии, 1950-го года рождения от Рождества Христова
|
|
  |
 |
Александр Спиридонов
Зарегистрирован: Чт 18 Август 2011, 17:30
Сообщения: 68
Регион: Москва
|
Добавлено:
Вт 13 Сентябрь 2011, 12:01
|
  |
| diobar писал(а): |
| Причина - нет желания в панелях ПК долбить дыры для организации дымовых каналов. |
Эти панели выдержат на себе вес кирпичной кладки лежанки, щитка, дымовой камеры, кирпичного дымохода?
|
_________________ Печник на пенсии, 1950-го года рождения от Рождества Христова
|
|
  |
 |
Александр Спиридонов
Зарегистрирован: Чт 18 Август 2011, 17:30
Сообщения: 68
Регион: Москва
|
Добавлено:
Вт 13 Сентябрь 2011, 12:02
|
  |
| diobar писал(а): |
| Какие "подводные камни" могут появится при материализации этой идеи? |
Все завалится еще на этапе строительства.
|
_________________ Печник на пенсии, 1950-го года рождения от Рождества Христова
|
|
  |
 |
|
|