 |
|
 |
| Автор |
Сообщение
|
Тимур
Зарегистрирован: Сб 15 Январь 2011, 15:39
Сообщения: 27
Регион: Москва
|
Добавлено:
Чт 21 Март 2013, 13:54
|
  |
Дом на стадии проектирования, не могу разобраться с местом (фундаментом) под печь, и какого типа печь выбрать. Хотелось бы с камином. Нужна подсказка где лучше разместить печь, и какую площадь она будет занимать. Или может поставить в гостиной дровяную печь JOTUL???
|
| Описание: |
|
| Размер файла: |
68.86 КБ |
| Просмотров: |
791 раз(а) |

|
|
|
  |
 |
Андрей_Алексеевич

Зарегистрирован: Пн 13 Декабрь 2010, 19:17
Сообщения: 5990
Регион: малая родина Павлова, Скобелева, Циолковского, Уткиных и др.
|
Добавлено:
Чт 21 Март 2013, 17:31
|
  |
Меняйте местами кабинет и санузел!
Камино-печь с ХК, ВП и регистром ГВС (возможно и с раздельными топками), 2-рой этаж - труба-щиток отопительный, возможно с закрытым камином.
Планировку 2-го этажа стоит приспособить под печное отопление.
|
_________________ Печник - милостью и промыслом Божиим.
Печное отопление частного дома и т.п., авторское сопровождение проектов, наставничество в т.ч. дистанционное, партнёрство в кладке печей.
89106130763 МТС
andrejka61@mail.ru
andrej.kuzmischev@yandex.ru
|
|
   |
 |
Владимир Солин

Зарегистрирован: Ср 9 Сентябрь 2009, 12:52
Сообщения: 3804
Регион: Череповец
|
Добавлено:
Чт 21 Март 2013, 17:41
|
  |
Действительно... Вместе с бойлерной и зоной отдыха...
Этих архитектеров... к стенке бы уже пора... Не могут понять, что печка это не роскошь, а способ обогреть максимально эффективно дом.
И все вопросы по отоплению отпадут.
|
_________________ САМОназначенный дебил форума в 2017году
|
|
  |
 |
Тимур
Зарегистрирован: Сб 15 Январь 2011, 15:39
Сообщения: 27
Регион: Москва
|
Добавлено:
Чт 21 Март 2013, 18:09
|
  |
| Андрей_Алексеевич писал(а): |
Меняйте местами кабинет и санузел!
Камино-печь с ХК, ВП и регистром ГВС (возможно и с раздельными топками), 2-рой этаж - труба-щиток отопительный, возможно с закрытым камином.
Планировку 2-го этажа стоит приспособить под печное отопление. |
Так так)))) по подробнее, ХК, ВП и регистор ГВС это что и как? И Ваше мнение мне очень интересно, как переиграть планировку лучше по второму этажу?
|
|
|
|
  |
 |
Dreamdavids
Зарегистрирован: Сб 29 Октябрь 2011, 07:18
Сообщения: 1105
Регион: Пермь
|
Добавлено:
Чт 21 Март 2013, 18:12
|
  |
Если не для обогрева,то Туликиви с ХК угловую посмотрите.
|
_________________ +79222445758 Владимир
|
|
  |
 |
Тимур
Зарегистрирован: Сб 15 Январь 2011, 15:39
Сообщения: 27
Регион: Москва
|
Добавлено:
Чт 21 Март 2013, 18:27
|
  |
| Dreamdavids писал(а): |
| Если не для обогрева,то Туликиви с ХК угловую посмотрите. |
Почему не для обогрева? Печка нужна мне для обогрева. Сейчас почитал и понял что вроде печки аля Ётул не подходят для постоянного применения.
Нужно увязать планировку и фундамент дома для нормальной хорошей печки. Отсюда первые вопросы, какую площадь фундамента и где отливать под печь. Хочется с камином.... А может быть вмонтировать каминную топку и тогда камин по сути не нужен. Проект в стадии разработки, поэтому все подвижки возможны. Всем спасибо за помощь, прям гора с плеч.
|
|
|
|
  |
 |
Андрей_Алексеевич

Зарегистрирован: Пн 13 Декабрь 2010, 19:17
Сообщения: 5990
Регион: малая родина Павлова, Скобелева, Циолковского, Уткиных и др.
|
Добавлено:
Чт 21 Март 2013, 18:47
|
  |
Камино-печь с чугунной каминной дверцей, или чугунной касетой (но без теплосъёмных элементов!!!)
Вариантов - не счесть...
Моему клиенту приглянулся вот этот проект: "ПРОСТОЙ 7х8" (проект ПМЖ)
http://www.invapolis.ru/pasport/derevyannie_zhilie_doma/prostoj_7h8/ (НЕ РЕКЛАМА!!! просто планировка под печное отопление, что - редкость), только реализовывать будут в керамзите.
Терминология на форуме http://forum.stovemaster.ru/viewtopic.php?t=4018&highlight=%F2%E5%F0%EC%E8%ED%FB+++%EE%EF%F0%E5%E4%E5%EB%E5%ED%E8%FF
без реквизитов проекта (не указали даже периметр!!!) напрасно Вы спрашиваете конкретных советов , в ответ на Ваши "секретки" получите "молчанку"...
|
_________________ Печник - милостью и промыслом Божиим.
Печное отопление частного дома и т.п., авторское сопровождение проектов, наставничество в т.ч. дистанционное, партнёрство в кладке печей.
89106130763 МТС
andrejka61@mail.ru
andrej.kuzmischev@yandex.ru
|
|
   |
 |
Тимур
Зарегистрирован: Сб 15 Январь 2011, 15:39
Сообщения: 27
Регион: Москва
|
Добавлено:
Чт 21 Март 2013, 19:01
|
  |
| Андрей_Алексеевич писал(а): |
без реквизитов проекта (не указали даже периметр!!!) напрасно Вы спрашиваете конкретных советов , в ответ на Ваши "секретки" получите "молчанку"...  |
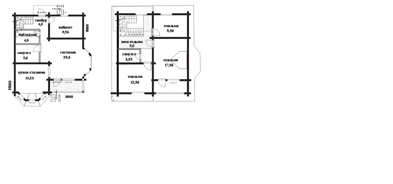
Я извиняюсь! Просто PDF файл не закачивается на этот ресурс. У меня секретов нет, дом из профилированного бруса 190х190, ориентированный проект вот - http://www.teremvk.ru/katalog-proektov/doma/dom-124-mkv
Простите если что не так.
Просто вроде как с архитектурой что потяну и что понравилось глаз остановился. Сейчас в общих чертах думаю что нужно делать. Упёрся в фундамент, если фундамент, то сразу нужно и про печку подумать. И понеслось)))
PS Размеры дома там есть на плане первого этажа.
|
|
|
|
  |
 |
Андрей_Алексеевич

Зарегистрирован: Пн 13 Декабрь 2010, 19:17
Сообщения: 5990
Регион: малая родина Павлова, Скобелева, Циолковского, Уткиных и др.
|
Добавлено:
Чт 21 Март 2013, 19:11
|
  |
Д.в.ч. такую планировку - "квартирную" без ТАКа не прогреть - имеются жилые помещения, не соприкасающиеся с поверхостью печи , а это не верно!
Регистр ГВС в печь ставить без ТАКа безсмысленно, к.м.к.
Поищите планировку типа той, что указал, или прийдётся ставить 2-ве печки...
За эркеры - "5-тёрочка с ++++++" , только это + 40 % к мощности печи...
|
_________________ Печник - милостью и промыслом Божиим.
Печное отопление частного дома и т.п., авторское сопровождение проектов, наставничество в т.ч. дистанционное, партнёрство в кладке печей.
89106130763 МТС
andrejka61@mail.ru
andrej.kuzmischev@yandex.ru
|
|
   |
 |
Тимур
Зарегистрирован: Сб 15 Январь 2011, 15:39
Сообщения: 27
Регион: Москва
|
Добавлено:
Чт 21 Март 2013, 19:16
|
  |
Какие основные критерии планировки должны быть соблюдены для печного отопления? И где на приведённом Вами примере размещается печь?
| Цитата: |
| только это + 40 % к мощности печи... Cool |
Это в смысле как?
|
|
|
|
  |
 |
Андрей_Алексеевич

Зарегистрирован: Пн 13 Декабрь 2010, 19:17
Сообщения: 5990
Регион: малая родина Павлова, Скобелева, Циолковского, Уткиных и др.
|
Добавлено:
Чт 21 Март 2013, 19:27
|
  |
Нет желания Вас "гонять" по форуму... да ладно - "При проектировании печного отопления жилых зданий следует размещать отопительные устройства (печи) таким образом, чтобы их теплоотдающие поверхности пропорционально выходили в максимальное количество комнат и хозбытовых помещений...не более 4-х..."
Вот у того-же проектировщика - "Деревянный дом "Дом 99,7 м.кв."
|
_________________ Печник - милостью и промыслом Божиим.
Печное отопление частного дома и т.п., авторское сопровождение проектов, наставничество в т.ч. дистанционное, партнёрство в кладке печей.
89106130763 МТС
andrejka61@mail.ru
andrej.kuzmischev@yandex.ru
| Описание: |
|
| Размер файла: |
29.34 КБ |
| Просмотров: |
661 раз(а) |

|
| Описание: |
|
| Размер файла: |
22.36 КБ |
| Просмотров: |
696 раз(а) |

|
|
|
   |
 |
Андрей_Алексеевич

Зарегистрирован: Пн 13 Декабрь 2010, 19:17
Сообщения: 5990
Регион: малая родина Павлова, Скобелева, Циолковского, Уткиных и др.
|
Добавлено:
Чт 21 Март 2013, 20:44
|
  |
| Тимур писал(а): |
| ...только это + 40 % к мощности печи... Cool |
Это в смысле как? [/quote]
Эркерные окна часто делают "от пола...", а это - теплопотери... вот их то и компенсирует увеличенное кол-во кирпичей...
|
_________________ Печник - милостью и промыслом Божиим.
Печное отопление частного дома и т.п., авторское сопровождение проектов, наставничество в т.ч. дистанционное, партнёрство в кладке печей.
89106130763 МТС
andrejka61@mail.ru
andrej.kuzmischev@yandex.ru
|
|
   |
 |
Андрей_Алексеевич

Зарегистрирован: Пн 13 Декабрь 2010, 19:17
Сообщения: 5990
Регион: малая родина Павлова, Скобелева, Циолковского, Уткиных и др.
|
Добавлено:
Чт 21 Март 2013, 20:46
|
  |
| Тимур писал(а): |
| ...И где на приведённом Вами примере размещается печь?... |
Да вот, собственно
|
_________________ Печник - милостью и промыслом Божиим.
Печное отопление частного дома и т.п., авторское сопровождение проектов, наставничество в т.ч. дистанционное, партнёрство в кладке печей.
89106130763 МТС
andrejka61@mail.ru
andrej.kuzmischev@yandex.ru
| Описание: |
| 5-тая становится детской игровой, либо холлом... |
|
| Размер файла: |
47.02 КБ |
| Просмотров: |
682 раз(а) |

|
| Описание: |
|
| Размер файла: |
51.47 КБ |
| Просмотров: |
677 раз(а) |

|
|
|
   |
 |
Тимур
Зарегистрирован: Сб 15 Январь 2011, 15:39
Сообщения: 27
Регион: Москва
|
Добавлено:
Чт 21 Март 2013, 21:02
|
  |
С планировкой для печного отопления вроде начинаю понимать. Ещё вопрос, если я планирую печь с каминной топкой и варочной панелью для этого дома, какой ширины и длинны делать фундамент под печь? +/- оптимально
|
|
|
|
  |
 |
Андрей_Алексеевич

Зарегистрирован: Пн 13 Декабрь 2010, 19:17
Сообщения: 5990
Регион: малая родина Павлова, Скобелева, Циолковского, Уткиных и др.
|
Добавлено:
Чт 21 Март 2013, 21:11
|
  |
В зависимости от теплопотерь... усреднённое значение периметра теплоёмкой печи (при 1-нократной топке) к отапливаемой площади: 8-12 %.
Размеры ПМЖ берутся ВНЕШНИЕ!!!
А вообще-то для точности и выполняется проект...
Размеры фундамента д.б. увеличены по отношению к периметру печи, да ещё с учётом расположения ТД...
Короче - не хотите изучать - делайте заказ.
|
_________________ Печник - милостью и промыслом Божиим.
Печное отопление частного дома и т.п., авторское сопровождение проектов, наставничество в т.ч. дистанционное, партнёрство в кладке печей.
89106130763 МТС
andrejka61@mail.ru
andrej.kuzmischev@yandex.ru
|
|
   |
 |
Тимур
Зарегистрирован: Сб 15 Январь 2011, 15:39
Сообщения: 27
Регион: Москва
|
Добавлено:
Чт 21 Март 2013, 22:08
|
  |
Мне до заказа "печного проекта" ещё далеко
Хотел определиться просто с местом и площадью подготовки фундамента под печь в доме которого ещё нет. Изначально не думал что это так сложно.
Спасибо что сразу не послали
|
|
|
|
  |
 |
Андрей_Алексеевич

Зарегистрирован: Пн 13 Декабрь 2010, 19:17
Сообщения: 5990
Регион: малая родина Павлова, Скобелева, Циолковского, Уткиных и др.
|
Добавлено:
Чт 21 Март 2013, 22:26
|
  |
... не дождётесь!
Для 2-вух этажного ПМЖ с открытым лестничным маршем при S=100 М/кВ. размеры фундамента д.б. 200х250 см.
Это - для печи с 1-нократной топкой в сутки.
При двухкратной топке - 170х200 см.
ВСЕ РАЗМЕРЫ - ОРИЕНТИРОВОЧНЫЕ!!! Точность даёт лишь расчёт и проект!
|
_________________ Печник - милостью и промыслом Божиим.
Печное отопление частного дома и т.п., авторское сопровождение проектов, наставничество в т.ч. дистанционное, партнёрство в кладке печей.
89106130763 МТС
andrejka61@mail.ru
andrej.kuzmischev@yandex.ru
|
|
   |
 |
Тимур
Зарегистрирован: Сб 15 Январь 2011, 15:39
Сообщения: 27
Регион: Москва
|
Добавлено:
Чт 21 Март 2013, 23:14
|
  |
Спасибо! Два на два с половиной
Допустим 1.7х2 Сильно не пинайте, тот прямоугольник это печка, прилегающие комнаты - кухня, спальня, гостиная. Понимаю что всё это сыро....примерно так должно выглядеть?
|
| Описание: |
|
| Размер файла: |
54.08 КБ |
| Просмотров: |
691 раз(а) |

|
|
|
  |
 |
Павел_П

Зарегистрирован: Чт 6 Август 2009, 09:12
Сообщения: 423
Регион: Москва
|
Добавлено:
Пт 22 Март 2013, 03:17
|
  |
| Тимур писал(а): |
| С планировкой для печного отопления вроде начинаю понимать. Ещё вопрос, если я планирую печь с каминной топкой и варочной панелью для этого дома, какой ширины и длинны делать фундамент под печь? +/- оптимально |
Тимур! варочная панель для такого дома - зачем ???
что вы будете готовить на этой плите ?
чтобы прогреть более-менее равномерно все помещения - нужна система водяного отопления. в бойлерной установите или электрокотел или дизельный. печь например на месте букв "VK". далековато конечно от бойлерной, но терпимо...
готовка в печи посредством хлебной камеры. каминная топка /кассета/ не нужна.
печные дверки со стеклом есть в большом ассортименте и на почти любой вкус...
получаем на выходе : каминопечь с ХК и регистром ВО.
|
_________________ щи да каша - пища наша
|
|
   |
 |
Тимур
Зарегистрирован: Сб 15 Январь 2011, 15:39
Сообщения: 27
Регион: Москва
|
Добавлено:
Пт 22 Март 2013, 07:49
|
  |
Тоже интересное предложение. Подумаю, спасибо!
|
|
|
|
  |
 |
|
|
|
Следующая тема
Предыдущая тема
Вы не можете начинать темы Вы не можете отвечать на сообщения Вы не можете редактировать свои сообщения Вы не можете удалять свои сообщения Вы не можете голосовать в опросах Вы не можете добавлять приложения в этом форуме Вы можете скачивать файлы в этом форуме
|
|