| Автор |
Сообщение
|
banderas81
Зарегистрирован: Пн 28 Ноябрь 2011, 22:38
Сообщения: 106
Регион: Великий Новгород
|
Добавлено:
Пн 28 Ноябрь 2011, 23:34
|
  |
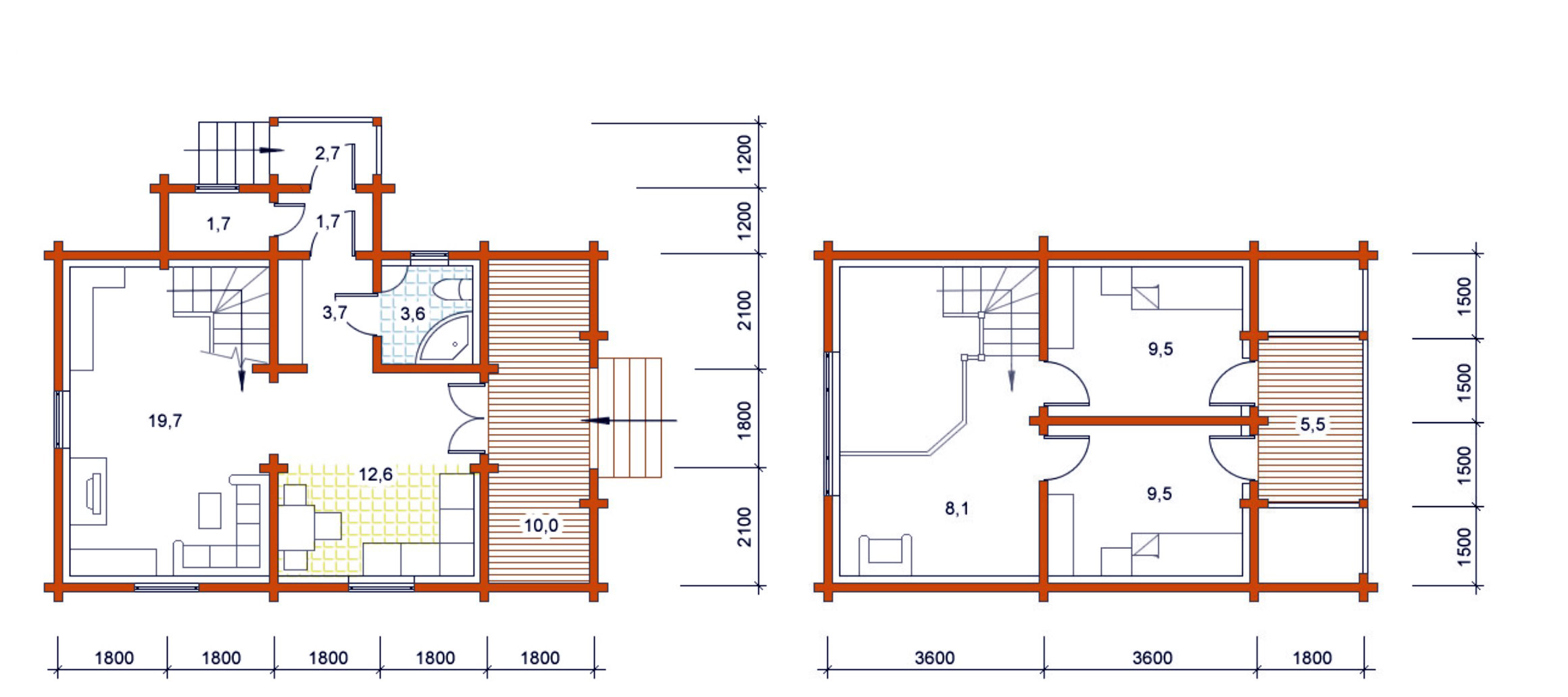
Уважаемые мастера.
Собираемся строится. Дом рубленный для ПМЖ 1.5 этажа в Новгородской области.
Возможно-ли в домах с подобной планировкой сделать печное отопление ?
Проекты не окончательны.
Рассматриваем возможные варианты по оптимизации помещений. Перенос перегородок и т.д. окромя несущих.
Профессионалы помогите спроектировать дом мечты. Не хочется уже в готовом доме пилить перегородки. достраивать фундаменты.
|
| Описание: |
|
| Размер файла: |
98.97 КБ |
| Просмотров: |
1245 раз(а) |

|
| Описание: |
|
| Размер файла: |
61.98 КБ |
| Просмотров: |
963 раз(а) |

|
| Описание: |
|
| Размер файла: |
347.14 КБ |
| Просмотров: |
927 раз(а) |

|
|
|
  |
 |
Шура

Зарегистрирован: Чт 8 Январь 2009, 20:09
Сообщения: 4171
Регион: Москва - Тамбов
|
Добавлено:
Вт 29 Ноябрь 2011, 00:50
|
  |
|
   |
 |
banderas81
Зарегистрирован: Пн 28 Ноябрь 2011, 22:38
Сообщения: 106
Регион: Великий Новгород
|
Добавлено:
Вт 29 Ноябрь 2011, 11:52
|
  |
В "котельной! будет помещение для обеспечения дома водой.
Мы и спрашиваем реально переделать эти помещения для отопления печью.
|
Последний раз редактировалось: banderas81 (Вт 29 Ноябрь 2011, 12:41), всего редактировалось 1 раз |
|
  |
 |
Андрей_Алексеевич

Зарегистрирован: Пн 13 Декабрь 2010, 19:17
Сообщения: 5990
Регион: малая родина Павлова, Скобелева, Циолковского, Уткиных и др.
|
Добавлено:
Вт 29 Ноябрь 2011, 12:19
|
  |
Уважаемый banderas81!
Выбирая-рисуя проект ПМЖ под печное отопление помните главное - к печи должны прилегать ВСЕ жилые и бытовые помещения дома!!! Их количество м.б. до 4-рёх на одном этаже.
Коридоры на улицу (выгороженные дверями), тамбуры, кладовки, террасы к таковым не относятся!
|
_________________ Печник - милостью и промыслом Божиим.
Печное отопление частного дома и т.п., авторское сопровождение проектов, наставничество в т.ч. дистанционное, партнёрство в кладке печей.
89106130763 МТС
andrejka61@mail.ru
andrej.kuzmischev@yandex.ru
|
|
   |
 |
Шура

Зарегистрирован: Чт 8 Январь 2009, 20:09
Сообщения: 4171
Регион: Москва - Тамбов
|
Добавлено:
Вт 29 Ноябрь 2011, 13:03
|
  |
| banderas81 писал(а): |
В "котельной! будет помещение для обеспечения дома водой.
Мы и спрашиваем реально переделать эти помещения для отопления печью. |
Переделывать надо не помещения, а проекты...
|
|
|
|
   |
 |
Boris759
Зарегистрирован: Ср 9 Февраль 2011, 08:36
Сообщения: 272
Регион: Belarus
|
Добавлено:
Вт 29 Ноябрь 2011, 19:11
|
  |
| Андрей_Алексеевич писал(а): |
Уважаемый banderas81!
Выбирая-рисуя проект ПМЖ под печное отопление помните главное - к печи должны прилегать ВСЕ жилые и бытовые помещения дома!!! Их количество м.б. до 4-рёх на одном этаже.
Коридоры на улицу (выгороженные дверями), тамбуры, кладовки, террасы к таковым не относятся! |
согласен тем более что не везде видно где капиталка а где перегородка
|
|
|
|
  |
 |
banderas81
Зарегистрирован: Пн 28 Ноябрь 2011, 22:38
Сообщения: 106
Регион: Великий Новгород
|
Добавлено:
Вт 29 Ноябрь 2011, 22:00
|
  |
Да, прошу прощения, не правильно сформулировал. Переделывать проекты будем однозначно, так как ничего подходящего не найти (((
Может кто знает где посмотреть проекты в которых предусмотрена печь???
|
|
|
|
  |
 |
Шура

Зарегистрирован: Чт 8 Январь 2009, 20:09
Сообщения: 4171
Регион: Москва - Тамбов
|
Добавлено:
Вт 29 Ноябрь 2011, 23:24
|
  |
| banderas81 писал(а): |
Да, прошу прощения, не правильно сформулировал. Переделывать проекты будем однозначно, так как ничего подходящего не найти (((
Может кто знает где посмотреть проекты в которых предусмотрена печь??? |
Скорее всего, готовых проектов, сейчас уже не найти. Надо заказывать в проектной фирме, обозначив техзадание.
Техзадание, можно предварительно обсудить на форуме.
Для начала, желательно определиться с общей площадью, этажностью и т.п.
|
|
|
|
   |
 |
banderas81
Зарегистрирован: Пн 28 Ноябрь 2011, 22:38
Сообщения: 106
Регион: Великий Новгород
|
Добавлено:
Ср 30 Ноябрь 2011, 14:00
|
  |
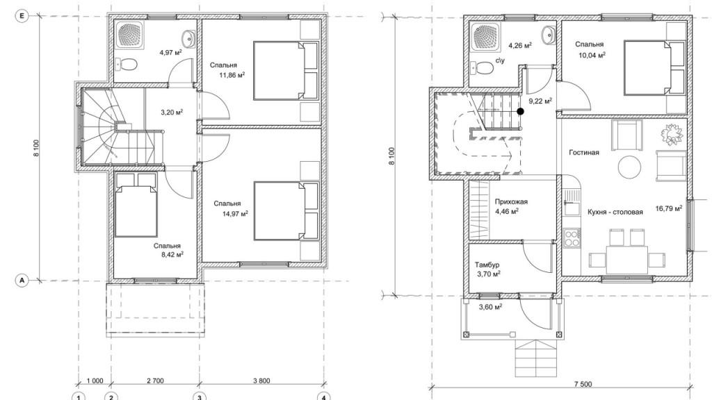
Вот супруга подкорректировала один проект, посмотрите плиз можно в него поставить печь?
Вообще хотим рубленный дом, пятистенок на 1,5 этажа. Чтобы был тамбур обязательно, прихожая, туалет на 1-м этаже, гостиная/столовая/кухня ,+ бойлерная, для обеспечения гор.водой кухни и сан.узла., с/у на втором этаже + 2 минимум комнаты.
|
| Описание: |
|
| Размер файла: |
156.26 КБ |
| Просмотров: |
953 раз(а) |

|
| Описание: |
|
| Размер файла: |
152.85 КБ |
| Просмотров: |
922 раз(а) |

|
|
|
  |
 |
banderas81
Зарегистрирован: Пн 28 Ноябрь 2011, 22:38
Сообщения: 106
Регион: Великий Новгород
|
Добавлено:
Ср 7 Декабрь 2011, 23:20
|
  |
подниму тему, какие мысли по последнему варианту?
|
|
|
|
  |
 |
Евгений Колчин

Зарегистрирован: Чт 3 Октябрь 2002, 06:26
Сообщения: 10145
Регион: Москва
|
Добавлено:
Чт 8 Декабрь 2011, 00:37
|
  |
все правильно
по первому этажу зональное деление печью и транзит на второй этаж в две спальные
|
_________________ ************************************
|
|
      |
 |
Boris759
Зарегистрирован: Ср 9 Февраль 2011, 08:36
Сообщения: 272
Регион: Belarus
|
Добавлено:
Чт 8 Декабрь 2011, 08:18
|
  |
| banderas81 писал(а): |
Вот супруга подкорректировала один проект, посмотрите плиз можно в него поставить печь?
Вообще хотим рубленный дом, пятистенок на 1,5 этажа. Чтобы был тамбур обязательно, прихожая, туалет на 1-м этаже, гостиная/столовая/кухня ,+ бойлерная, для обеспечения гор.водой кухни и сан.узла., с/у на втором этаже + 2 минимум комнаты. |
ЕСЛИ ДВЕ ПЕЧИ ТО МОЖНО ОТОПИТЬ ВЕСЬ ДОМ на 2-м этаже щитки от нижних печей
|
| Описание: |
|
| Размер файла: |
15.87 КБ |
| Просмотров: |
865 раз(а) |

|
| Описание: |
|
| Размер файла: |
16.03 КБ |
| Просмотров: |
819 раз(а) |

|
|
|
  |
 |
Андрей_Алексеевич

Зарегистрирован: Пн 13 Декабрь 2010, 19:17
Сообщения: 5990
Регион: малая родина Павлова, Скобелева, Циолковского, Уткиных и др.
|
Добавлено:
Чт 8 Декабрь 2011, 10:56
|
  |
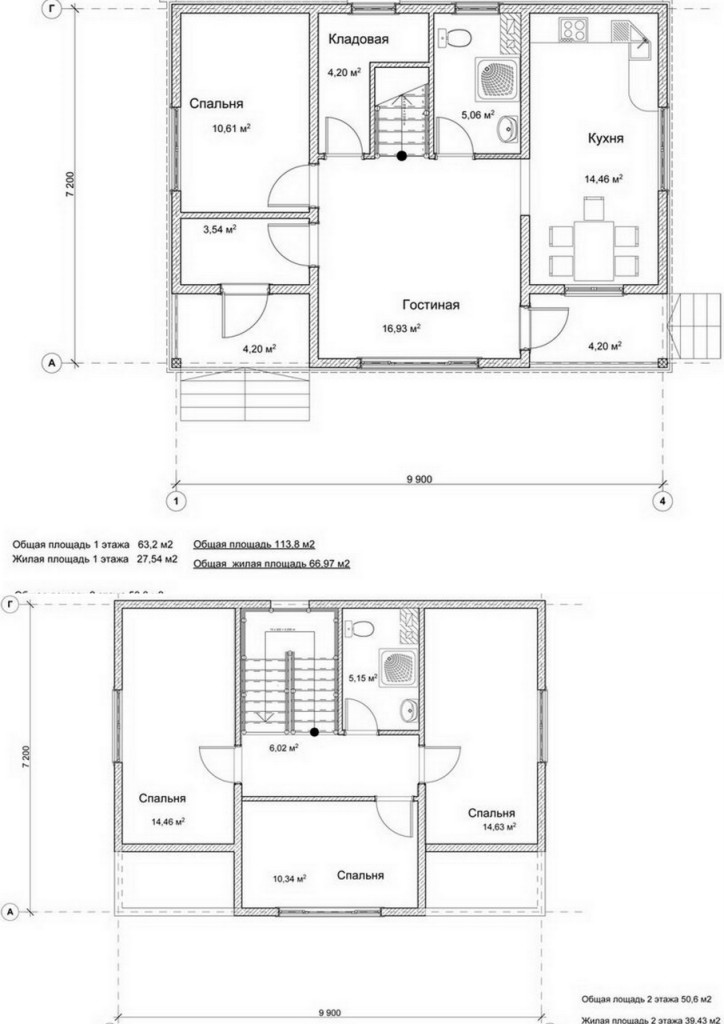
Посмотрите вот такие: (лестничный марш и тамбур можно разместить в любом помещении)
|
_________________ Печник - милостью и промыслом Божиим.
Печное отопление частного дома и т.п., авторское сопровождение проектов, наставничество в т.ч. дистанционное, партнёрство в кладке печей.
89106130763 МТС
andrejka61@mail.ru
andrej.kuzmischev@yandex.ru
| Описание: |
|
| Размер файла: |
27.45 КБ |
| Просмотров: |
813 раз(а) |

|
| Описание: |
|
| Размер файла: |
73.06 КБ |
| Просмотров: |
811 раз(а) |

|
|
|
   |
 |
banderas81
Зарегистрирован: Пн 28 Ноябрь 2011, 22:38
Сообщения: 106
Регион: Великий Новгород
|
Добавлено:
Чт 12 Январь 2012, 00:32
|
  |
Что скажут специалисты о таком варианте отопления дома?
|
| Описание: |
| облицовка для keddy из талькохлорита |
|
| Размер файла: |
32.76 КБ |
| Просмотров: |
803 раз(а) |

|
|
|
  |
 |
Андрей_Алексеевич

Зарегистрирован: Пн 13 Декабрь 2010, 19:17
Сообщения: 5990
Регион: малая родина Павлова, Скобелева, Циолковского, Уткиных и др.
|
Добавлено:
Чт 12 Январь 2012, 10:18
|
  |
| banderas81 писал(а): |
| Что скажут специалисты о таком варианте отопления дома? |
ЗА!!!
В каждую комнату по такому девайсу!!!
"...Вот уж парень будет рад!" (про печника, что будет монтировать, а уж как будут радоваться купцы... )
|
_________________ Печник - милостью и промыслом Божиим.
Печное отопление частного дома и т.п., авторское сопровождение проектов, наставничество в т.ч. дистанционное, партнёрство в кладке печей.
89106130763 МТС
andrejka61@mail.ru
andrej.kuzmischev@yandex.ru
|
|
   |
 |
banderas81
Зарегистрирован: Пн 28 Ноябрь 2011, 22:38
Сообщения: 106
Регион: Великий Новгород
|
Добавлено:
Чт 12 Январь 2012, 23:03
|
  |
Мы подумывали о печи фирмы keddy с облицовкой maxette (печка из пемзы, в качестве аккумулятора камень ОЛИВИ), якобы время остывания 15 часов при условии нагрева с максимальной производительностью в течении 4 часов.
Стоимость сего устройства примерно 170 000 рублей без дымохода.
И все что думаете о таком варианте отопления в помощь будут стоять электроконвекторы в удаленных помещениях.
Эта облицовка из талькохлорита и весит 1100 кг. С такой облицовкой keddy будет стоить 170 000-190 000 рублей тоже без дымохода
не подскажите где то на этом форуме читал о волшебной печи-камине сложенной местным мастером, на которую ходит смотреть весь поселок и удивляется что она очень долго отдает тепло. Если кто помнит подскажите дорогу.
|
|
|
|
  |
 |
banderas81
Зарегистрирован: Пн 28 Ноябрь 2011, 22:38
Сообщения: 106
Регион: Великий Новгород
|
Добавлено:
Чт 12 Январь 2012, 23:10
|
  |
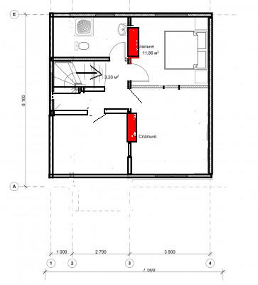
Вот на такой планировке мы решили остановится. Какие варианты печек можете посоветовать.
Нам нравятся печи-камины.
|
| Описание: |
|
| Размер файла: |
70.37 КБ |
| Просмотров: |
876 раз(а) |

|
|
|
  |
 |
Шура

Зарегистрирован: Чт 8 Январь 2009, 20:09
Сообщения: 4171
Регион: Москва - Тамбов
|
Добавлено:
Чт 12 Январь 2012, 23:19
|
  |
| banderas81 писал(а): |
| Мы подумывали о печи фирмы keddy с облицовкой maxette (печка из пемзы, в качестве аккумулятора камень ОЛИВИ), якобы время остывания 15 часов при условии нагрева с максимальной производительностью в течении 4 часов. |
1100кг, соответствует примерно печи в 280шт кирпичей, а теплоёмкая печь, с таким количеством кирпича, может отопить помещение до 16-20м2, пусть оливин+пемза считается более теплоёмким, то помещение можно будет отопить не более 22-24м2.
|
|
|
|
   |
 |
Шура

Зарегистрирован: Чт 8 Январь 2009, 20:09
Сообщения: 4171
Регион: Москва - Тамбов
|
Добавлено:
Чт 12 Январь 2012, 23:20
|
  |
| banderas81 писал(а): |
Вот на такой планировке мы решили остановится. Какие варианты печек можете посоветовать.
Нам нравятся печи-камины. |
А размеры то какие?
|
|
|
|
   |
 |
banderas81
Зарегистрирован: Пн 28 Ноябрь 2011, 22:38
Сообщения: 106
Регион: Великий Новгород
|
Добавлено:
Чт 12 Январь 2012, 23:55
|
  |
ДОМ рубленный 8*9 без веранды
|
| Описание: |
|
| Размер файла: |
73.97 КБ |
| Просмотров: |
820 раз(а) |

|
|
|
  |
 |
|
|