| Автор |
Сообщение
|
Владимир Солин

Зарегистрирован: Ср 9 Сентябрь 2009, 12:52
Сообщения: 3804
Регион: Череповец
|
Добавлено:
Пт 10 Декабрь 2010, 13:30
|
  |
Куда не зайдешь в тему - всем надо поменьше размером и чтобы все навороты. Никто не отвечает... Обидно ... Вот и пришлось это дело обмозговать. Несколько ЦУ на банном форуме и глядишь - уже можно вопросы по базальтовому картону задавать... Вот только найти шамот ША8 трудно говорят. Обычно возят ШБ5. Поэтому печки моделирую под этот размер.
Печка именно в небольшую деревенскую баню.
Минчанин: Маленький обьем камней,который прогревается хорошо из-за конструкции печи. Печь для аккуратного пользователя и определенного количества людей.
Вот совершенно правильные слова для большинства маленьких банных печек. И не надо из Оки выжимать 140 - она для другого, но все-таки кого-то перевозит.
Если приедут гости, то может и не хватит тепла... Но для 2-3 человек - мне кажется больше и не надо. Каменка в колпаке. Если нужна более долгоиграющая есть ваши БИК и Мотивированные.
- Там есть еще боковые (каналы) для прохождения огня под купол... - так написал Юрий Подгорнов о своем "Термосе". Он написал - я напилил...
Сложилась такая печка... Отверстия под регистр.
|
_________________ САМОназначенный дебил форума в 2017году
| Описание: |
|
| Размер файла: |
169.75 КБ |
| Просмотров: |
4509 раз(а) |

|
| Описание: |
|
 Скачать |
| Название файла: |
Банная 9-6 шб5. skp.zip |
| Размер файла: |
77.3 КБ |
| Скачено: |
1718 раз(а) |
Последний раз редактировалось: Владимир Солин (Пт 10 Декабрь 2010, 13:36), всего редактировалось 1 раз |
|
  |
 |
Владимир Солин

Зарегистрирован: Ср 9 Сентябрь 2009, 12:52
Сообщения: 3804
Регион: Череповец
|
Добавлено:
Пт 10 Декабрь 2010, 13:33
|
  |
Для примера попробовал воплотить в жизнь этот проект... Расположение печки - ужасное, остальные требования были учтены. Вот, что получилось...
Стенка где топочная дверка будет греться больше других.
1.Клеить шамот на мастику с армированием базальтовой сеткой.
2.Все спилы шамота грунтовать жидким стеклом с последующим покрытием мастикой.
3.Красный весь армировать полосой.
4.Уголок в перекрытии обернуть базальтовой ватой и сеткой.
5.Добавлен прямой ход.
Не стоит перетапливать печки. Это 2 закладки максимум - печки в полтора раза меньше и до готовности доходят раньше. Умеренность это тоже важно.
Петр С писал:
Чтобы выгорела сажа с камней, их нужно нагреть докрасна. Поэтому, я думаю, что время протопки потребуется сопоставимое, а это 3 - 4 часа. 2 - 3 закладки я сжигал для предварительного натопа. Через 5 -6 часов Т печи менялась с +5С до +40С.
А вот тут немного по-другому идет разогрев закладки - не постепенно снизу вверх, а еще и по бокам огонь прорывается вверх (нет полочки под закладкой, а по передней стенке вообще свободно до перекрыши. Облизывание открытым огнем крайних камней. Вот вам и скорость увеличили...
ЗЫ Да, для тех, кто не в курсе - создание каждого проекта в скетче занимает от пяти часов и больше (по сложности)
|
_________________ САМОназначенный дебил форума в 2017году
| Описание: |
|
| Размер файла: |
134.08 КБ |
| Просмотров: |
1732 раз(а) |

|
| Описание: |
|
 Скачать |
| Название файла: |
Банная 9-7 шб5. skp.zip |
| Размер файла: |
101.93 КБ |
| Скачено: |
1407 раз(а) |
|
|
  |
 |
Владимир Солин

Зарегистрирован: Ср 9 Сентябрь 2009, 12:52
Сообщения: 3804
Регион: Череповец
|
Добавлено:
Пт 10 Декабрь 2010, 14:44
|
  |
По этой же теме собрал банную печку Бацулина по порядовкам в журнале. Может кому-то она будет интересна.
И мои изменения к ней...
|
_________________ САМОназначенный дебил форума в 2017году
| Описание: |
|
| Размер файла: |
108.27 КБ |
| Просмотров: |
3105 раз(а) |

|
| Описание: |
|
 Скачать |
| Название файла: |
Банная Бацулина. skp.zip |
| Размер файла: |
71.62 КБ |
| Скачено: |
1574 раз(а) |
| Описание: |
|
 Скачать |
| Название файла: |
Банная Бацулина 2. skp.zip |
| Размер файла: |
87.4 КБ |
| Скачено: |
1483 раз(а) |
|
|
  |
 |
pe4ka
Зарегистрирован: Ср 23 Сентябрь 2009, 17:36
Сообщения: 1918
Регион: Туймазы
|
Добавлено:
Пт 10 Декабрь 2010, 19:02
|
  |
а растопочный ход чтобы камни не коптились можно поставить. т.е пустить дым на время растопки в боковой отопительный щиток. и камни будут чистые при подаче пара.2 задвижки надо ставить мое сообщение от17 сент. в банных печах есть
|
_________________ окажу консультации по кладке печей каминов и их ремонту д51055 код8-34782 сот 8-9173752622 г.Туймазы башкирия
|
|
   |
 |
Владимир Солин

Зарегистрирован: Ср 9 Сентябрь 2009, 12:52
Сообщения: 3804
Регион: Череповец
|
Добавлено:
Пт 10 Декабрь 2010, 20:17
|
  |
Вторая не нарисована просто задвижка. А растопочный ход - это усложнение ... решил не делать. Для деревни ведь печка. Выжгут при растопке сажу...
|
_________________ САМОназначенный дебил форума в 2017году
|
|
  |
 |
Андрей Ищенко
Проектировщик
Зарегистрирован: Вт 7 Февраль 2006, 10:08
Сообщения: 2946
Регион: Пенза
|
Добавлено:
Сб 11 Декабрь 2010, 01:02
|
  |
Владимир, вопрос про деревенскую баню: какая высота потолков, обычная для таких бань?
|
_________________ +7 962 974-10-94 Viber WhatsApp
+7 962 399-59-39
|
|
     |
 |
Владимир Солин

Зарегистрирован: Ср 9 Сентябрь 2009, 12:52
Сообщения: 3804
Регион: Череповец
|
Добавлено:
Сб 11 Декабрь 2010, 10:36
|
  |
Около 2х метров. У меня сейчас чуть больше будет 2,2м. Поэтому печка 1,6 до перекрыши.
|
_________________ САМОназначенный дебил форума в 2017году
|
|
  |
 |
Андрей Ищенко
Проектировщик
Зарегистрирован: Вт 7 Февраль 2006, 10:08
Сообщения: 2946
Регион: Пенза
|
Добавлено:
Сб 11 Декабрь 2010, 11:30
|
  |
Теперь по размерам парной, деревенской бани, какие они?
|
_________________ +7 962 974-10-94 Viber WhatsApp
+7 962 399-59-39
|
|
     |
 |
Владимир Солин

Зарегистрирован: Ср 9 Сентябрь 2009, 12:52
Сообщения: 3804
Регион: Череповец
|
Добавлено:
Сб 11 Декабрь 2010, 12:03
|
  |
У меня сейчас самая большая в деревне. У остальных меньше.
Внутри КО 3х2, моечное 3х1,8, парилка 3х1,2м.
|
_________________ САМОназначенный дебил форума в 2017году
| Описание: |
|
| Размер файла: |
109.27 КБ |
| Просмотров: |
1479 раз(а) |

|
|
|
  |
 |
Андрей Ищенко
Проектировщик
Зарегистрирован: Вт 7 Февраль 2006, 10:08
Сообщения: 2946
Регион: Пенза
|
Добавлено:
Сб 11 Декабрь 2010, 14:06
|
  |
Следующий вопрос, как рассчитывался объем каменной закладки?
|
_________________ +7 962 974-10-94 Viber WhatsApp
+7 962 399-59-39
|
|
     |
 |
Владимир Солин

Зарегистрирован: Ср 9 Сентябрь 2009, 12:52
Сообщения: 3804
Регион: Череповец
|
Добавлено:
Вс 12 Декабрь 2010, 14:20
|
  |
Как ее рассчитаешь? Кто-то шамотные кирпичи закладывает, кто-то чугун... Есть ограничения как по размеру печки, так и по размерам бани. Поэтому имеем то, что имеем. Из реальности.
|
_________________ САМОназначенный дебил форума в 2017году
|
|
  |
 |
Евгений Колчин

Зарегистрирован: Чт 3 Октябрь 2002, 06:26
Сообщения: 10151
Регион: Москва
|
Добавлено:
Вс 12 Декабрь 2010, 14:35
|
  |
|
      |
 |
Владимир Солин

Зарегистрирован: Ср 9 Сентябрь 2009, 12:52
Сообщения: 3804
Регион: Череповец
|
Добавлено:
Вс 12 Декабрь 2010, 15:16
|
  |
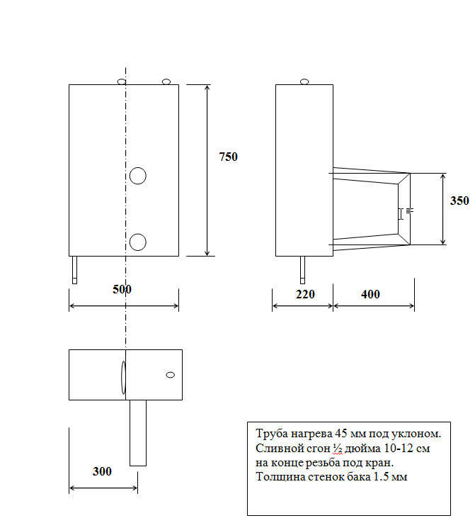
Наиболее просто бак ставится на верх печки вместо перекрыши, рядом с трубой. Правда для этого понадобится насос и контроль перелива... Зато простота установки может кому-то и понравится. Душ, как у Подгорнова... может и не совсем получится... Может быть кипяток оказаться в баке...
|
_________________ САМОназначенный дебил форума в 2017году
|
|
  |
 |
Евгений Колчин

Зарегистрирован: Чт 3 Октябрь 2002, 06:26
Сообщения: 10151
Регион: Москва
|
Добавлено:
Вс 12 Декабрь 2010, 16:07
|
  |
| Владимир Солин писал(а): |
| Наиболее просто бак ставится на верх печки вместо перекрыши, рядом с трубой. |
да, с учетом того, что это деревенская баня и как правило с потолками не более 200-210 см в лучшем случае, как то сомнительно
если только по вашему варианте №2 печи с урезанной каменкой и сколько вы там воды нагреете на баке 0.5х0.3х0.3, только на поддачу в каменку?
|
_________________ ************************************
|
|
      |
 |
Владимир Солин

Зарегистрирован: Ср 9 Сентябрь 2009, 12:52
Сообщения: 3804
Регион: Череповец
|
Добавлено:
Вс 12 Декабрь 2010, 16:20
|
  |
Если уберем 2 ряда перекрыши, то останется 635х450 по печке до трубы и вверх на 400-500мм (высота печки 1600 примерно). Так что не так и мало...
|
_________________ САМОназначенный дебил форума в 2017году
|
|
  |
 |
Андрей Ищенко
Проектировщик
Зарегистрирован: Вт 7 Февраль 2006, 10:08
Сообщения: 2946
Регион: Пенза
|
Добавлено:
Вс 12 Декабрь 2010, 19:27
|
  |
| Владимир Солин писал(а): |
Как ее рассчитаешь? Кто-то шамотные кирпичи закладывает, кто-то чугун... Есть ограничения как по размеру печки, так и по размерам бани. Поэтому имеем то, что имеем. Из реальности.  |
А вот это к Колчину, он меня заставил считать! Все есть у И.В. Кузнецова на стоверу
|
_________________ +7 962 974-10-94 Viber WhatsApp
+7 962 399-59-39
|
|
     |
 |
Владимир Солин

Зарегистрирован: Ср 9 Сентябрь 2009, 12:52
Сообщения: 3804
Регион: Череповец
|
Добавлено:
Вс 12 Декабрь 2010, 19:35
|
  |
|
  |
 |
Андрей Ищенко
Проектировщик
Зарегистрирован: Вт 7 Февраль 2006, 10:08
Сообщения: 2946
Регион: Пенза
|
Добавлено:
Вс 12 Декабрь 2010, 19:40
|
  |
Без платный сыр??? Кхм...
|
_________________ +7 962 974-10-94 Viber WhatsApp
+7 962 399-59-39
|
|
     |
 |
Владимир Солин

Зарегистрирован: Ср 9 Сентябрь 2009, 12:52
Сообщения: 3804
Регион: Череповец
|
Добавлено:
Вс 12 Декабрь 2010, 19:46
|
  |
Для меня ... и для еще очень многих в деревнях - это важно. Поверьте...
Но я не говорю, что построить эту печку легко. Просто теперь она есть.
И вопрос только времени...
|
_________________ САМОназначенный дебил форума в 2017году
|
|
  |
 |
Евгений Колчин

Зарегистрирован: Чт 3 Октябрь 2002, 06:26
Сообщения: 10151
Регион: Москва
|
Добавлено:
Вс 12 Декабрь 2010, 19:48
|
  |
Не в этой теме, Андрей Иванович.
Работоспособные печи, для семейной бани и "рукастого" хозяина.
|
_________________ ************************************
|
|
      |
 |
|
|