| Автор |
Сообщение
|
Владимр
Зарегистрирован: Сб 24 Октябрь 2015, 20:31
Сообщения: 288
Регион: Липецк
|
Добавлено:
Вс 6 Декабрь 2015, 17:34
|
  |
Добрый вечер. У меня появился интересный заказ. Заказчик хочет печь в баню. Но не простую. Что бы она была сама банная да плюс казанковая печь да еще и барбекю . И вся эта красота в 2000 мм. Есть соображения..........
|
|
|
|
  |
 |
Александр Кузнецов

Зарегистрирован: Ср 1 Апрель 2009, 17:33
Сообщения: 1591
Регион: Новосибирск
|
Добавлено:
Вс 6 Декабрь 2015, 17:50
|
  |
Это чтоб не выходя из парной шашлык жарить? Чтоб были соображения нужен план помещения и назначение агрегатов.
|
_________________ Новосибирск, камины, печи, грили.
т. 8-913-913-85-86
|
|
   |
 |
Владимр
Зарегистрирован: Сб 24 Октябрь 2015, 20:31
Сообщения: 288
Регион: Липецк
|
Добавлено:
Вс 6 Декабрь 2015, 18:00
|
  |
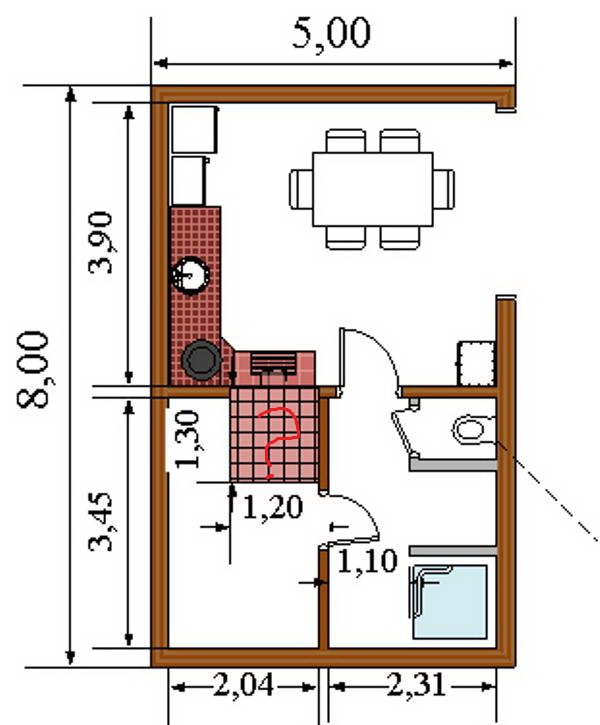
Вот план . И я думаю что где то за основу можно рассмотреть бик пк Кузнецова.
|
| Описание: |
|
| Размер файла: |
90.17 КБ |
| Просмотров: |
873 раз(а) |

|
| Описание: |
|
| Размер файла: |
79.69 КБ |
| Просмотров: |
656 раз(а) |

|
|
|
  |
 |
Андрей_Алексеевич

Зарегистрирован: Пн 13 Декабрь 2010, 19:17
Сообщения: 5969
Регион: малая родина Павлова, Скобелева, Циолковского, Уткиных и др.
|
Добавлено:
Вс 6 Декабрь 2015, 23:24
|
  |
Интересный План, но вот не вписывается пока ДТ каменки..., разве что под барбекю?
|
_________________ Печник - милостью и промыслом Божиим.
Печное отопление частного дома и т.п., авторское сопровождение проектов, наставничество в т.ч. дистанционное, партнёрство в кладке печей.
89106130763 МТС
andrejka61@mail.ru
andrej.kuzmischev@yandex.ru
|
|
   |
 |
Евгений Губский

Зарегистрирован: Вс 11 Январь 2015, 02:44
Сообщения: 66
Регион: Санкт-Петербург
|
Добавлено:
Вс 6 Декабрь 2015, 23:42
|
  |
Так в чем проблема сделать каменку с топкой напротив туалета и отдельно барбекю. Планировка действительно оригинальная.
|
|
|
|
  |
 |
Владимр
Зарегистрирован: Сб 24 Октябрь 2015, 20:31
Сообщения: 288
Регион: Липецк
|
Добавлено:
Вс 6 Декабрь 2015, 23:44
|
  |
Все нужно в одну трубу. Вот в чем проблемка.
|
|
|
|
  |
 |
Владимр
Зарегистрирован: Сб 24 Октябрь 2015, 20:31
Сообщения: 288
Регион: Липецк
|
Добавлено:
Пн 7 Декабрь 2015, 20:33
|
  |
А как насчет вот это го макета. Это банная печь с внутренней каменкой и казаницей 525х525 мм. Ширина барбекю 610 мм.Глубина 490 мм. Высота по желанию. Вот только как вывести дымоход с казаницы он же выходит в задней стенке??? Да и дымоход с барбекю???
|
| Описание: |
|
| Размер файла: |
196.04 КБ |
| Просмотров: |
634 раз(а) |

|
|
|
  |
 |
Безумный Печник

Зарегистрирован: Чт 2 Февраль 2012, 21:43
Сообщения: 3221
Регион: спб
|
Добавлено:
Пн 7 Декабрь 2015, 21:58
|
  |
Надо конструкции раздельно ставить через термо зазор порвет как пить дать каменка горячая мангал холодный . Да и с трубами не понятка выходит от каменки гильзовать надо а для мангала 250 на 250 мм минимум . А сводить где чердаке будите ? Дурная идея без обид был заказ на подобное только каменка в парилке а мангал сзади на улице под навесом отказалься на фиг не то не се темболие на одну трубу все кидать.
|
_________________ Русская Печная АртелЪ -Возрождение старинных ремесел. Печные работы под ключ от зонтика до зольника . 89213537822
|
|
    |
 |
Безумный Печник

Зарегистрирован: Чт 2 Февраль 2012, 21:43
Сообщения: 3221
Регион: спб
|
Добавлено:
Пн 7 Декабрь 2015, 22:08
|
  |
А вообще зачем так извращаться и придумывать велосипед . Почитаете эту тему особенно 10 страница http://forum.stovemaster.ru/viewtopic.php?t=5767 в самой каменке после вытопа печи можно готовить и хлеб пироги и мясо шашлык запекать как в тандыре . Лучше на воздухе мангал сделать небольшой в бане летом жарко будет.
|
_________________ Русская Печная АртелЪ -Возрождение старинных ремесел. Печные работы под ключ от зонтика до зольника . 89213537822
|
|
    |
 |
Владимр
Зарегистрирован: Сб 24 Октябрь 2015, 20:31
Сообщения: 288
Регион: Липецк
|
Добавлено:
Пн 7 Декабрь 2015, 22:09
|
  |
Вот и я думаю что ну его..... в 2000 мм войти не получается если через зазор. Короче монго заморочек.
|
|
|
|
  |
 |
Безумный Печник

Зарегистрирован: Чт 2 Февраль 2012, 21:43
Сообщения: 3221
Регион: спб
|
Добавлено:
Пн 7 Декабрь 2015, 22:27
|
  |
я своего банного монстра в бился в 2. 18 http://forum.stovemaster.ru/viewtopic.php?t=7422&start=240 у вас если поставить задачу можно вбить саму каменку минимум по фасаду 3.5 кирпича мангал 4 кирпича половинка 12 см проставка разделка . Но НА УЯ !!!!
|
_________________ Русская Печная АртелЪ -Возрождение старинных ремесел. Печные работы под ключ от зонтика до зольника . 89213537822
|
|
    |
 |
Безумный Печник

Зарегистрирован: Чт 2 Февраль 2012, 21:43
Сообщения: 3221
Регион: спб
|
Добавлено:
Пн 7 Декабрь 2015, 22:35
|
  |
Если очень хочется в каменку как вариант поставить большую дверку не очень правильно с точки зрения самой банной печи теплопотери и т.д . Но был такой случай из практики все уперлось в большой портал . Такая хотелка была барана жарить по моему ваш вариант.
|
_________________ Русская Печная АртелЪ -Возрождение старинных ремесел. Печные работы под ключ от зонтика до зольника . 89213537822
| Описание: |
|
| Размер файла: |
45.01 КБ |
| Просмотров: |
704 раз(а) |

|
| Описание: |
|
| Размер файла: |
134.9 КБ |
| Просмотров: |
679 раз(а) |

|
|
|
    |
 |
Владимр
Зарегистрирован: Сб 24 Октябрь 2015, 20:31
Сообщения: 288
Регион: Липецк
|
Добавлено:
Пн 7 Декабрь 2015, 22:37
|
  |
Набросок. И что за казан получится ??? Да никакой..........
|
| Описание: |
|
| Размер файла: |
130.76 КБ |
| Просмотров: |
654 раз(а) |

|
|
|
  |
 |
Безумный Печник

Зарегистрирован: Чт 2 Февраль 2012, 21:43
Сообщения: 3221
Регион: спб
|
Добавлено:
Пн 7 Декабрь 2015, 22:45
|
  |
Ну а что вы хотели от паровоза гибридность тащит за собой размеры !!! Получится плита 50 мм на 50 мм с кругом снимается в проем ящик нержа или толстая черняга ставится . Рабочая зона 50 см стандартный размер для готового мангала из магазина пятерочка.
|
_________________ Русская Печная АртелЪ -Возрождение старинных ремесел. Печные работы под ключ от зонтика до зольника . 89213537822
|
|
    |
 |
Безумный Печник

Зарегистрирован: Чт 2 Февраль 2012, 21:43
Сообщения: 3221
Регион: спб
|
Добавлено:
Пн 7 Декабрь 2015, 22:55
|
  |
Либо взять готовый два в одном и подключить отводом под 45 к банной печи верху . Правда вытяжку придется городить короче опять к отдельному мангалу на улице приходим .
|
_________________ Русская Печная АртелЪ -Возрождение старинных ремесел. Печные работы под ключ от зонтика до зольника . 89213537822
| Описание: |
|
| Размер файла: |
68.85 КБ |
| Просмотров: |
655 раз(а) |

|
|
|
    |
 |
Владимр
Зарегистрирован: Сб 24 Октябрь 2015, 20:31
Сообщения: 288
Регион: Липецк
|
Добавлено:
Пн 7 Декабрь 2015, 23:08
|
  |
Слишком много городушек делать. Ведь заказчик хотел моно все в одном.... Но с его размерами не получится казанковой печи и барбекю . Так что выдумывать строй казанковую печь на улице а внутри вот типа такую и печь и камин.
|
| Описание: |
|
| Размер файла: |
131.87 КБ |
| Просмотров: |
632 раз(а) |

|
|
|
  |
 |
Безумный Печник

Зарегистрирован: Чт 2 Февраль 2012, 21:43
Сообщения: 3221
Регион: спб
|
Добавлено:
Пн 7 Декабрь 2015, 23:22
|
  |
Другой разговор сам ответил на все вопросы -удачи в работе
|
_________________ Русская Печная АртелЪ -Возрождение старинных ремесел. Печные работы под ключ от зонтика до зольника . 89213537822
|
|
    |
 |
|
|