| Автор |
Сообщение
|
breva
Зарегистрирован: Ср 10 Август 2016, 06:57
Сообщения: 7
Регион: Беларусь
|
Добавлено:
Ср 10 Август 2016, 11:49
|
  |
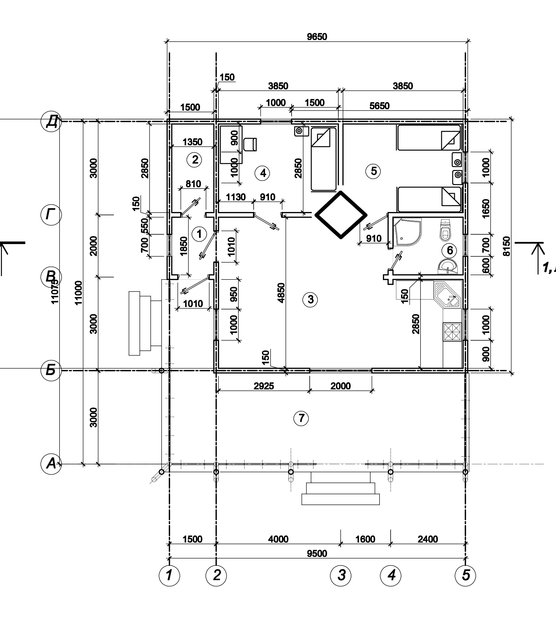
ДВС! Нужна помощь специалиста в выборе печи, сам не могу определиться. Пожелания к печи: отопительно-варочная, с духовкой. Стеклянная дверца топки. Прилагаю план дома, в середине квадрат под 45 град -выполнен фундамент размером 1,2*1,2 м., а так же расчёт тепло потерь. Зимы у нас (юг Беларуси) относительно мягкие, морозы в -20 редкость, поэтому расчёт выполнен на температуру -10 град.
С ув. Александр
|
| Описание: |
|
| Размер файла: |
424.81 КБ |
| Просмотров: |
644 раз(а) |

|
| Описание: |
|
| Размер файла: |
64.2 КБ |
| Просмотров: |
641 раз(а) |

|
|
|
  |
 |
internet_pechnik
Зарегистрирован: Вт 9 Апрель 2013, 19:51
Сообщения: 1892
Регион: belarus
|
Добавлено:
Ср 10 Август 2016, 14:36
|
  |
интересно как дом перекрывлся,капитальных стен нет,неужто плиты(балки) такие длинные?
просится симметричная квадратная с духовкой . Опять же у симметричной печи труба по центру и попадает в конек
|
|
|
|
  |
 |
breva
Зарегистрирован: Ср 10 Август 2016, 06:57
Сообщения: 7
Регион: Беларусь
|
Добавлено:
Ср 10 Август 2016, 14:59
|
  |
| internet_pechnik писал(а): |
интересно как дом перекрывлся,капитальных стен нет,неужто плиты(балки) такие длинные?
просится симметричная квадратная с духовкой . Опять же у симметричной печи труба по центру и попадает в конек |
Представлен план на отметке ниже балок перекрытия, проход для дымохода получился примерно 35*80 см, не мало ли, для кирпичного? Или нужно будет применять трубу-сандвич?
|
|
|
|
  |
 |
internet_pechnik
Зарегистрирован: Вт 9 Апрель 2013, 19:51
Сообщения: 1892
Регион: belarus
|
Добавлено:
Ср 10 Август 2016, 19:00
|
  |
|
  |
 |
Шура

Зарегистрирован: Чт 8 Январь 2009, 20:09
Сообщения: 4171
Регион: Москва - Тамбов
|
Добавлено:
Ср 10 Август 2016, 22:18
|
  |
| breva писал(а): |
| ДВС! Нужна помощь специалиста в выборе печи, сам не могу определиться. |
А построить сами сможете?
|
|
|
|
   |
 |
breva
Зарегистрирован: Ср 10 Август 2016, 06:57
Сообщения: 7
Регион: Беларусь
|
Добавлено:
Чт 11 Август 2016, 18:36
|
  |
| Шура писал(а): |
| А построить сами сможете? |
Думаю, по чертежам положил бы, но всё же буду приглашать печника. С моделью и мощностью бы определиться пока.
|
|
|
|
  |
 |
Вогнистый Владимир

Зарегистрирован: Сб 7 Апрель 2012, 16:13
Сообщения: 811
Регион: Мариуполь, Украина
|
Добавлено:
Чт 11 Август 2016, 19:38
|
  |
А может быть -Крест. Все уже работает
|
_________________ Печь - это душа дома!!!
| Описание: |
|
| Размер файла: |
122.36 КБ |
| Просмотров: |
623 раз(а) |

|
| Описание: |
|
| Размер файла: |
113.05 КБ |
| Просмотров: |
358 раз(а) |

|
|
|
    |
 |
breva
Зарегистрирован: Ср 10 Август 2016, 06:57
Сообщения: 7
Регион: Беларусь
|
Добавлено:
Чт 11 Август 2016, 19:52
|
  |
| Вогнистый Владимир писал(а): |
| А может быть -Крест. Все уже работает |
Спасибо, Владимир, интересный проект, боюсь по габаритам не вложусь
|
|
|
|
  |
 |
Вогнистый Владимир

Зарегистрирован: Сб 7 Апрель 2012, 16:13
Сообщения: 811
Регион: Мариуполь, Украина
|
Добавлено:
Чт 11 Август 2016, 20:19
|
  |
Вложитесь. все -индивидуально.
|
_________________ Печь - это душа дома!!!
| Описание: |
|
| Размер файла: |
137.78 КБ |
| Просмотров: |
619 раз(а) |

|
|
|
    |
 |
breva
Зарегистрирован: Ср 10 Август 2016, 06:57
Сообщения: 7
Регион: Беларусь
|
Добавлено:
Вс 13 Ноябрь 2016, 23:19
|
  |
Печь готова, ввиду отсутствия дельных советов, пришлось вооружиться фантазией и опытом печника. Вот что получилось:
|
| Описание: |
|
| Размер файла: |
115.94 КБ |
| Просмотров: |
603 раз(а) |

|
| Описание: |
|
| Размер файла: |
121.21 КБ |
| Просмотров: |
619 раз(а) |

|
| Описание: |
|
| Размер файла: |
111.32 КБ |
| Просмотров: |
627 раз(а) |

|
| Описание: |
|
| Размер файла: |
109.11 КБ |
| Просмотров: |
609 раз(а) |

|
| Описание: |
|
| Размер файла: |
118 КБ |
| Просмотров: |
600 раз(а) |

|
|
|
  |
 |
breva
Зарегистрирован: Ср 10 Август 2016, 06:57
Сообщения: 7
Регион: Беларусь
|
Добавлено:
Вс 13 Ноябрь 2016, 23:21
|
  |
проолжение
|
| Описание: |
|
| Размер файла: |
111.58 КБ |
| Просмотров: |
362 раз(а) |

|
| Описание: |
|
| Размер файла: |
111.2 КБ |
| Просмотров: |
599 раз(а) |

|
| Описание: |
|
| Размер файла: |
114.05 КБ |
| Просмотров: |
622 раз(а) |

|
| Описание: |
|
| Размер файла: |
118.04 КБ |
| Просмотров: |
624 раз(а) |

|
|
|
  |
 |
Андрей_Алексеевич

Зарегистрирован: Пн 13 Декабрь 2010, 19:17
Сообщения: 5990
Регион: малая родина Павлова, Скобелева, Циолковского, Уткиных и др.
|
Добавлено:
Вс 13 Ноябрь 2016, 23:30
|
  |
| breva писал(а): |
| проолжение |
Досадно, что не прислушались..., да и не вчитались...
Поднять нижний ДК на 6-й ряд ... в 21 веке, к.м.к., недопустимо уже даже для двоечников строительного техникума
А греть 90 квадратов следовало бы ПОТВшкой с периметром не менее 7-ми метров
|
_________________ Печник - милостью и промыслом Божиим.
Печное отопление частного дома и т.п., авторское сопровождение проектов, наставничество в т.ч. дистанционное, партнёрство в кладке печей.
89106130763 МТС
andrejka61@mail.ru
andrej.kuzmischev@yandex.ru
|
|
   |
 |
breva
Зарегистрирован: Ср 10 Август 2016, 06:57
Сообщения: 7
Регион: Беларусь
|
Добавлено:
Вс 13 Ноябрь 2016, 23:58
|
  |
| Андрей_Алексеевич писал(а): |
Досадно, что не прислушались...,
|
Да прислушался я... к молчанию
|
|
|
|
  |
 |
internet_pechnik
Зарегистрирован: Вт 9 Апрель 2013, 19:51
Сообщения: 1892
Регион: belarus
|
Добавлено:
Пн 14 Ноябрь 2016, 07:11
|
  |
лучше б шамотного кирпича купил вместо дверки с стеклом. Правый бок топки будет вечно перегреваться а сам кирпичек со временем потихоньку крошиться. Лажа. Надо было не ждать чтото ктото даст на блюдечке порядовки,а обратиться к конкретному печнику.
|
|
|
|
  |
 |
Безумный Печник

Зарегистрирован: Чт 2 Февраль 2012, 21:43
Сообщения: 3221
Регион: спб
|
Добавлено:
Пн 14 Ноябрь 2016, 09:19
|
  |
На крайне случай темже витебский футернул бы топку на ребро и можно было поменять через настил. Варочные печи типа Овика разобраны на этом форуме до мелочей про надо найти тему и почитать побольше. И что за ниша такая маленькая над плитой не удобно е процесс готовки контролировать по высоте кастрюлю не поставишь.? Странно конечно самое холодное место у печи почти 6 рядов кладки тупо забутили ноги мерзнуть будут.Конечно после драки кулаками не машут но все же это бросается в глаза.
|
_________________ Русская Печная АртелЪ -Возрождение старинных ремесел. Печные работы под ключ от зонтика до зольника . 89213537822
|
|
    |
 |
internet_pechnik
Зарегистрирован: Вт 9 Апрель 2013, 19:51
Сообщения: 1892
Регион: belarus
|
Добавлено:
Пн 14 Ноябрь 2016, 09:41
|
  |
ктото гдето ляпнул что нельзя опускать ДГ ниже колосника. я уже сталкивался с такими "умельцами".
|
|
|
|
  |
 |
|
|