 |
|
 |
| Автор |
Сообщение
|
dmitrovchyanin
Зарегистрирован: Пт 28 Ноябрь 2014, 18:47
Сообщения: 4
Регион: Дмитров
|
Добавлено:
Ср 2 Март 2016, 11:09
|
  |
Добрый день!
Сейчас ищу лучший план- дизайн будущего дома, и пытаюсь обдумать свои хотелки.
Одна из них печь.
Можете дать совет?
Данную идею подсмотрел вот на фотографии которая в низу и очень понравилось
Размеры все приблизительные. Варочная плита на газу.
Печь нужна в основном для приготовления пищи и ......
Отопление дома планируется газовое.
Вопросов пока особо нет, так как в этой теме не разбираюсь, но желание иметь именно печь а не камин.
1. Какой фундамент нужен для такой печи
2. Можно так расположить печь в доме +-1 метр, так как труба пойдёт через второй жилой этаж.
3. Как вообще сама идея такой печи, не утопия?
4. Какова приблизительная стоимость данной печи?
5. Может кто готов нарисовать порядовку и проконтролировать процесс строительства?
С уважением Константин
|
| Описание: |
|
| Размер файла: |
448.97 КБ |
| Просмотров: |
620 раз(а) |

|
| Описание: |
|
| Размер файла: |
267.09 КБ |
| Просмотров: |
640 раз(а) |

|
| Описание: |
|
| Размер файла: |
261.71 КБ |
| Просмотров: |
559 раз(а) |

|
| Описание: |
|
| Размер файла: |
84.52 КБ |
| Просмотров: |
588 раз(а) |

|
|
|
  |
 |
Андрей_Алексеевич

Зарегистрирован: Пн 13 Декабрь 2010, 19:17
Сообщения: 5983
Регион: малая родина Павлова, Скобелева, Циолковского, Уткиных и др.
|
Добавлено:
Ср 2 Март 2016, 11:38
|
  |
| dmitrovchyanin писал(а): |
Добрый день!
Сейчас ищу лучший план- дизайн будущего дома, и пытаюсь обдумать свои хотелки.
Одна из них печь.
Можете дать совет?
Данную идею подсмотрел вот на фотографии которая в низу и очень понравилось
Размеры все приблизительные. Варочная плита на газу.
Печь нужна в основном для приготовления пищи и ......
Отопление дома планируется газовое.
Вопросов пока особо нет, так как в этой теме не разбираюсь, но желание иметь именно печь а не камин.
1. Какой фундамент нужен для такой печи
2. Можно так расположить печь в доме +-1 метр, так как труба пойдёт через второй жилой этаж.
3. Как вообще сама идея такой печи, не утопия?
4. Какова приблизительная стоимость данной печи?
5. Может кто готов нарисовать порядовку и проконтролировать процесс строительства?
С уважением Константин |
Об оптимальной ПЛАНировке - здесь http://forum.stovemaster.ru/viewtopic.php?t=7341
Печь выбранная не плохая, но и не самая оптимальна.
ВП в печи сделал бы "энергонезависимой" - на дровах
1. капитальный, отдельно от ф-та дома, если он не плитой;
2. можно даже решить отопление 2-го топкой с первого;
3. не утопия;
4. все ответы будут в ПРОЕКТе. В зависимости от объёма дома, от 2,5 тыс. кирпичей. Стоимость работы печника от 10руб./1-дин к-ч... и до "поднебесной";
5. "чертёжники", свободные, отзовутся Но выбирать будете Вы самостоятельно
|
_________________ Печник - милостью и промыслом Божиим.
Печное отопление частного дома и т.п., авторское сопровождение проектов, наставничество в т.ч. дистанционное, партнёрство в кладке печей.
89106130763 МТС
andrejka61@mail.ru
andrej.kuzmischev@yandex.ru
|
|
   |
 |
dmitrovchyanin
Зарегистрирован: Пт 28 Ноябрь 2014, 18:47
Сообщения: 4
Регион: Дмитров
|
Добавлено:
Ср 2 Март 2016, 14:31
|
  |
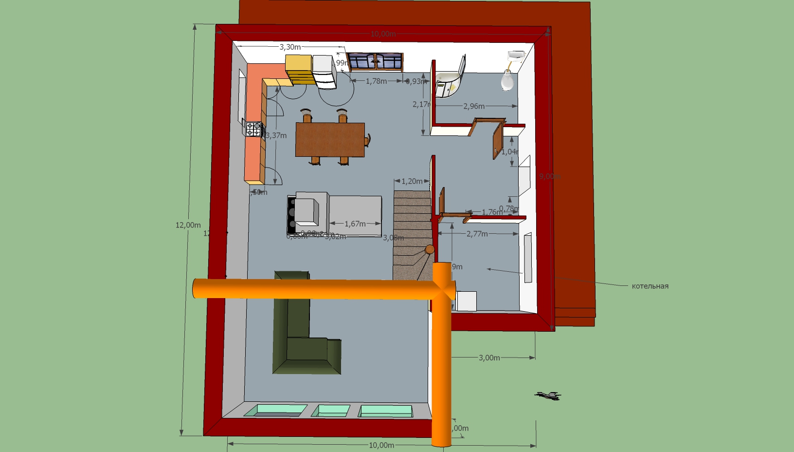
Такой вариант не лучше? В этой печи горнило под лежанкой.
Первый вариант мне нравиться больше расположением варочной поверхностью и только.
Второй как то более симпатичен внешне.
Площадь дома 200кв. метров +-
|
| Описание: |
|
| Размер файла: |
61.61 КБ |
| Просмотров: |
806 раз(а) |

|
| Описание: |
|
| Размер файла: |
155.19 КБ |
| Просмотров: |
596 раз(а) |

|
|
|
  |
 |
Андрей_Алексеевич

Зарегистрирован: Пн 13 Декабрь 2010, 19:17
Сообщения: 5983
Регион: малая родина Павлова, Скобелева, Циолковского, Уткиных и др.
|
Добавлено:
Ср 2 Март 2016, 15:09
|
  |
Дизайн м.б. любым, по бюджету
Из картинок не видно - имеется ли 2-рой свет?
Если отапливаемая площадь 200, то это 100+100..., ибо хозпомещения не "выходят" к печке.
Газу доверяете..., ну-ну... "... велика вера Ваша" (С)
|
_________________ Печник - милостью и промыслом Божиим.
Печное отопление частного дома и т.п., авторское сопровождение проектов, наставничество в т.ч. дистанционное, партнёрство в кладке печей.
89106130763 МТС
andrejka61@mail.ru
andrej.kuzmischev@yandex.ru
| Описание: |
| вот такая для 120 квадратов на первом этаже, + щиток в санкомнату и спальню |
|
 Скачать |
| Название файла: |
РП на 120 квадратов с балконом.PDF |
| Размер файла: |
232 КБ |
| Скачено: |
206 раз(а) |
|
|
   |
 |
Анжей
Зарегистрирован: Ср 27 Январь 2016, 17:12
Сообщения: 142
Регион: Минск
|
Добавлено:
Ср 2 Март 2016, 16:42
|
  |
| Андрей_Алексеевич писал(а): |
| РП на 120 квадратов с балконом.PDF.... |
У такой в подпечье жить можно....
|
|
|
|
  |
 |
dmitrovchyanin
Зарегистрирован: Пт 28 Ноябрь 2014, 18:47
Сообщения: 4
Регион: Дмитров
|
Добавлено:
Ср 2 Март 2016, 19:52
|
  |
Не открывается файл.
Что такое две света?
|
|
|
|
  |
 |
Деревенский Печеклад

Зарегистрирован: Вс 31 Май 2015, 21:32
Сообщения: 83
Регион: Вятский
|
Добавлено:
Ср 2 Март 2016, 21:23
|
  |
второй свет - это окна в крыше, отсутствие потолка, подшив по крыше и в ней окна.
|
_________________ Друг мой, — ответил Микеланджело, — совершенство — не мелочь, но складывается из мелочей.
8(963)5537005
|
|
  |
 |
|
|
|
Следующая тема
Предыдущая тема
Вы не можете начинать темы Вы не можете отвечать на сообщения Вы не можете редактировать свои сообщения Вы не можете удалять свои сообщения Вы не можете голосовать в опросах Вы не можете добавлять приложения в этом форуме Вы можете скачивать файлы в этом форуме
|
|