 |
|
 |
| Автор |
Сообщение
|
Чуриков Александр

Зарегистрирован: Чт 18 Май 2006, 07:25
Сообщения: 2293
Регион: Санкт-Петербург
|
Добавлено:
Ср 17 Июнь 2009, 18:42
|
  |
Отделена от http://forum.stovemaster.ru/viewtopic.php?t=2923
Тарас а не маловато камней будет в каменке? Я за каждый килограмм борюсь.На какую парную расчитана печь? Размеры парной?
|
_________________ +7-921-742-16-92 Услуги печника. Кладка печей, мангалов, банных печей, чертежи
***********************************************************************
|
|
     |
 |
Евгений Колчин

Зарегистрирован: Чт 3 Октябрь 2002, 06:26
Сообщения: 10146
Регион: Москва
|
Добавлено:
Ср 17 Июнь 2009, 21:44
|
  |
Александр, а сколько по вашему надо камней в "парогенератор" (каменку) для парной 2.5х3.0х2.5 и сколько отдающей поверхности печи на ИК излучение надо "запустить" в парную и с какой температурой для получения кондиций паровой бани в течение 12 часов пользования?
Делая вывод из вашего сообщения - чем больше тем лучше. А сколько все же лучше и сколько все же надо?
Отсюда наводящий вопрос - для чего нам нагретые камни, тем более в закрытой каменке?
|
_________________ ************************************
|
|
      |
 |
Чуриков Александр

Зарегистрирован: Чт 18 Май 2006, 07:25
Сообщения: 2293
Регион: Санкт-Петербург
|
Добавлено:
Ср 17 Июнь 2009, 23:35
|
  |
В различных источниках мнения расходятся. Возможно Тарасу хватит того количества камней, что будут уложены в оставшуюся часть печи. Только жаль места. Каменка строится для бани, в частности для парной. И по всему расчитывалась именно для этих целей. Вот и возникает вопрос насколько это количество уменьшиться.
A если интересно сколько камней по весу достаточно для парной 2,5*3*2,5 то тут вопрос непростой. Многое зависит и от конструкции печи, её размера материалов. Мне кажется, что в 90 проц. случаев или более печники не расчитывают вес закладки камней, а подбирают вес с учётом проб и ошибок при строительстве предыдущих печей.
Если говорить о семейных банях, то вряд ли хозяева пользуются баней 12 часов. Я делал в 1999 году парилку с печью постоянного действия в которой парились 6 часов. Остальные используют парную меньшее время. Думаю,что 200 кг это не плохо. А как Вы думаете, Евгений Викторович?
|
_________________ +7-921-742-16-92 Услуги печника. Кладка печей, мангалов, банных печей, чертежи
***********************************************************************
|
|
     |
 |
Тарас

Зарегистрирован: Чт 7 Май 2009, 13:59
Сообщения: 46
Регион: г. Кубинка МО
|
Добавлено:
Чт 18 Июнь 2009, 11:20
|
  |
Александр, ты прав. Я специально не расчитывал вес камней, а исходил из материала для духовки.
У меня есть обрезок трубы диаметром 320 мм и дриной 500мм с толщиной стенок 8мм, так я решил сделать из неё духовку, а сколько киллограммов камней туда войдёт, это смотря какие камни...
Я думаю, что не менее 150кг. Но и жару от металла больше некуда деваться как обогревать парную... Или я не прав?
Размеры парной: 2.2Х2.5Х2.7 метров, но её ещё не обшивали...
После утепления и обшивки она сократится минимум на 10см с каждой стены и потолка... Получится метров 13 кубических.
|
_________________ "Даритье" людям тепло!
|
|
   |
 |
Миша
Зарегистрирован: Ср 25 Март 2009, 17:43
Сообщения: 45
Регион: Лен.обл.лужский р-он
|
Добавлено:
Вт 23 Июнь 2009, 19:29
|
  |
вот нашел описание-"...Камни в каменке размещают в дымоходе на решетке из стальных прутьев диаметром 4—6 см или из кирпичей, уложенных с промежутком для прохождения дымовых газов. При непрерывном сжигании дров в количестве 2,5 кг на 1 м2 площади бани температура каменки достигает 500—600°, что достаточно для нагрева парной. Масса камней для каменки в русской бане зависит от объема парной и составляет 35— 45 кг камней на 1 м3 помещения.
Для каменки лучше всего подходят булыжники темного или серого цвета размером немного больше, чем кулак. Темные камни, собранные у воды, служат дольше, так как они прошли естественный процесс упрочения. Подбирают камни округлой формы, чтобы между ними свободно проходили пламя и дым и обеспечивался равномерный нагрев. Камни с трещинами применять не следует, так как они легко растрескиваются. Обнаружить дефектные камни можно по глухому звуку, который они издают при постукивании по ним молотком."
|
|
|
|
  |
 |
Чуриков Александр

Зарегистрирован: Чт 18 Май 2006, 07:25
Сообщения: 2293
Регион: Санкт-Петербург
|
Добавлено:
Вт 23 Июнь 2009, 19:36
|
  |
Извините Тарас, я думал, что у Вас каменка с прямым нагревом камней.
|
_________________ +7-921-742-16-92 Услуги печника. Кладка печей, мангалов, банных печей, чертежи
***********************************************************************
|
|
     |
 |
Тарас

Зарегистрирован: Чт 7 Май 2009, 13:59
Сообщения: 46
Регион: г. Кубинка МО
|
Добавлено:
Вт 23 Июнь 2009, 20:14
|
  |
Александр, я догадываюсь, что вы поклонник парной с прямым нагревом камней, но может подскажите нагреет ли моя духовка парную 13-и кв. метров до 70 градусов? Или придёться топить печь коксом? :0)
|
_________________ "Даритье" людям тепло!
|
|
   |
 |
Евгений Колчин

Зарегистрирован: Чт 3 Октябрь 2002, 06:26
Сообщения: 10146
Регион: Москва
|
Добавлено:
Вт 23 Июнь 2009, 20:48
|
  |
Тарас, не волнуйся - все нагреет.
|
|
|
|
      |
 |
Тарас

Зарегистрирован: Чт 7 Май 2009, 13:59
Сообщения: 46
Регион: г. Кубинка МО
|
Добавлено:
Вт 23 Июнь 2009, 23:32
|
  |
Спасибо Евгений! Обнадёжили, в прямом смысле слова.
А то я только вчера сварил духовку и закрались сомнения... Думал, может погорячился я с духовкой из трубы...
|
_________________ "Даритье" людям тепло!
|
|
   |
 |
Евгений Колчин

Зарегистрирован: Чт 3 Октябрь 2002, 06:26
Сообщения: 10146
Регион: Москва
|
Добавлено:
Ср 24 Июнь 2009, 20:58
|
  |
Тарас, по моим подсчетам у вас войдет порядка 100 кг, а по рекомендации Миши вам надо не менее 500 кг
Куда столько, объясните мне.
При экономном расходование энергии парогенератора (каменки) и по назначению, т.е. для повышения энергосодержания влажного воздуха парной (поднятие температуры), то вам и 100 кг. хватит на два дня.
|
_________________ ************************************
|
|
      |
 |
Тарас

Зарегистрирован: Чт 7 Май 2009, 13:59
Сообщения: 46
Регион: г. Кубинка МО
|
Добавлено:
Чт 25 Июнь 2009, 16:11
|
  |
Евгений, мне 2-х дней хватит с головой... С этой дачей я уже забыл когда в бане парился... Скорее бы доделать да испытать, а то забуду какой стороной веника хлестаться
|
_________________ "Даритье" людям тепло!
|
|
   |
 |
Миша
Зарегистрирован: Ср 25 Март 2009, 17:43
Сообщения: 45
Регион: Лен.обл.лужский р-он
|
Добавлено:
Пт 26 Июнь 2009, 00:57
|
  |
не рекомендовал)))просто скопировал отрывок с какого то сайта о банях.:-)
|
|
|
|
  |
 |
Jackonya

Зарегистрирован: Пт 29 Май 2009, 18:37
Сообщения: 64
Регион: Санкт-Петербург
|
Добавлено:
Сб 27 Июнь 2009, 02:34
|
  |
Уважаемые, может и мне подскажете?!
Придумываю конструкцию металлической каменки.
Максимальный объем парной, где она будет использоваться -2,5х3 минимальный - 2х2.
Каменка будет закрытая, непрерывного действия. Топка из предбанника
Нагрев камней через металл (духовка).
Вопросы:
- какое минимальное количество камней необходимо для комфортного пара и какой лучше объем духовки и толщина слоя камней?
- нужно ли устраивать конвектор печи со стороны парной или будет достаточно нагрева парной от духовки?
|
Последний раз редактировалось: Jackonya (Сб 27 Июнь 2009, 15:01), всего редактировалось 1 раз |
|
   |
 |
rezba-sgon

Зарегистрирован: Ср 16 Декабрь 2009, 03:51
Сообщения: 19
Регион: Новокузнецк
|
Добавлено:
Чт 17 Декабрь 2009, 09:08
|
  |
Собираюсь строить баню фундамент готов 6*7,5 парная 3*3,5 высота3-3,5
Объём примерно30-32 кубометра печь периодическая засыпка чугун и камни в равных долях
какой объём засыпки каменной нет точных данных находил данные 30-40 кг.(15-20 литров ) получается 450-600 литров. Сколько хватит на самом деле.
|
|
|
|
  |
 |
rezba-sgon

Зарегистрирован: Ср 16 Декабрь 2009, 03:51
Сообщения: 19
Регион: Новокузнецк
|
Добавлено:
Чт 17 Декабрь 2009, 11:31
|
  |
я посчитал у Павла Круглова в пеpеделке печи 350 литов .Сколько вешать(делать)в гаpммах(литpах)?????
|
|
|
|
  |
 |
obgolts
Зарегистрирован: Сб 30 Январь 2010, 16:58
Сообщения: 2
Регион: Карелия
|
Добавлено:
Вт 2 Февраль 2010, 06:52
|
  |
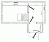
Здравствуйте!
Строю русскую баню.
1. Помывочная и парная объединена в одно помещение размер 3,38х2,6 м., высота потолков 2,25 м. Общий объем помещения 18 м3
2. Печь выбрана "двухъярусная колпаковая печь Кузнецова БИК 1" с закрытой каменкой сбоку.
3. Количество камней V=0,5х0,64х0,25=0,084 м3, масса камней m=0,084х2800кг/м3=235 кг.
Вопрос
1. При существующей планировке бани, куда правильно сделать выход каменки сбоку или сзади относительно топки (см. рисунок)?
2. Правильно ли выбрана печь для бани таких размеров, если есть варианты хотелось бы рассмотреть их (печь хочу кирпичную)?
3. Достаточно ли размера каменки и соответственно камней для парной-моечной такого объема, учитывая что печь колпаковая (т.е все её прочие преимущества)? (пример расчета http://www.minidom.ru/pechki.html, т.е. для моей бани нужно m=18 м3х35 кг. камней=630 кг. вместо 235 кг, при толщине 25 см. площадь каментки должна быть 0,9 м2, что-то больно много).
Господа специалисты и просто любители, дайте толковый совет, или давайте порассуждаем на эту тему, возможно я что-то не учитываю в своих рассуждениях!
|
| Описание: |
|
| Размер файла: |
7.39 КБ |
| Просмотров: |
53792 раз(а) |

|
|
|
  |
 |
Александр Шалагин

Зарегистрирован: Пт 2 Январь 2009, 18:00
Сообщения: 1342
Регион: Киров
|
Добавлено:
Вт 2 Февраль 2010, 07:27
|
  |
| obgolts писал(а): |
Вопрос
1. При существующей планировке бани, куда правильно сделать выход каменки сбоку или сзади относительно топки (см. рисунок)?
2. Правильно ли выбрана печь для бани таких размеров, если есть варианты хотелось бы рассмотреть их (печь хочу кирпичную)?
3. Достаточно ли размера каменки и соответственно камней для парной-моечной такого объема, учитывая что печь колпаковая (т.е все её прочие преимущества)? (пример расчета http://www.minidom.ru/pechki.html, т.е. для моей бани нужно m=18 м3х35 кг. камней=630 кг. вместо 235 кг, при толщине 25 см. |
1. Выход каменки сделать лучше сбоку, удобнее будет здавать и камни менять.
2. наверное правильно, только высоту парной в идеале сделать 2.10
3. Для семьи хватит - не залить.
|
|
|
|
    |
 |
Андрей Нижний
Зарегистрирован: Пт 8 Январь 2010, 21:03
Сообщения: 2
Регион: Нижний Новгород
|
Добавлено:
Вт 2 Февраль 2010, 09:41
|
  |
А может сзади?Полок сделать г-образным с отдельным местом для прогрева от ИК излучения. Чтобы удобно было менять загрузку каменки можно сделать и сзади и сбоку ,две дверки не хуже.
|
|
|
|
  |
 |
Сергей Рыбак

Зарегистрирован: Ср 19 Февраль 2020, 20:05
Сообщения: 23
Регион: Владимирская обл.
|
Добавлено:
Вт 31 Март 2020, 13:13
|
  |
Правильно ли я понимаю? Исходя из формулы представленной в цитате
| obgolts писал(а): |
Количество камней V=0,5х0,64х0,25=0,084 м3, масса камней m=0,084х2800кг/м3=235 кг.
|
что в духовку 900х490х250 поместится 309 кг.
0,9х0,49х0,25=0,11025 м3. m=0,11025х2800кг/м3=308,7кг.
Так?
|
|
|
|
   |
 |
|
|
|
Следующая тема
Предыдущая тема
Вы не можете начинать темы Вы не можете отвечать на сообщения Вы не можете редактировать свои сообщения Вы не можете удалять свои сообщения Вы не можете голосовать в опросах Вы не можете добавлять приложения в этом форуме Вы можете скачивать файлы в этом форуме
|
|