Некоммерческое партнерство Альянс Печных Дел Мастера
 RSS  • FAQ  •  Поиск  •  Пользователи  •  Группы   •  Регистрация   •  Избранные темы   •  Профиль  •  Войти и проверить личные сообщения  •  Чат  •  Вход





 Ищу печь со стеклянной дверцей топки. Возможно? Следующая тема
Предыдущая тема
Начать новую темуОтветить на тему
Автор Сообщение
Алёна Латвия



Зарегистрирован: Сб 25 Октябрь 2008, 21:44
Сообщения: 28

СообщениеДобавлено: Чт 13 Ноябрь 2008, 21:07 Ответить с цитатойВернуться к началу

Павел, я Вам тоже сейчас кое каких радостных картинок по ссылочкам накидаю, надеюсь помогут в освоении примудростей...
http://mha-net.org/docs/temp/080811igor.htm
http://heatkit.com/html/lopezs.htm
http://mha-net.org/docs/v8n2/wildac06d.htm
http://mha-net.org/docs/v8n2/wildac08f.htm
http://picasaweb.google.se/nan.eilertsen/Spisen#
http://mha-net.org/html/bookstore-portfolio.htm
Посмотреть профильОтправить личное сообщение
Паша



Зарегистрирован: Ср 28 Ноябрь 2007, 23:35
Сообщения: 369

СообщениеДобавлено: Чт 13 Ноябрь 2008, 22:11 Ответить с цитатойВернуться к началу

Сейчас в MHA News есть вид с боку печи с хлебной камерой, но ссылки на подробности нету или не нашол куда кликнуть.



5run01.gif
 Описание:
 Размер файла:  21.25 КБ
 Просмотров:  1343 раз(а)

5run01.gif


Посмотреть профильОтправить личное сообщение
Васильев Илья



Зарегистрирован: Сб 29 Декабрь 2007, 22:10
Сообщения: 256
Регион: *Печное Ателье* Архангельск +79115555911

СообщениеДобавлено: Пт 14 Ноябрь 2008, 00:51 Ответить с цитатойВернуться к началу

Это Печь с "чистой" духовкой. А вся фишка в летнем режиме, когда дрова сжигают в духовке и не нагревая массива Печи пекут пироги, и тут важно чтобы дверка духовки не дымила (поддымливала)

_________________
Ubi Victoria, ibi Concordia.
Посмотреть профильОтправить личное сообщениеОтправить e-mailПосетить сайт автораПозвонить автору
Паша



Зарегистрирован: Ср 28 Ноябрь 2007, 23:35
Сообщения: 369

СообщениеДобавлено: Пт 14 Ноябрь 2008, 00:58 Ответить с цитатойВернуться к началу

Васильев Илья писал(а):
в летнем режиме, когда дрова сжигают в духовке и не нагревая массива Печи пекут пироги, и тут важно чтобы дверка духовки не дымила (поддымливала)


А если на потолке духовки сделать задвижку, то в ней можно будет жечь дрова ? Или тогда нужен совсем другой конструктив ?
Посмотреть профильОтправить личное сообщение
Васильев Илья



Зарегистрирован: Сб 29 Декабрь 2007, 22:10
Сообщения: 256
Регион: *Печное Ателье* Архангельск +79115555911

СообщениеДобавлено: Пт 14 Ноябрь 2008, 01:21 Ответить с цитатойВернуться к началу

Духовку тогда тоже на огнеупоре собрать стоит, я считаю, и да - все работать будет. Но не будет в духовке дымка, при топке по зиме

_________________
Ubi Victoria, ibi Concordia.
Посмотреть профильОтправить личное сообщениеОтправить e-mailПосетить сайт автораПозвонить автору
Алёна Латвия



Зарегистрирован: Сб 25 Октябрь 2008, 21:44
Сообщения: 28

СообщениеДобавлено: Пт 14 Ноябрь 2008, 01:26 Ответить с цитатойВернуться к началу

Паша писал(а):
Сейчас в MHA News есть вид с боку печи с хлебной камерой, но ссылки на подробности нету или не нашол куда кликнуть.

Честно скажем, здесь тоже разрезик давно водится
http://www.stove.ru/index.php?lng=0&rs=16%20
В том то и дело, что я ищу печь по-чёрному, впридачу никак не могу удостовериться как и что лучше расположить. Банально нехватает знаний как в такой печи направляют потоки, где нужны дополнительные каналы. С одной стороны есть вариант такой компановки (передний канал вниз, задний вверх), здесь поток горячего воздуха омывает переднюю часть духовки:



Bake_oven3.jpg
 Описание:
 Размер файла:  20.68 КБ
 Просмотров:  1100 раз(а)

Bake_oven3.jpg



Bake_oven.jpg
 Описание:
 Размер файла:  22.23 КБ
 Просмотров:  1078 раз(а)

Bake_oven.jpg


Посмотреть профильОтправить личное сообщение
Паша



Зарегистрирован: Ср 28 Ноябрь 2007, 23:35
Сообщения: 369

СообщениеДобавлено: Пт 14 Ноябрь 2008, 01:35 Ответить с цитатойВернуться к началу

Я человек городской и у нас в плите элктродуховка поэтому мало что смыслю в печении пирогов в печи, но мне кажется что в такой духовке "по чёрному" тесто обгореть может запросто. Разве что выжидать когда угли прогорят и знать точно температуру по термометру за стеклом. Как вообще пироги пекутся в таких печах ?
Посмотреть профильОтправить личное сообщение
Алёна Латвия



Зарегистрирован: Сб 25 Октябрь 2008, 21:44
Сообщения: 28

СообщениеДобавлено: Пт 14 Ноябрь 2008, 01:38 Ответить с цитатойВернуться к началу

Другой вариант - катализатор в задней части духовки (извините-извините, хлебной печки) Сзади вошло из топки, сзади канал вниз. Третий - духовка как в банной печи, на катализаторе.
Так? Вы меня исправляйте, плиз.
Так вот я не представляю что же из этого мне надо. Потому что не понимаю последствий каждого из вариантов.
Да и кроме всего прочего вообще очень озадачена размерами топки, дверцы. Вот скажите мне если не использовать в перекрытии уголки, то где все эти большие шамотные детали берут? Или в металле внутри конструкции, без прямого доступа огня, ничего страшного?
Посмотреть профильОтправить личное сообщение
Васильев Илья



Зарегистрирован: Сб 29 Декабрь 2007, 22:10
Сообщения: 256
Регион: *Печное Ателье* Архангельск +79115555911

СообщениеДобавлено: Пт 14 Ноябрь 2008, 01:42 Ответить с цитатойВернуться к началу

Алена, а эта сессия кончается чем? чем сердце успокоилось, не дымит дверь духовки, уплотнен ли притвор в оной дверке, какую тягу обеспечивает труба?
Если Вы можете точно скопировать, во всех нюансах, рабочую Печь, то победа обеспечена. Только вот условия задачки крайне редко совпадают. Стало быть надо "ИСКАТЬ ЧЕЛОВЕКА" а не проект.

_________________
Ubi Victoria, ibi Concordia.
Посмотреть профильОтправить личное сообщениеОтправить e-mailПосетить сайт автораПозвонить автору
Паша



Зарегистрирован: Ср 28 Ноябрь 2007, 23:35
Сообщения: 369

СообщениеДобавлено: Пт 14 Ноябрь 2008, 01:42 Ответить с цитатойВернуться к началу

Эти большие детали вы можете не найти в продаже, но можно делать клинчатые перемычки или арочные из шамотных кирпичей.
Посмотреть профильОтправить личное сообщение
Алёна Латвия



Зарегистрирован: Сб 25 Октябрь 2008, 21:44
Сообщения: 28

СообщениеДобавлено: Пт 14 Ноябрь 2008, 01:47 Ответить с цитатойВернуться к началу

Паша писал(а):
Я человек городской и у нас в плите элктродуховка поэтому мало что смыслю в печении пирогов в печи, но мне кажется что в такой духовке "по чёрному" тесто обгореть может запросто. Разве что выжидать когда угли прогорят и знать точно температуру по термометру за стеклом. Как вообще пироги пекутся в таких печах ?

Не знаю как в таких, а в русской печке классные. А там как раз по чёрному, хотя конечно весовые категории несопоставимы.


Последний раз редактировалось: Алёна Латвия (Пт 14 Ноябрь 2008, 02:26), всего редактировалось 1 раз
Посмотреть профильОтправить личное сообщение
Васильев Илья



Зарегистрирован: Сб 29 Декабрь 2007, 22:10
Сообщения: 256
Регион: *Печное Ателье* Архангельск +79115555911

СообщениеДобавлено: Пт 14 Ноябрь 2008, 01:52 Ответить с цитатойВернуться к началу

Я бы с Вами Алена работать не стал, прошу прощения. Вы слишком глубоко копаете для человека имеющего необходимость в печи и хлебе. Копаете продуктивно но до дна годам к семидесяти дойти только можно, и то если начать вовремя. Вы мне кажется развлекаетесь, забавно Вам это все, более интересно чем необходимо...
Киндер, Кюхен, Кирхен.
Простите, простите, простите не хотел обидеть

_________________
Ubi Victoria, ibi Concordia.
Посмотреть профильОтправить личное сообщениеОтправить e-mailПосетить сайт автораПозвонить автору
Паша



Зарегистрирован: Ср 28 Ноябрь 2007, 23:35
Сообщения: 369

СообщениеДобавлено: Пт 14 Ноябрь 2008, 01:59 Ответить с цитатойВернуться к началу

Алёна Латвия писал(а):
Паша писал(а):
"по чёрному" тесто обгореть может запросто. Разве что выжидать когда угли прогорят и знать точно температуру по термометру за стеклом. Как вообще пироги пекутся в таких печах ?

Не знаю как в таких, а в русской печке классные. А там как раз по чёрному, хотя конечно весовые категории несопоставимы. Когда мой дед переложил русскую печь на голландку (после смерти бабушки пироги больше было печь некому), я девчёнкой по печке горевала как по бабушке.


В русской печи форма с тестом не подвежнена так на прямую потоком транзитного жара как эта маленькая топка на фото. Мне кажется, что здесь условий для обгорания больше.
К тому же через такую духовку и неплотности в дверце может идти запах при топках печи. А у вас она будет стоять в гостинной дома. Может для гостинной дома лучше с хлебной камерой "по белому" ?.
Посмотреть профильОтправить личное сообщение
Алёна Латвия



Зарегистрирован: Сб 25 Октябрь 2008, 21:44
Сообщения: 28

СообщениеДобавлено: Пт 14 Ноябрь 2008, 02:06 Ответить с цитатойВернуться к началу

Васильев Илья писал(а):
Алена, а эта сессия кончается чем? чем сердце успокоилось, не дымит дверь духовки, уплотнен ли притвор в оной дверке, какую тягу обеспечивает труба?
Если Вы можете точно скопировать, во всех нюансах, рабочую Печь, то победа обеспечена. Только вот условия задачки крайне редко совпадают. Стало быть надо "ИСКАТЬ ЧЕЛОВЕКА" а не проект.


Человек свой есть, в лице мужа, которому и придётся воплощать при незначительной поддержке окружающих (я "на бумагах и поставках", он практик, есть ещё пара советчиков Very Happy ). Труба на восемь метров тоже есть. Стоит в центре дома, с улицы нарядненькая, из дома страшненькая (вся красота то внутри) Фундамент под печку благополучно отчерчен и залит (с запасом, можно думать дальше). Вот так то вот. У мужа золотые руки и приличный опыт каменьщика, оборудование всё есть, желание и терпение тоже. БУМ пробовать.
Посмотреть профильОтправить личное сообщение
Алёна Латвия



Зарегистрирован: Сб 25 Октябрь 2008, 21:44
Сообщения: 28

СообщениеДобавлено: Пт 14 Ноябрь 2008, 02:22 Ответить с цитатойВернуться к началу

Васильев Илья писал(а):
Я бы с Вами Алена работать не стал, прошу прощения. Вы слишком глубоко копаете для человека имеющего необходимость в печи и хлебе. Копаете продуктивно но до дна годам к семидесяти дойти только можно, и то если начать вовремя. Вы мне кажется развлекаетесь, забавно Вам это все, более интересно чем необходимо...
Киндер, Кюхен, Кирхен.
Простите, простите, простите не хотел обидеть

Ха. Вы бы мне это 2.5 года назад сказали. когда я к архитектору собиралась. Теперь уже поздно. Двое киндеров болтались на заднем сидении автомобиля пока я первый год прорабом у себя на стройке была, а кухня была полевая и подорожная. С тех пор мало что изменилось. Very Happy А привычка разбираться действительно есть. И часто помогает.
Теперь уже деваться некуда, обязаны достроиться. У нас кризис полтора года, расчитываем только на себя. Так что и рады бы, да всё только от нас зависит. Потому и приходится брать за рога очередного быка. Оно мне надо? Не надо, конечно, но в моём доме и мой десяток кирпичей лежит.
Посмотреть профильОтправить личное сообщение
Алёна Латвия



Зарегистрирован: Сб 25 Октябрь 2008, 21:44
Сообщения: 28

СообщениеДобавлено: Пт 14 Ноябрь 2008, 02:33 Ответить с цитатойВернуться к началу

Павлу.
Печь никак не в гостинной - в холле (читай "большой коридор с лестницей). Что хорошо, потому как в этот холл выходят абсолютно ВСЕ помещения дома. И нужна она мне именно как отопительный прибор для межсезонья. Кроме всего мы просто напросто часто топим печь (предыдущий дачный опыт).
Так что нужна, потому и ищем.
ШОПОТОМ Всё, спокойной ночи, мне утром на работу, сколько той ночи осталось, зато у нас впереди 4 выходных дня, вот я Вас врпросами и помучаю.
Посмотреть профильОтправить личное сообщение
Васильев Илья



Зарегистрирован: Сб 29 Декабрь 2007, 22:10
Сообщения: 256
Регион: *Печное Ателье* Архангельск +79115555911

СообщениеДобавлено: Пт 14 Ноябрь 2008, 02:37 Ответить с цитатойВернуться к началу

Алена! Я очень рад, что Вы не обиделись, благодарю!
Я ведь к тому, что во всем этом героизме чувствуется вывих какой-то.
Как сказал классик:"А кни все скачут и скачут, а избы горят и горят..."
Вот если бы каждый продавал свой труд а не воздух по предоплате...
Помощи Божьей!

_________________
Ubi Victoria, ibi Concordia.
Посмотреть профильОтправить личное сообщениеОтправить e-mailПосетить сайт автораПозвонить автору
Паша



Зарегистрирован: Ср 28 Ноябрь 2007, 23:35
Сообщения: 369

СообщениеДобавлено: Пт 14 Ноябрь 2008, 10:34 Ответить с цитатойВернуться к началу

Всем доброе утро !
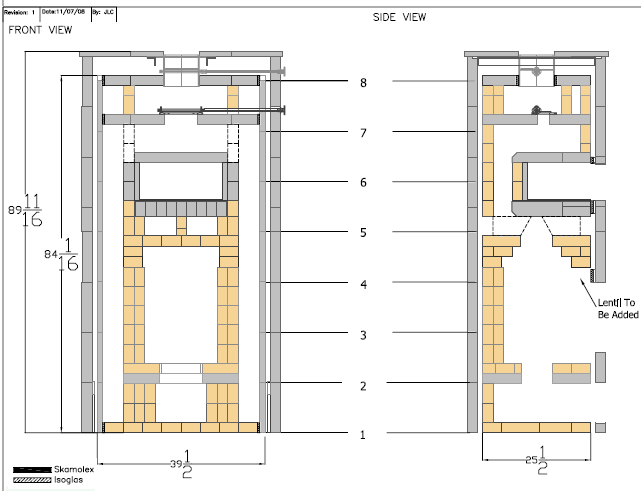
Алёна , а на печь с последних 2 фотографий у вас есть ссылка на МНА ?
Смотрю и не понимаю , там огонь из топки поднимается в хлебную камеру и опускается по передним каналам вниз . А по задним он обратно вверх поднимается и тогда в трубу ? Они вроде так не делают. У них обычно снизу уходит в коренную трубу ? Вот и не понятно.
Посмотреть профильОтправить личное сообщение
Алёна Латвия



Зарегистрирован: Сб 25 Октябрь 2008, 21:44
Сообщения: 28

СообщениеДобавлено: Пт 14 Ноябрь 2008, 19:03 Ответить с цитатойВернуться к началу

Паша, добавляю фото:



Caravaggio_01.jpg
 Описание:
 Размер файла:  33.22 КБ
 Просмотров:  1175 раз(а)

Caravaggio_01.jpg


Посмотреть профильОтправить личное сообщение
Алёна Латвия



Зарегистрирован: Сб 25 Октябрь 2008, 21:44
Сообщения: 28

СообщениеДобавлено: Пт 14 Ноябрь 2008, 19:13 Ответить с цитатойВернуться к началу

Павел, топочку из предыдущих ссылок узнаёте? Мне эта печечка нравится, неплохой ориентир, согласитесь. Попробую её порисовать Присоединяйтесь! Призыв открыт для всех, кто в нуждаетсяв информации Very Happy
....
А вокруг подозрительная тишина...Хотя бы намекнули там я копаю, или не там. Сплошная партизанщина...
Ну а источники, конечно оттуда. Народ иностранный, получается, гораздо более открытый. Я тут ещё собираюсь печи с духовкой для пиццы поискать (по сути та же хлебная печь). И немного серьёзней банные печи пошерстить. Very Happy
Посмотреть профильОтправить личное сообщение
Показать сообщения:      
Начать новую темуОтветить на тему


 Перейти:   



Следующая тема
Предыдущая тема
Вы не можете начинать темы
Вы не можете отвечать на сообщения
Вы не можете редактировать свои сообщения
Вы не можете удалять свои сообщения
Вы не можете голосовать в опросах
Вы не можете добавлять приложения в этом форуме
Вы можете скачивать файлы в этом форуме




Проект форум печников "Альянс. Печных Дел Мастера" © 2006-2026