 |
|
 |
| Автор |
Сообщение
|
Vovaka
Зарегистрирован: Чт 5 Март 2009, 18:26
Сообщения: 11
|
Добавлено:
Чт 5 Март 2009, 18:38
|
  |
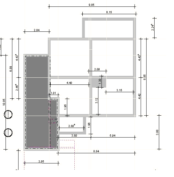
Помогите определиться с печью, планировка на картинке, под печь сделан прямоугольный фундамент примерно 1.3х2 м. Фундамент отливался вместе с лентой. Это дача, зимой эпизодические наезды по выходным, планировал конвекторное отопление еще. Материал стен - проф.брус (массив), окна пластик, двойные стеклопакеты. 2 полных этажа + холодный чердак.
Планировал изначально печь с каминной топкой, с большим стеклом.
Территориально Сергиев-Посад
|
| Описание: |
|
| Размер файла: |
18.06 КБ |
| Просмотров: |
1036 раз(а) |

|
| Описание: |
|
| Размер файла: |
18.6 КБ |
| Просмотров: |
1166 раз(а) |

|
|
|
  |
 |
Владимир Жирнов
Зарегистрирован: Пт 12 Май 2006, 23:29
Сообщения: 713
|
Добавлено:
Чт 5 Март 2009, 19:21
|
  |
Что бы отопить все четыре комнаты, печь нужно расположить так:
|
| Описание: |
|
| Размер файла: |
57.12 КБ |
| Просмотров: |
976 раз(а) |

|
|
|
   |
 |
Евгений Колчин

Зарегистрирован: Чт 3 Октябрь 2002, 06:26
Сообщения: 10145
Регион: Москва
|
Добавлено:
Чт 5 Март 2009, 19:38
|
  |
Vovaka, а из каких ссоображений труба проходит через стену, и как вы себе представляете вырезать полностью связку сруба
если на то что от нее будет тепло, то это только бывает при плохой печи
|
_________________ ************************************
|
|
      |
 |
Vovaka
Зарегистрирован: Чт 5 Март 2009, 18:26
Сообщения: 11
|
Добавлено:
Пт 6 Март 2009, 08:52
|
  |
Не пойдет труба через стену, я просто так когда-то нарисовал и не поправил. Второй этаж, эти 2 комнаты тоже хотелось бы отапливать каким-либо образом.
|
|
|
|
  |
 |
Vovaka
Зарегистрирован: Чт 5 Март 2009, 18:26
Сообщения: 11
|
Добавлено:
Пт 6 Март 2009, 08:56
|
  |
| Владимир Жирнов писал(а): |
| Что бы отопить все четыре комнаты, печь нужно расположить так: |
на первом этаже нет дверей между всеми этими "комнатами", как видно на картинке, это одно общее помещение. Поэтому на мой непрофессиональный взгляд как ни крути, отапливаться будет одинаково, при условии, что еще конвекторы воздух гоняют. Тут не стоит задача отапливаться только одной печью, задача максимально возможно снизить нагрузку на электросеть
|
|
|
|
  |
 |
IgorUA

Зарегистрирован: Ср 13 Июнь 2007, 19:11
Сообщения: 1101
Регион: Киев, Украина
|
Добавлено:
Пт 6 Март 2009, 10:45
|
  |
Между деревянными стенами дома и печью нужно сделать отступку на 15-30 см, хотя лучше даже на 50 см, чтобы можно было обслуживать и ремонтировать печь, а также убирать пыль вокруг печи. Стена из дерева должна быть защищена от лучистого тепла, излучаемого печью, металлическим листом (лучше зеркальной нержавейкой) или алюминиевой фольгой, наклеенной на толстую влагостойкую фанеру или на влагостойкий гипсокартон. Влагостойкую фанеру меньше ведёт и крутит по сравнению с обычной фанерой. Алюминиевая фольга толщиной 60-100 микрон должна быть обращена зеркальной стороной к печи, клеить её можно клеем ПВА.
Такое размещение печи существенно повысит её теплоотдачу.
|
_________________ С уважением, Игорь Сергеевич
Из Украины
P.S. Всё сказанное — IMHO (In My Humble Opinion; «по моему скромному мнению»), если не оговорено иное.
|
|
  |
 |
Vovaka
Зарегистрирован: Чт 5 Март 2009, 18:26
Сообщения: 11
|
Добавлено:
Пт 6 Март 2009, 10:56
|
  |
| IgorUA писал(а): |
| Между деревянными стенами дома и печью нужно сделать отступку на 15-30 см, хотя лучше даже на 50 см, . |
Да там нет стен то практически, с одной стороны брусовая стена торцом примыкает, с другой будет только столб вертикальный и все...
|
|
|
|
  |
 |
Vovaka
Зарегистрирован: Чт 5 Март 2009, 18:26
Сообщения: 11
|
Добавлено:
Пт 6 Март 2009, 11:00
|
  |
|
  |
 |
IgorUA

Зарегистрирован: Ср 13 Июнь 2007, 19:11
Сообщения: 1101
Регион: Киев, Украина
|
Добавлено:
Пт 6 Март 2009, 11:01
|
  |
Vovaka
Вот эти примыкания дерева к печи и нужно защитить от перегрева.
«Не читайте перед обедом советских газет», то есть не стройте угловые печи или камины.
|
_________________ С уважением, Игорь Сергеевич
Из Украины
P.S. Всё сказанное — IMHO (In My Humble Opinion; «по моему скромному мнению»), если не оговорено иное.
|
|
  |
 |
Vovaka
Зарегистрирован: Чт 5 Март 2009, 18:26
Сообщения: 11
|
Добавлено:
Пт 6 Март 2009, 11:12
|
  |
Ну примыкания понятно, что надо защитить.
А с угловыми совсем чтоль плохо дела обстоят?
|
|
|
|
  |
 |
IgorUA

Зарегистрирован: Ср 13 Июнь 2007, 19:11
Сообщения: 1101
Регион: Киев, Украина
|
Добавлено:
Пт 6 Март 2009, 11:25
|
  |
Угловые конструкции занимают много места, но сильно уступают по мощности и теплоотдаче прямоугольным печам и каминам...
|
_________________ С уважением, Игорь Сергеевич
Из Украины
P.S. Всё сказанное — IMHO (In My Humble Opinion; «по моему скромному мнению»), если не оговорено иное.
|
|
  |
 |
Vovaka
Зарегистрирован: Чт 5 Март 2009, 18:26
Сообщения: 11
|
Добавлено:
Пт 6 Март 2009, 14:35
|
  |
Ну бог с ними угловыми тогда, если это действительно так.
Вы то далековато, я смотрю, а есть тут кто, кто может сделать мне печь в МО в мае? (предварительно спроектировав конструкцию)
|
|
|
|
  |
 |
Крафт

Зарегистрирован: Вт 13 Июнь 2006, 00:38
Сообщения: 613
Регион: г. Обнинск
|
Добавлено:
Сб 7 Март 2009, 02:20
|
  |
| Цитата: |
| ( 1. ) Угловые конструкции занимают много места, (2. )но сильно уступают по мощности и теплоотдаче прямоугольным печам и каминам... |
Совершенно не справедливое и не чем не оправданное изречение.
1. Угловые конструкции получили спрос именно из-за экономии площади в помещении.
2. По какой мощности ? ! Если камин угловой или камин пристенный имеют одинаковый по размерам портал - какая разница в мощности и теплоотдаче ?
|
_________________ Всем удачи! Дымка в дверь, в окошко и в трубу немножко ! - 8-910-917-00-72 Шведок Юрий Анатольевич. http://www.redmediatv.ru/video.php?id=28939
|
|
      |
 |
Евгений Колчин

Зарегистрирован: Чт 3 Октябрь 2002, 06:26
Сообщения: 10145
Регион: Москва
|
Добавлено:
Сб 7 Март 2009, 08:29
|
  |
выбранная вами печь была установлена в доме на помещение 6х8 метров, правда в нее был вставлен еще регистр котла, для отопления второго этажа
в вашем варианте, вынося печь на центр комнаты думаю будет не эстетично вести трубы
|
_________________ ************************************
| Описание: |
|
| Размер файла: |
6.42 КБ |
| Просмотров: |
15935 раз(а) |

|
|
|
      |
 |
Vovaka
Зарегистрирован: Чт 5 Март 2009, 18:26
Сообщения: 11
|
Добавлено:
Вт 10 Март 2009, 10:57
|
  |
| Евгений Колчин писал(а): |
выбранная вами печь была установлена в доме на помещение 6х8 метров, правда в нее был вставлен еще регистр котла, для отопления второго этажа
в вашем варианте, вынося печь на центр комнаты думаю будет не эстетично вести трубы  |
Евгений, про отопление 2-ого этажа мне тоже очень актуально, видимо все же придется так делать, может каким другим способом, правда не знаю насколько это удорожает конструкцию. Пара вопросов: сколько примерно будет стоить данная конструкция "под ключ" с отоплением второго этажа? (2 комнаты). Кирпич конечно попроще чем на фото.
Существует ли такая услуга как выезд на место для обследования объекта, выбора конструкции печи и обговаривания всех условий?
|
|
|
|
  |
 |
Rifeyfx

Зарегистрирован: Сб 30 Январь 2010, 21:11
Сообщения: 60
Регион: Пермский край, Кунгур
|
Добавлено:
Сб 30 Январь 2010, 21:50
|
  |
У меня примерно такая же планировка дома, отличие в том, что первый этаж - цокольный, а на втором этаже нужна плита.
Цоколь невысокий, 2 метра до перекрытия.
По расчету нужно печи на этаж около 3500-4000 Вт.
Может быть, есть подобные готовые конструкции?
|
|
|
|
  |
 |
|
|
|
Следующая тема
Предыдущая тема
Вы не можете начинать темы Вы не можете отвечать на сообщения Вы не можете редактировать свои сообщения Вы не можете удалять свои сообщения Вы не можете голосовать в опросах Вы не можете добавлять приложения в этом форуме Вы можете скачивать файлы в этом форуме
|
|