 |
|
 |
| Автор |
Сообщение
|
lexa
Зарегистрирован: Пт 6 Февраль 2009, 19:06
Сообщения: 7
Регион: Москва
|
Добавлено:
Сб 4 Апрель 2009, 18:33
|
  |
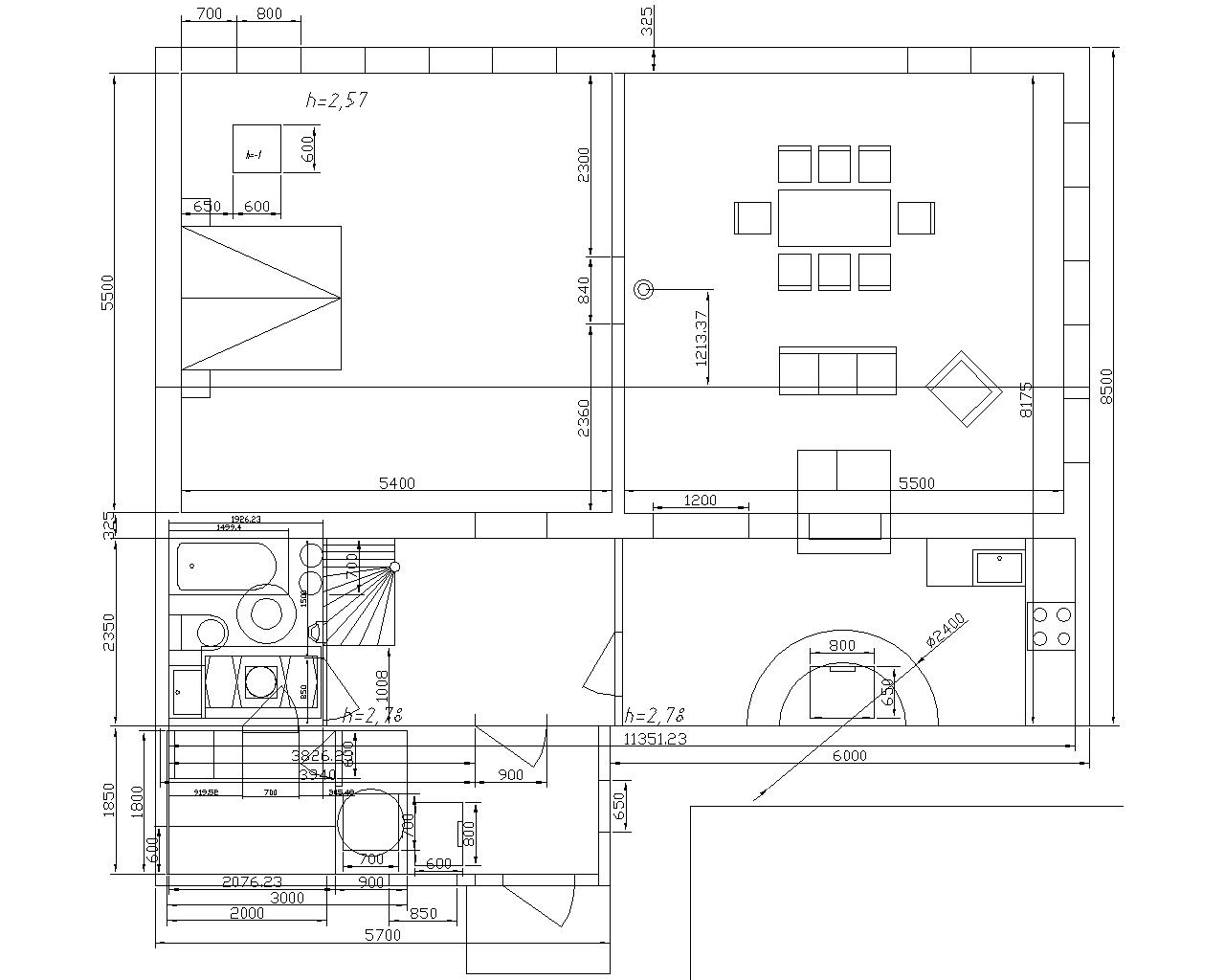
Дом 140 м2
1й этаж: сруб 6х12 и каркасная пристройка 2х12 (листы 100мм)
мансарда: утепление базальтовая вата 50 мм.
Проживание зимой - "наездами", В перспективе - постоянное.
Местонахождение - Истринский р-н МО. (рядом с Бужарово)
Нужна печь или печь-камин с плиткой и духовкой.
|
| Описание: |
|
| Размер файла: |
110.95 КБ |
| Просмотров: |
825 раз(а) |

|
| Описание: |
|
| Размер файла: |
122.45 КБ |
| Просмотров: |
818 раз(а) |

|
|
|
  |
 |
Михаил Немов

Зарегистрирован: Ср 19 Ноябрь 2008, 01:09
Сообщения: 291
Регион: Москва Зеленоград
|
Добавлено:
Пн 6 Апрель 2009, 06:23
|
  |
печное отопление видится основным иль резервным? Фундамент уже залит аль подвинуть можно ещё?второй этаж греть надо?тут уж котлом пахнет
|
_________________ Строить печи правильно-приятно во всех отношениях! Зеленоград 8-926-262-83-79 www.stovestroy.ru
|
|
    |
 |
lexa
Зарегистрирован: Пт 6 Февраль 2009, 19:06
Сообщения: 7
Регион: Москва
|
Добавлено:
Пн 6 Апрель 2009, 09:26
|
  |
к сожалению, дом уже стоит. (не я строил)
фундамент можно попробовать на столбах, чтобы обойти ленту бетонных блоков, но вопрос в том, что он получится выше пола.
В-общем, наверное, надо специалисту на месте смотреть.
Второй этаж зимой использоваться не будет. Теплоизоляция слабовата и утеплить больше не получится (так уж сделано)
А котел - это-ж постоянно топить придется. Да и трубы-насосы.
Отопление - вспомогательное, но чтобы можно было использовать как основное.
Электроконвекторы уже есть.
|
|
|
|
  |
 |
Андрей Ищенко
Проектировщик
Зарегистрирован: Вт 7 Февраль 2006, 10:08
Сообщения: 2946
Регион: Пенза
|
Добавлено:
Пн 6 Апрель 2009, 09:49
|
  |
| Цитата: |
Второй этаж зимой использоваться не будет. Теплоизоляция слабовата и утеплить больше не получится (так уж сделано)
|
Печкой, даже самой лучшей, улицу не обогреть!
|
|
|
|
     |
 |
lexa
Зарегистрирован: Пт 6 Февраль 2009, 19:06
Сообщения: 7
Регион: Москва
|
Добавлено:
Пн 6 Апрель 2009, 09:56
|
  |
50 мм. ваты. В "межсезонье" - достаточно тепло будет, а зимой - смысла отапливать улицу действительно нет.
|
|
|
|
  |
 |
|
|
|
Следующая тема
Предыдущая тема
Вы не можете начинать темы Вы не можете отвечать на сообщения Вы не можете редактировать свои сообщения Вы не можете удалять свои сообщения Вы не можете голосовать в опросах Вы не можете добавлять приложения в этом форуме Вы можете скачивать файлы в этом форуме
|
|