 |
|
 |
| Автор |
Сообщение
|
NIKOLAY RUDYKA
Зарегистрирован: Пн 7 Январь 2013, 20:11
Сообщения: 18
Регион: Тула
|
Добавлено:
Пн 7 Январь 2013, 20:50
|
  |
Добрый день, уважаемые печники!
Ищется печник для постройки печки в строящемся доме в Туле.
Проект дома прилагаю.
Надо; (что то уютное и оригинальное) Отопительная печь с хлебной камерой.
Можно что то с камином.
Пример прилагаю.
Жду ваших предложений.
|
| Описание: |
|
| Размер файла: |
80.44 КБ |
| Просмотров: |
801 раз(а) |

|
| Описание: |
|
| Размер файла: |
102.07 КБ |
| Просмотров: |
819 раз(а) |

|
| Описание: |
|
| Размер файла: |
33 КБ |
| Просмотров: |
805 раз(а) |

|
| Описание: |
|
| Размер файла: |
44.54 КБ |
| Просмотров: |
797 раз(а) |

|
| Описание: |
|
| Размер файла: |
90.68 КБ |
| Просмотров: |
792 раз(а) |

|
|
|
  |
 |
Андрей_Алексеевич

Зарегистрирован: Пн 13 Декабрь 2010, 19:17
Сообщения: 5909
Регион: малая родина Павлова, Скобелева, Циолковского, Уткиных и др.
|
Добавлено:
Пн 7 Январь 2013, 21:05
|
  |
Без регистра ГВС не обойтись...
А назначение помещений: 1, 2, 3, .... - секрет?
Лестничный марш на второй этаж открытый, или закрытый?
Домик ПМЖ?
Какова площадь второго этажа?
|
_________________ Печник - милостью и промыслом Божиим.
Печное отопление частного дома и т.п., авторское сопровождение проектов, наставничество в т.ч. дистанционное, партнёрство в кладке печей.
89106130763 МТС
andrejka61@mail.ru
andrej.kuzmischev@yandex.ru
|
|
   |
 |
NIKOLAY RUDYKA
Зарегистрирован: Пн 7 Январь 2013, 20:11
Сообщения: 18
Регион: Тула
|
Добавлено:
Пн 7 Январь 2013, 21:23
|
  |
| Андрей_Алексеевич писал(а): |
Без регистра ГВС не обойтись...
А назначение помещений: 1, 2, 3, .... - секрет?
Лестничный марш на второй этаж открытый, или закрытый?
Домик ПМЖ?
Какова площадь второго этажа? |
Регистр ГВС не нужен, назначение помещений;
1. Это терраса
2. Тамбур
3. С/У
4. Комната отдыха 18м2
5. Кухня 11м2
6. Душевая
Общая площадь 1 этажа 51,6м2
Лестничный марш на второй этаж открытый, печку хотелось бы расположить в комнате отдыха вопрос где? поэтому и требования маленькая компактная и эксклюзивная.
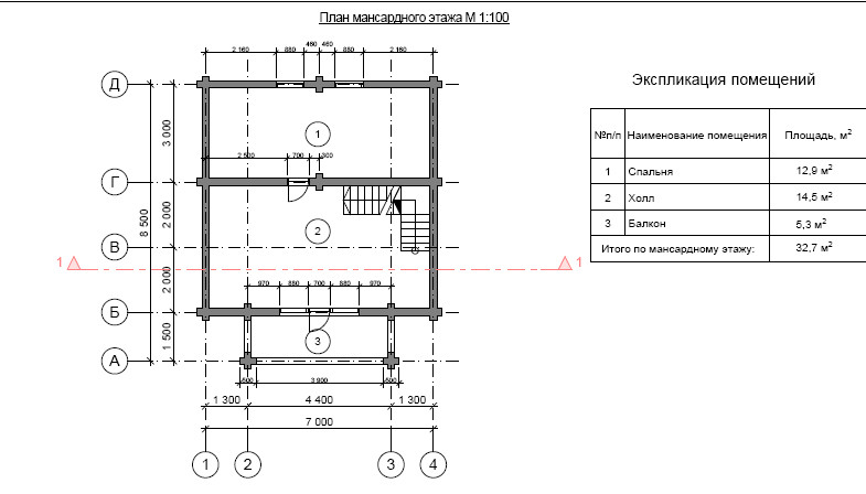
Второго этажа; он мансардный 32.7 м2
Это дача но будем там частенько, печка не для основного отопления, будет стоять котел.
|
|
|
|
  |
 |
Андрей_Алексеевич

Зарегистрирован: Пн 13 Декабрь 2010, 19:17
Сообщения: 5909
Регион: малая родина Павлова, Скобелева, Циолковского, Уткиных и др.
|
Добавлено:
Пн 7 Январь 2013, 22:17
|
  |
|
   |
 |
NIKOLAY RUDYKA
Зарегистрирован: Пн 7 Январь 2013, 20:11
Сообщения: 18
Регион: Тула
|
Добавлено:
Пн 7 Январь 2013, 22:49
|
  |
а почему без ХК? стена несущая такие пропилы, думаю, что не реально, а еще есть какие нить выходы из этой ситуации?
|
|
|
|
  |
 |
Гребенчюк Андрей

Зарегистрирован: Чт 9 Сентябрь 2010, 17:23
Сообщения: 1211
Регион: Ленинградская область
|
Добавлено:
Пн 7 Январь 2013, 23:43
|
  |
почему проблема нормально получится если к примеру печь по длине 1200 и ширине 890 мм и плюс на противопожарки по бокам по 25 см нормально встанет на место первого этажа а остальные помещение можно просто от трубы подключиться и добавить конвекторные печи (буржуйки) если понадобится
|
|
|
|
  |
 |
Андрей_Алексеевич

Зарегистрирован: Пн 13 Декабрь 2010, 19:17
Сообщения: 5909
Регион: малая родина Павлова, Скобелева, Циолковского, Уткиных и др.
|
Добавлено:
Вт 8 Январь 2013, 10:44
|
  |
| NIKOLAY RUDYKA писал(а): |
| а почему без ХК? стена несущая такие пропилы, думаю, что не реально, а еще есть какие нить выходы из этой ситуации? |
Д.в.ч. сей проект не под печное отопление одной печью (камино-печью).
УВЫ!
|
_________________ Печник - милостью и промыслом Божиим.
Печное отопление частного дома и т.п., авторское сопровождение проектов, наставничество в т.ч. дистанционное, партнёрство в кладке печей.
89106130763 МТС
andrejka61@mail.ru
andrej.kuzmischev@yandex.ru
|
|
   |
 |
Виктор_А

Зарегистрирован: Чт 6 Январь 2011, 17:01
Сообщения: 850
Регион: МО г.Серпухов
|
Добавлено:
Вт 8 Январь 2013, 10:58
|
  |
А планировочку мансарды можно?
|
|
|
|
    |
 |
Куликов Андрей

Зарегистрирован: Вс 30 Январь 2011, 09:15
Сообщения: 1059
Регион: Мичуринск Тамбовская обл.
|
Добавлено:
Вт 8 Январь 2013, 12:48
|
  |
| Андрей_Алексеевич писал(а): |
| NIKOLAY RUDYKA писал(а): |
| а почему без ХК? стена несущая такие пропилы, думаю, что не реально, а еще есть какие нить выходы из этой ситуации? |
Д.в.ч. сей проект не под печное отопление одной печью (камино-печью).
УВЫ! |
Внимательнее читайте автора темы.
Это дача но будем там частенько, печка не для основного отопления, будет стоять котел.
|
|
|
|
    |
 |
Андрей_Алексеевич

Зарегистрирован: Пн 13 Декабрь 2010, 19:17
Сообщения: 5909
Регион: малая родина Павлова, Скобелева, Циолковского, Уткиных и др.
|
Добавлено:
Вт 8 Январь 2013, 13:34
|
  |
| NIKOLAY RUDYKA писал(а): |
...Лестничный марш на второй этаж открытый, печку хотелось бы расположить в комнате отдыха вопрос где? поэтому и требования маленькая компактная и эксклюзивная.
Второго этажа; он мансардный 32.7 м2
Это дача но будем там частенько, печка не для основного отопления, будет стоять котел. |
- открытый лестничный марш потребует 30% увеличесния мощности котла для прогрева воздуха сверху - потолок мансарды до низу - чистый пол 0,00 ;
- прекращение топки "автоматом" подымает нагретый воздух от пола 1-вого этажа на 1,5-ра метра над полом просто за счёт конвенкции;
- "маленькая компактная" Вам подошла бы типа Бавария (не реклама!) с контуром ГВС, ТАком и с тёплым полом;
"как то вот так..."
|
_________________ Печник - милостью и промыслом Божиим.
Печное отопление частного дома и т.п., авторское сопровождение проектов, наставничество в т.ч. дистанционное, партнёрство в кладке печей.
89106130763 МТС
andrejka61@mail.ru
andrej.kuzmischev@yandex.ru
|
|
   |
 |
Виктор_А

Зарегистрирован: Чт 6 Январь 2011, 17:01
Сообщения: 850
Регион: МО г.Серпухов
|
Добавлено:
Вт 8 Январь 2013, 15:35
|
  |
Видится так
|
| Описание: |
|
| Размер файла: |
112.55 КБ |
| Просмотров: |
775 раз(а) |

|
|
|
    |
 |
NIKOLAY RUDYKA
Зарегистрирован: Пн 7 Январь 2013, 20:11
Сообщения: 18
Регион: Тула
|
Добавлено:
Вт 8 Январь 2013, 16:44
|
  |
| Виктор_А писал(а): |
| А планировочку мансарды можно? |
Выкладываю
|
| Описание: |
|
| Размер файла: |
62.23 КБ |
| Просмотров: |
792 раз(а) |

|
| Описание: |
|
| Размер файла: |
108.14 КБ |
| Просмотров: |
497 раз(а) |

|
|
|
  |
 |
NIKOLAY RUDYKA
Зарегистрирован: Пн 7 Январь 2013, 20:11
Сообщения: 18
Регион: Тула
|
Добавлено:
Вт 8 Январь 2013, 16:59
|
  |
Андрей Алексеевич! у меня есть основное отопление т.е будет! Мне не надо печка с контур ГВС! Пример того, что я хочу я показал в примерах работ ваших коллег. Печка будет нести вспомогательный характер, создавать уют в доме, символизировать очаг, как то вот так Мне надо ее грамотно расположить в доме, вот этого я не учел делая проект.
|
|
|
|
  |
 |
Андрей_Алексеевич

Зарегистрирован: Пн 13 Декабрь 2010, 19:17
Сообщения: 5909
Регион: малая родина Павлова, Скобелева, Циолковского, Уткиных и др.
|
Добавлено:
Вт 8 Январь 2013, 18:30
|
  |
Тогда выбирайте из имеющихся камино-печей
Расположение Виктор_А указал.
УСПЕХОВ!
|
_________________ Печник - милостью и промыслом Божиим.
Печное отопление частного дома и т.п., авторское сопровождение проектов, наставничество в т.ч. дистанционное, партнёрство в кладке печей.
89106130763 МТС
andrejka61@mail.ru
andrej.kuzmischev@yandex.ru
|
|
   |
 |
Фро Анатолий
Зарегистрирован: Вт 19 Март 2013, 17:58
Сообщения: 41
Регион: Чебоксары
|
Добавлено:
Пн 8 Апрель 2013, 08:11
|
  |
я сторонник Русской печи с подтопком и с лежанкой,в ней можно готовить удивительно вкусные блюда,какие ни в какой духовке не сготовить,посидеть перед ней намного приятней и полезней чем перед камином-получаешь мощный заряд энергии,спать на ней-истинное удовольствие-избавляешься от хворей,размеры печи моей конструкции-6 на 6 кирпичей,лежанки 100*200см,такая печь может прогревать дом площадью до 200 кв.м.,если он утеплен хорошим теплоизоляционным материалом толщиной 100 мм
|
|
|
|
    |
 |
|
|
|
Следующая тема
Предыдущая тема
Вы не можете начинать темы Вы не можете отвечать на сообщения Вы не можете редактировать свои сообщения Вы не можете удалять свои сообщения Вы не можете голосовать в опросах Вы не можете добавлять приложения в этом форуме Вы можете скачивать файлы в этом форуме
|
|