| Автор |
Сообщение
|
Владимир Солин

Зарегистрирован: Ср 9 Сентябрь 2009, 12:52
Сообщения: 3804
Регион: Череповец
|
Добавлено:
Чт 17 Январь 2013, 14:03
|
  |
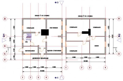
Когда выбирают планировку дома, то пытаются сделать так, чтобы все получилось... Даже небольшие изменения в проекте уже позволяют думать о печке...
|
_________________ САМОназначенный дебил форума в 2017году
| Описание: |
|
| Размер файла: |
94.47 КБ |
| Просмотров: |
812 раз(а) |

|
|
|
  |
 |
dmiko68
Зарегистрирован: Сб 15 Декабрь 2012, 18:02
Сообщения: 32
Регион: Москва
|
Добавлено:
Чт 17 Январь 2013, 14:18
|
  |
| Владимир Солин писал(а): |
Когда выбирают планировку дома, то пытаются сделать так, чтобы все получилось... Даже небольшие изменения в проекте уже позволяют думать о печке...  |
Согласен. А вот так можно расположить русскую печь? Лежаком в гостиную.
|
| Описание: |
|
| Размер файла: |
49.06 КБ |
| Просмотров: |
819 раз(а) |

|
|
|
  |
 |
Владимир Солин

Зарегистрирован: Ср 9 Сентябрь 2009, 12:52
Сообщения: 3804
Регион: Череповец
|
Добавлено:
Чт 17 Январь 2013, 14:20
|
  |
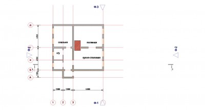
Да как угодно, когда планировка правильная, только для второго этажа дрова придется наверх таскать. Мне не нравится.
|
_________________ САМОназначенный дебил форума в 2017году
|
|
  |
 |
dmiko68
Зарегистрирован: Сб 15 Декабрь 2012, 18:02
Сообщения: 32
Регион: Москва
|
Добавлено:
Чт 17 Январь 2013, 14:25
|
  |
| Владимир Солин писал(а): |
| Да как угодно, когда планировка правильная, только для второго этажа дрова придется наверх таскать. Мне не нравится. |
А зачем на второй этаж дрова таскать. Печь не отопительная нужна а Русская. И еще вопросик...где-то прочитал что общий фундамент печи и дома это плохо. Так-ли?
|
|
|
|
  |
 |
pe4ka
Зарегистрирован: Ср 23 Сентябрь 2009, 17:36
Сообщения: 1917
Регион: Туймазы
|
Добавлено:
Чт 17 Январь 2013, 14:28
|
  |
С казанского вокзала заберете с багажного вагона....Солнечная Башкирия...
|
_________________ окажу консультации по кладке печей каминов и их ремонту д51055 код8-34782 сот 8-9173752622 г.Туймазы башкирия
|
|
   |
 |
Владимир Солин

Зарегистрирован: Ср 9 Сентябрь 2009, 12:52
Сообщения: 3804
Регион: Череповец
|
Добавлено:
Чт 17 Январь 2013, 14:28
|
  |
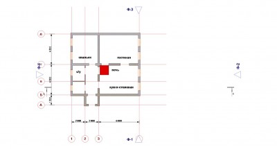
Да. При подьеме периметра пучением - нагрузка на балку превысит допуски и она лопнет.
А 2ой этаж только котлом отапливать?
|
_________________ САМОназначенный дебил форума в 2017году
|
|
  |
 |
dmiko68
Зарегистрирован: Сб 15 Декабрь 2012, 18:02
Сообщения: 32
Регион: Москва
|
Добавлено:
Чт 17 Январь 2013, 14:31
|
  |
| Владимир Солин писал(а): |
Да. При подьеме периметра пучением - нагрузка на балку превысит допуски и она лопнет.
А 2ой этаж только котлом отапливать? |
Значит такой вариант не прокатит
|
| Описание: |
|
| Размер файла: |
49.06 КБ |
| Просмотров: |
744 раз(а) |

|
|
|
  |
 |
Владимир Солин

Зарегистрирован: Ср 9 Сентябрь 2009, 12:52
Сообщения: 3804
Регион: Череповец
|
Добавлено:
Чт 17 Январь 2013, 14:32
|
  |
Почему? Пилить поперечную балку. Вертикальную можно оставить.
|
_________________ САМОназначенный дебил форума в 2017году
|
|
  |
 |
dmiko68
Зарегистрирован: Сб 15 Декабрь 2012, 18:02
Сообщения: 32
Регион: Москва
|
Добавлено:
Чт 17 Январь 2013, 14:37
|
  |
| Владимир Солин писал(а): |
| Почему? Пилить поперечную балку. Вертикальную можно оставить. |
Объясните подробней какую балку. Что-то я не догоняю.
|
|
|
|
  |
 |
Владимир Солин

Зарегистрирован: Ср 9 Сентябрь 2009, 12:52
Сообщения: 3804
Регион: Череповец
|
Добавлено:
Чт 17 Январь 2013, 14:40
|
  |
На рисунке вертикально нарисованная балка фундамента рядом с печкой может быть, а под печкой - нужно отпиливать...
|
_________________ САМОназначенный дебил форума в 2017году
|
|
  |
 |
dmiko68
Зарегистрирован: Сб 15 Декабрь 2012, 18:02
Сообщения: 32
Регион: Москва
|
Добавлено:
Чт 17 Январь 2013, 14:44
|
  |
| Владимир Солин писал(а): |
| На рисунке вертикально нарисованная балка фундамента рядом с печкой может быть, а под печкой - нужно отпиливать... |
Понял. Спасибо.
|
|
|
|
  |
 |
Владимир Солин

Зарегистрирован: Ср 9 Сентябрь 2009, 12:52
Сообщения: 3804
Регион: Череповец
|
Добавлено:
Чт 17 Январь 2013, 14:54
|
  |
Без проблем
|
_________________ САМОназначенный дебил форума в 2017году
|
|
  |
 |
dmiko68
Зарегистрирован: Сб 15 Декабрь 2012, 18:02
Сообщения: 32
Регион: Москва
|
Добавлено:
Чт 17 Январь 2013, 16:07
|
  |
| Владимир Солин писал(а): |
Без проблем  |
А какой средний размер Русской печи? На плане в масштабе прикинуть.
|
|
|
|
  |
 |
Владимир Солин

Зарегистрирован: Ср 9 Сентябрь 2009, 12:52
Сообщения: 3804
Регион: Череповец
|
Добавлено:
Пт 18 Январь 2013, 09:26
|
  |
|
  |
 |
Андрей_Алексеевич

Зарегистрирован: Пн 13 Декабрь 2010, 19:17
Сообщения: 5899
Регион: малая родина Павлова, Скобелева, Циолковского, Уткиных и др.
|
Добавлено:
Пт 18 Январь 2013, 09:52
|
  |
| dmiko68 писал(а): |
| А какой средний размер Русской печи? На плане в масштабе прикинуть. |
Таки вам с лежанкой в полный рост, или будете пристраивать полати(что весьма практично!)?
|
_________________ Печник - милостью и промыслом Божиим.
Печное отопление частного дома и т.п., авторское сопровождение проектов, наставничество в т.ч. дистанционное, партнёрство в кладке печей.
89106130763 МТС
andrejka61@mail.ru
andrej.kuzmischev@yandex.ru
|
|
   |
 |
dmiko68
Зарегистрирован: Сб 15 Декабрь 2012, 18:02
Сообщения: 32
Регион: Москва
|
Добавлено:
Пт 18 Январь 2013, 12:35
|
  |
| Андрей_Алексеевич писал(а): |
| Таки вам с лежанкой в полный рост, или будете пристраивать полати(что весьма практично!)? |
Что-то я начал склоняться к Теплушке. Мне кажется она меньше размером.
|
|
|
|
  |
 |
Андрей ..

Зарегистрирован: Ср 16 Ноябрь 2011, 07:49
Сообщения: 1161
Регион: Нижегородская обл.
|
Добавлено:
Пт 18 Январь 2013, 12:48
|
  |
Ширина теплушки лимитируется размером топки- плитой 71. 41 , минимум 120 см, длина- от 165 см. Классику можно делать от меньших размеров до гораздо более внушительных.
|
|
|
|
    |
 |
dmiko68
Зарегистрирован: Сб 15 Декабрь 2012, 18:02
Сообщения: 32
Регион: Москва
|
Добавлено:
Пт 18 Январь 2013, 13:15
|
  |
| Андрей .. писал(а): |
| Ширина теплушки лимитируется размером топки- плитой 71. 41 , минимум 120 см, длина- от 165 см. Классику можно делать от меньших размеров до гораздо более внушительных. |
На протопку теплушки вроде как дров меньше надо. А в плане готовки она уступает классике или нет?
|
|
|
|
  |
 |
Андрей ..

Зарегистрирован: Ср 16 Ноябрь 2011, 07:49
Сообщения: 1161
Регион: Нижегородская обл.
|
Добавлено:
Пт 18 Январь 2013, 13:20
|
  |
Есть нюансы, но по- большому счёту, варится всё одинаково.
|
|
|
|
    |
 |
dmiko68
Зарегистрирован: Сб 15 Декабрь 2012, 18:02
Сообщения: 32
Регион: Москва
|
Добавлено:
Пт 18 Январь 2013, 13:36
|
  |
Вот здесь расположить. Пускай уже и греет заодно.
|
| Описание: |
| Вот здесь расположить. Пускай уже и греет заодно. |
|
| Размер файла: |
63.39 КБ |
| Просмотров: |
799 раз(а) |

|
| Описание: |
| Хочется что-то похожее на эту печь. |
|
| Размер файла: |
17.39 КБ |
| Просмотров: |
756 раз(а) |

|
|
|
  |
 |
|
|