| Автор |
Сообщение
|
Раск
Зарегистрирован: Ср 29 Август 2007, 14:11
Сообщения: 19
|
Добавлено:
Чт 6 Сентябрь 2007, 11:23
|
  |
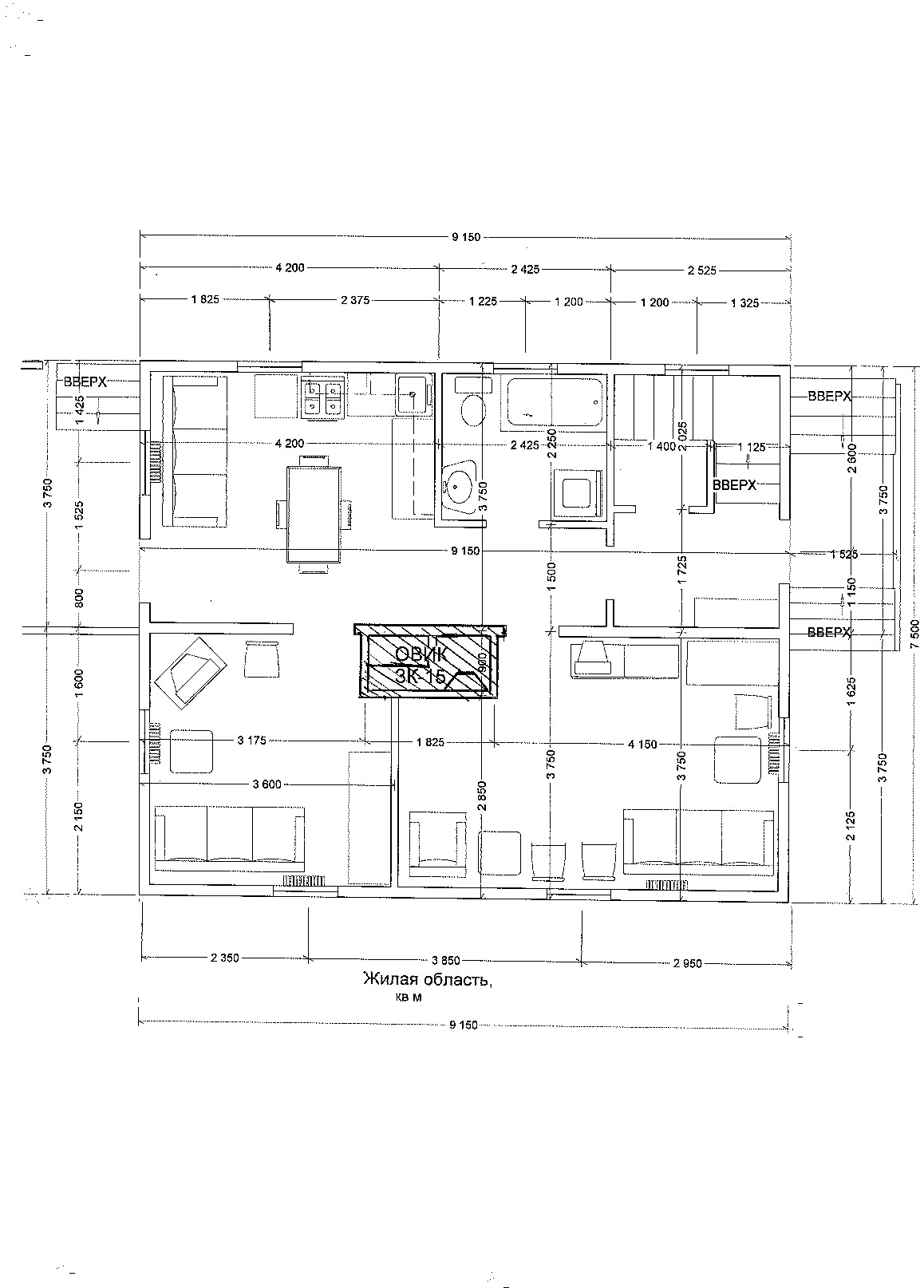
Помогите с выбором печи. Сам думаю ОВИКЗК-15.
|
| Описание: |
|
| Размер файла: |
199.74 КБ |
| Просмотров: |
1440 раз(а) |

|
|
|
  |
 |
Андрей Ищенко
Проектировщик
Зарегистрирован: Вт 7 Февраль 2006, 10:08
Сообщения: 2946
Регион: Пенза
|
Добавлено:
Чт 6 Сентябрь 2007, 13:13
|
  |
Нормальный выбор, мы еще меняем в этих печах направление портала камина (диагональное). Вот например так:
|
_________________ +7 962 974-10-94 Viber WhatsApp
+7 962 399-59-39
|
|
     |
 |
Раск
Зарегистрирован: Ср 29 Август 2007, 14:11
Сообщения: 19
|
Добавлено:
Чт 6 Сентябрь 2007, 14:30
|
  |
Да! Это гораздо лутьше. Но на сайте Кузнецова И.В. я таких проектов не нашел. А я сам под такую печку могу сделать фундамент или есть свои хитрости?
|
|
|
|
  |
 |
Раск
Зарегистрирован: Ср 29 Август 2007, 14:11
Сообщения: 19
|
Добавлено:
Пн 10 Сентябрь 2007, 08:56
|
  |
Специалисты, дайте пожалуйста план такой печки для изготовления фундамента.
|
|
|
|
  |
 |
Евгений Колчин

Зарегистрирован: Чт 3 Октябрь 2002, 06:26
Сообщения: 10146
Регион: Москва
|
Добавлено:
Пн 10 Сентябрь 2007, 11:35
|
  |
схема печи в масштабе: 1 кирпич=26 см
фундамент шире печи в каждую сторону на 10-15 см
|
|
|
|
      |
 |
Раск
Зарегистрирован: Ср 29 Август 2007, 14:11
Сообщения: 19
|
Добавлено:
Пн 10 Сентябрь 2007, 14:12
|
  |
Спасибо Евгений. Только я имел в виду ОВИКЗК-15 с диагональным порталом камина(совет Ищенко Андрея). Если не трудно посмотрите мой вложенный файл.
|
|
|
|
  |
 |
Андрей Ищенко
Проектировщик
Зарегистрирован: Вт 7 Февраль 2006, 10:08
Сообщения: 2946
Регион: Пенза
|
Добавлено:
Пн 10 Сентябрь 2007, 14:47
|
  |
Я советовал ОИК ХК ЗК...
|
_________________ +7 962 974-10-94 Viber WhatsApp
+7 962 399-59-39
|
|
     |
 |
Раск
Зарегистрирован: Ср 29 Август 2007, 14:11
Сообщения: 19
|
Добавлено:
Пн 10 Сентябрь 2007, 16:47
|
  |
Я относительно расположения камина.
Но Ваше предложение про хлебную печку рассматриваю.
|
|
|
|
  |
 |
Раск
Зарегистрирован: Ср 29 Август 2007, 14:11
Сообщения: 19
|
Добавлено:
Вт 6 Ноябрь 2007, 11:32
|
  |
Наверное будете ругать, но фундамент печи связал с фундаментом дома. Сечение, глубина заложения и толщина падушки соответствует основному фундаменту. В полость засыпал ПГС. С верху залил плиту 20 см. Таким образом получилось: плита 20 см., цоколь 60 х 30 см, гидроизоляция, плита 20 см. Итого в плане 210 х 135 см.
|
|
|
|
  |
 |
Раск
Зарегистрирован: Ср 29 Август 2007, 14:11
Сообщения: 19
|
Добавлено:
Ср 7 Ноябрь 2007, 10:46
|
  |
картинка1
|
| Описание: |
|
| Размер файла: |
28.96 КБ |
| Просмотров: |
1056 раз(а) |

|
|
|
  |
 |
Раск
Зарегистрирован: Ср 29 Август 2007, 14:11
Сообщения: 19
|
Добавлено:
Ср 7 Ноябрь 2007, 10:58
|
  |
картинка 2
|
| Описание: |
|
| Размер файла: |
36.96 КБ |
| Просмотров: |
1087 раз(а) |

|
|
|
  |
 |
Славка
Зарегистрирован: Ср 3 Октябрь 2007, 11:04
Сообщения: 15
|
Добавлено:
Ср 7 Ноябрь 2007, 12:49
|
  |
я так понял вы залили плиту(20см) по обозначенному битумом периметру? вопрос: как у вас будет осуществляться кладка стены?
может пока непоздно подлить справа и отступив чутка от основного, слева? здвинуть плиту.... или это не несущая часть фундамента а внутренняя перегородка? и там нагружать фундамент вы небудете? если нет, то из каких соображений отталкивались строя фундамент отопительной печи скраю дома?
|
|
|
|
  |
 |
Раск
Зарегистрирован: Ср 29 Август 2007, 14:11
Сообщения: 19
|
Добавлено:
Ср 7 Ноябрь 2007, 13:44
|
  |
Посмотрите на вложенный файл в первом сообщении.
Стена внутренняя, рубленная 150 мм. Печь толщиной 91 х 180 см. в нише, проеме. Вроде выпуски соответствуют.
|
|
|
|
  |
 |
Раск
Зарегистрирован: Ср 29 Август 2007, 14:11
Сообщения: 19
|
Добавлено:
Чт 8 Ноябрь 2007, 12:16
|
  |
картинка 3
|
| Описание: |
|
| Размер файла: |
17.89 КБ |
| Просмотров: |
1050 раз(а) |

|
|
|
  |
 |
Раск
Зарегистрирован: Ср 29 Август 2007, 14:11
Сообщения: 19
|
Добавлено:
Пт 9 Ноябрь 2007, 09:45
|
  |
Евгений, Андрей, Ваше мнение?
Геометрию можно еще поправить, т.к. буду поднимать пояс кирпичем на 40 см.
|
|
|
|
  |
 |
Раск
Зарегистрирован: Ср 29 Август 2007, 14:11
Сообщения: 19
|
Добавлено:
Ср 14 Ноябрь 2007, 16:09
|
  |
картинка 4
|
| Описание: |
|
| Размер файла: |
230.79 КБ |
| Просмотров: |
1078 раз(а) |

|
|
|
  |
 |
Александр Замашка
Гость
|
Добавлено:
Ср 14 Ноябрь 2007, 20:41
|
  |
| Раск писал(а): |
| Геометрию можно еще поправить, т.к. буду поднимать пояс кирпичем на 40 см. |
С геометрией все нормально , а вот пояс кирпичный для чего поднимать ?
|
|
|
|
|
 |
Раск
Зарегистрирован: Ср 29 Август 2007, 14:11
Сообщения: 19
|
Добавлено:
Чт 15 Ноябрь 2007, 13:35
|
  |
Хочу повыше (1 м). + свяжусь с облицовкой + доп. гидроизоляция + теплопроводность кирпича ниже (теплее).
Вобщем одни +++, кроме дополнительных затрат.
|
| Описание: |
|
| Размер файла: |
72.08 КБ |
| Просмотров: |
1024 раз(а) |

|
|
|
  |
 |
Александр Замашка
Гость
|
Добавлено:
Чт 15 Ноябрь 2007, 16:11
|
  |
Желательно , чтобы фундамент печи выходил в ровень с чистовым полом .
|
|
|
|
|
 |
Раск
Зарегистрирован: Ср 29 Август 2007, 14:11
Сообщения: 19
|
Добавлено:
Пт 16 Ноябрь 2007, 10:20
|
  |
А если вылезет на 2 см.? т.к. два полуторных кирпича + швы = 20 см, а чистый пол = балка 15 см + половая доска 3 см = 18 см.
|
|
|
|
  |
 |
|
|