 |
|
 |
| Автор |
Сообщение
|
серпгей
Зарегистрирован: Пн 1 Февраль 2010, 12:32
Сообщения: 4
Регион: сергиев посад
|
Добавлено:
Вт 2 Февраль 2010, 11:56
|
  |
Доброго всем дня. У меня вопрос такого плана...
ПЕЧЬ безнадёжно разваливается , летом мне её как -бы отреставрировали...(была плитка начала отваливаться, прогар в топке... переложили топку, оштукатурили печь...) топлю дровами. Вовремя топки трещины увеличиваются , остывая уменьшаются. Штукатурка (из шамотной глины) тоже отваливается . Топлю 3 дня в неделю , а то и через две недели по выходным(приходится доводить промерзший дом до комфортной температуры), другого вида отопления нет (дача)
Есть ли какие предложения ???
Перекладывать печь...???
Реставрация понимаю бессмысленна, или всё ж возможна...???
Может ли кто заняться ???(или при подобном режиме топки, деньги на ветер...)
Цена вопроса???
|
| Описание: |
|
| Размер файла: |
56.19 КБ |
| Просмотров: |
745 раз(а) |

|
| Описание: |
|
| Размер файла: |
56.05 КБ |
| Просмотров: |
786 раз(а) |

|
| Описание: |
|
| Размер файла: |
59.81 КБ |
| Просмотров: |
806 раз(а) |

|
|
|
  |
 |
серпгей
Зарегистрирован: Пн 1 Февраль 2010, 12:32
Сообщения: 4
Регион: сергиев посад
|
Добавлено:
Вт 2 Февраль 2010, 12:01
|
  |
Печь 1994 года из обычного красного кирпича.
|
| Описание: |
|
| Размер файла: |
57.29 КБ |
| Просмотров: |
819 раз(а) |

|
| Описание: |
|
| Размер файла: |
56.8 КБ |
| Просмотров: |
824 раз(а) |

|
| Описание: |
|
| Размер файла: |
61.42 КБ |
| Просмотров: |
841 раз(а) |

|
|
|
  |
 |
серпгей
Зарегистрирован: Пн 1 Февраль 2010, 12:32
Сообщения: 4
Регион: сергиев посад
|
Добавлено:
Вт 2 Февраль 2010, 12:02
|
  |
Сторона топки
|
| Описание: |
|
| Размер файла: |
62.76 КБ |
| Просмотров: |
825 раз(а) |

|
| Описание: |
| трещина между трубой и печкой |
|
| Размер файла: |
55.23 КБ |
| Просмотров: |
827 раз(а) |

|
| Описание: |
|
| Размер файла: |
57.58 КБ |
| Просмотров: |
833 раз(а) |

|
|
|
  |
 |
серпгей
Зарегистрирован: Пн 1 Февраль 2010, 12:32
Сообщения: 4
Регион: сергиев посад
|
Добавлено:
Вт 2 Февраль 2010, 12:05
|
  |
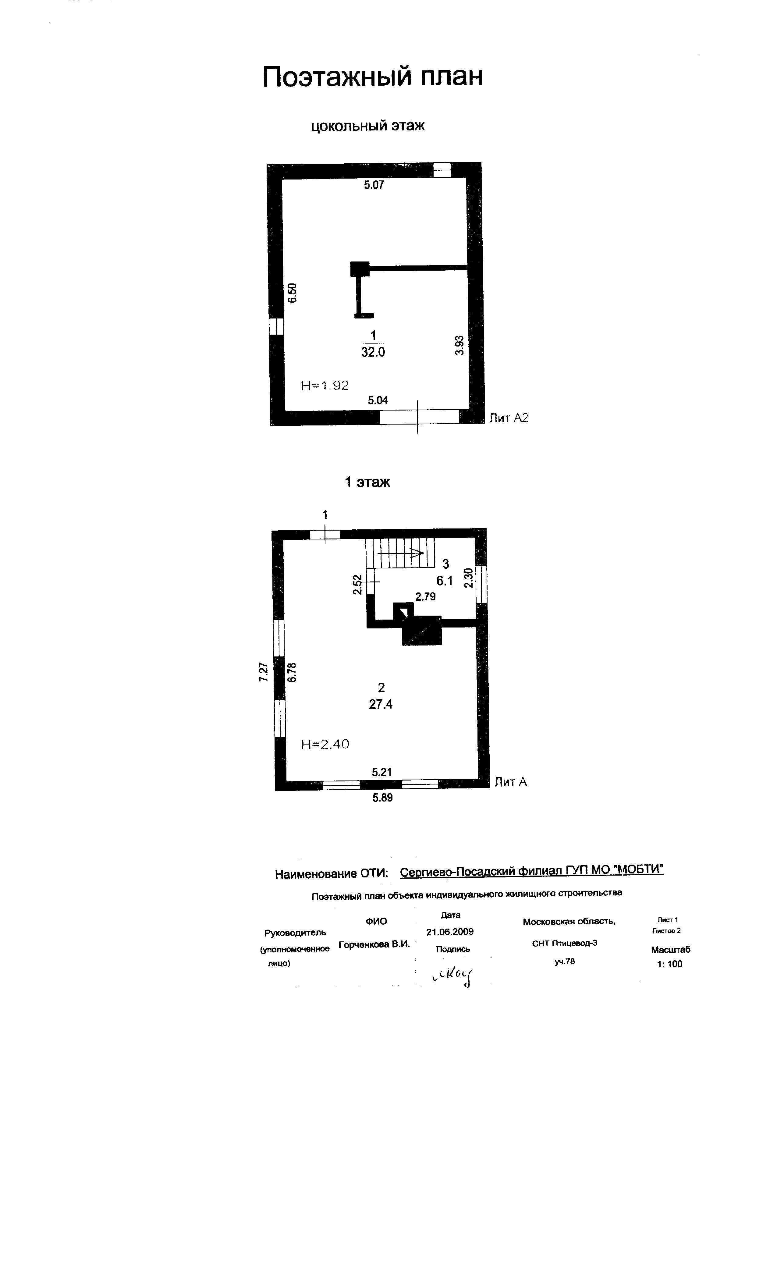
Добавляю план дома для простоты решения проблемы.
|
| Описание: |
|
| Размер файла: |
279.48 КБ |
| Просмотров: |
888 раз(а) |

|
| Описание: |
|
| Размер файла: |
339.94 КБ |
| Просмотров: |
901 раз(а) |

|
|
|
  |
 |
Василий Алимов
Зарегистрирован: Ср 21 Февраль 2007, 13:55
Сообщения: 149
Регион: москва, зеленоград
|
Добавлено:
Чт 4 Февраль 2010, 23:18
|
  |
в данном случае, по моему мнению, пациент скорее мертв чем жив. однозначно ломать и делать новую. а вот по новой печке вариантов много.
|
_________________ Печи и камины любых типов и размеров. Проектирование и изготовление.
8 905 748 02 44
|
|
     |
 |
ВАСЯ

Зарегистрирован: Пн 10 Март 2008, 13:30
Сообщения: 12
Регион: Москва
|
Добавлено:
Вс 11 Апрель 2010, 08:24
|
  |
да печь разваливается но трубу оставить можно не перебирая экономит по работе и деньгам
|
|
|
|
   |
 |
major
Зарегистрирован: Вс 18 Октябрь 2009, 09:44
Сообщения: 29
Регион: Москва
|
Добавлено:
Чт 15 Апрель 2010, 13:50
|
  |
| ВАСЯ писал(а): |
| да печь разваливается но трубу оставить можно не перебирая экономит по работе и деньгам |
По трубе- тоже не все ясно. Нужна инспекция в комплексе.
По фото видно- печь отошла от стены... возможно- это ошибка в обустройстве фундамента.
|
_________________ Вам нужно быстро...или- хорошо?
8(916) 207-3317
|
|
   |
 |
|
|
|
Следующая тема
Предыдущая тема
Вы не можете начинать темы Вы не можете отвечать на сообщения Вы не можете редактировать свои сообщения Вы не можете удалять свои сообщения Вы не можете голосовать в опросах Вы не можете добавлять приложения в этом форуме Вы можете скачивать файлы в этом форуме
|
|