| Автор |
Сообщение
|
papajohn
Зарегистрирован: Пн 17 Май 2010, 16:46
Сообщения: 5
Регион: Москва
|
Добавлено:
Пн 17 Май 2010, 17:01
|
  |
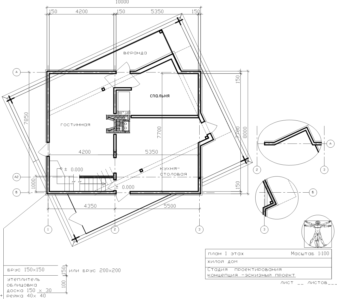
Сейчас стадия рабочего проекта, нужна консультация и реализация, навскидку выбрал РТИК ЗК10
Дом монолитный каркас, стены самонесущие, каркасные, не меньше 150, потолки 2650, гостинная 2х светная.
|
| Описание: |
|
| Размер файла: |
400.37 КБ |
| Просмотров: |
909 раз(а) |

|
|
|
  |
 |
pe4ka
Зарегистрирован: Ср 23 Сентябрь 2009, 17:36
Сообщения: 1918
Регион: Туймазы
|
Добавлено:
Вт 18 Май 2010, 10:22
|
  |
хороша печь овт 11 т-образная она в состав стены входит места не занимает если топку больше сделать то и камин не нужен будет топка будет играть роль камина ипечи все вместе наиль башкирия
|
_________________ окажу консультации по кладке печей каминов и их ремонту д51055 код8-34782 сот 8-9173752622 г.Туймазы башкирия
|
|
   |
 |
papajohn
Зарегистрирован: Пн 17 Май 2010, 16:46
Сообщения: 5
Регион: Москва
|
Добавлено:
Вт 18 Май 2010, 11:40
|
  |
Камин и топка раздельные, т.к. разные помещения, вопрос не в компактности а в функциональности-3 помещения-3функции печи
|
|
|
|
  |
 |
prot.anatolij

Зарегистрирован: Вс 21 Июнь 2009, 10:37
Сообщения: 39
Регион: Россия
|
Добавлено:
Вт 18 Май 2010, 21:37
|
  |
На вскидку - объем печи для данного дома будет маловат. Я бы увеличил в ширину(портал камина) + можно добавить лежанку в спальне.
|
_________________ 89630029900 Анатолий Евгеньевич
89125251130
| Описание: |
|
| Размер файла: |
165.58 КБ |
| Просмотров: |
830 раз(а) |

|
|
|
    |
 |
papajohn
Зарегистрирован: Пн 17 Май 2010, 16:46
Сообщения: 5
Регион: Москва
|
Добавлено:
Вт 18 Май 2010, 21:41
|
  |
Да, выбранная печь с лежанкой, это необходимо-и, если, нужно увеличить-то насколько? сейчас отводим место под фундамент. Стандартная 2700 х 1500
|
|
|
|
  |
 |
Евгений Колчин

Зарегистрирован: Чт 3 Октябрь 2002, 06:26
Сообщения: 10146
Регион: Москва
|
Добавлено:
Вт 18 Май 2010, 21:53
|
  |
вот ваш размерчик
перегородку между гостинной и кухней убираем и делаем зонирование печью
Печь для постоянного проживания!
|
_________________ ************************************
| Описание: |
|
| Размер файла: |
196.65 КБ |
| Просмотров: |
902 раз(а) |

|
|
|
      |
 |
papajohn
Зарегистрирован: Пн 17 Май 2010, 16:46
Сообщения: 5
Регион: Москва
|
Добавлено:
Вт 18 Май 2010, 22:11
|
  |
Интересное предложение! лежанки только нет , по опыту она используется для просушки одежды и постельных принадлежностей... Евгений, можно к такому варианту пристроить лежанку?
|
|
|
|
  |
 |
Евгений Колчин

Зарегистрирован: Чт 3 Октябрь 2002, 06:26
Сообщения: 10146
Регион: Москва
|
Добавлено:
Вт 18 Май 2010, 22:12
|
  |
при необходимости можно, но из планировки-не нужно
|
_________________ ************************************
|
|
      |
 |
papajohn
Зарегистрирован: Пн 17 Май 2010, 16:46
Сообщения: 5
Регион: Москва
|
Добавлено:
Вт 18 Май 2010, 22:24
|
  |
Предложенная печь, бесспорно красива, с лежанкой, я понял, она с таким вариантом,"не в кассу"...
|
|
|
|
  |
 |
Евгений Колчин

Зарегистрирован: Чт 3 Октябрь 2002, 06:26
Сообщения: 10146
Регион: Москва
|
Добавлено:
Вт 18 Май 2010, 22:33
|
  |
совершенно верно, да и по плану ее лучше сместить (немного вниз) от смежной комнаты, учитывая ПП отступки
|
_________________ ************************************
|
|
      |
 |
prot.anatolij

Зарегистрирован: Вс 21 Июнь 2009, 10:37
Сообщения: 39
Регион: Россия
|
Добавлено:
Ср 19 Май 2010, 08:39
|
  |
В любом случае, до начала фундаментных работ стоит пригласить мастера для консультации - рассчитать оптимальные размеры и сделать привязку по месту.
|
_________________ 89630029900 Анатолий Евгеньевич
89125251130
|
|
    |
 |
|
|