Некоммерческое партнерство Альянс Печных Дел Мастера
 RSS  • FAQ  •  Поиск  •  Пользователи  •  Группы   •  Регистрация   •  Избранные темы   •  Профиль  •  Войти и проверить личные сообщения  •  Чат  •  Вход





 Печь для Собора Рождества Пресвятой Богородицы, бр.Зюкины Следующая тема
Предыдущая тема
Начать новую темуОтветить на тему
Автор Сообщение
Сергей68



Зарегистрирован: Пт 5 Декабрь 2008, 21:49
Сообщения: 855
Регион: Питер

СообщениеДобавлено: Вт 17 Сентябрь 2013, 20:16 Ответить с цитатойВернуться к началу

Добрый день печному сообществу.
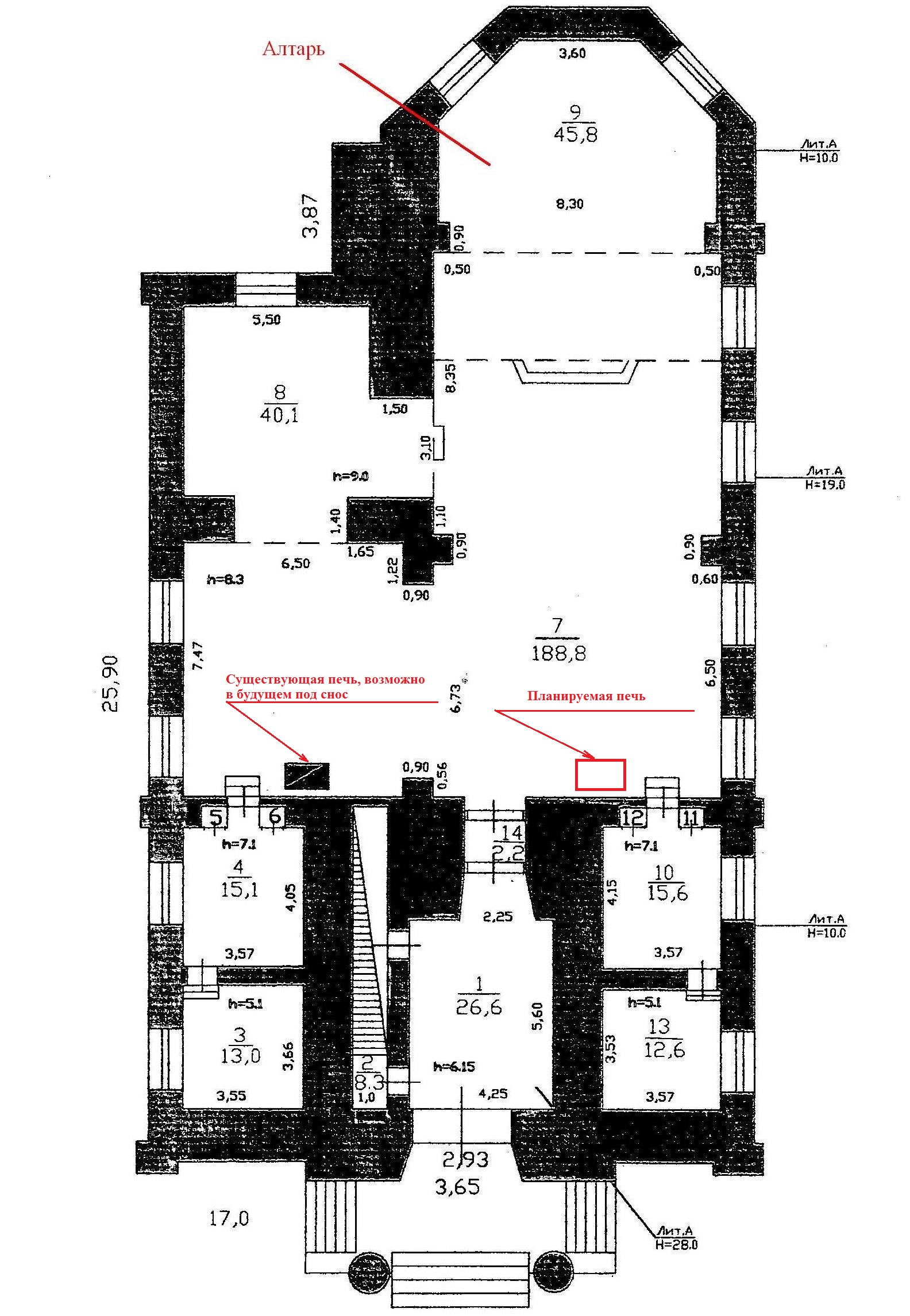
Вышло так, что возможно в ноябре будем сооружать отопительный прибор для вышеуказанного храма. Храм расположен в Новой Ладоге.
Нужна Ваша помощь в доработке конструкции.
Обо всем по прядку.
Одна печь уже стоит, но она по мощности как слону дробина. В плане указаны размеры помещения и высоты по куполу. У настоятеля в планах перейти на газ... но газовщики заломили такой ценник за подвод газа ( 3 км.)... что даже озвучивать не прилично. У прихода таких денег просто нет, посему сроки не определены, а отапливаться надо. Планируется поставить вторую печь ( нашими усилиями) в последующем заменить существующую старую печь на близнеца нашей.

_________________
8-921-743-33-53


image~17177;2 (2).jpg
 Описание:
 Размер файла:  778.56 КБ
 Просмотров:  694 раз(а)

image~17177;2 (2).jpg



DSC_2950 - копия.JPG
 Описание:
 Размер файла:  196.12 КБ
 Просмотров:  640 раз(а)

DSC_2950 - копия.JPG



DSC_2958.JPG
 Описание:
 Размер файла:  329.14 КБ
 Просмотров:  642 раз(а)

DSC_2958.JPG



DSC_2959.JPG
 Описание:
 Размер файла:  130.77 КБ
 Просмотров:  628 раз(а)

DSC_2959.JPG



DSC_2956.JPG
 Описание:
 Размер файла:  142.78 КБ
 Просмотров:  578 раз(а)

DSC_2956.JPG




Последний раз редактировалось: Сергей68 (Вт 17 Сентябрь 2013, 20:28), всего редактировалось 1 раз
Посмотреть профильОтправить личное сообщениеОтправить e-mailПосетить сайт автора
Сергей68



Зарегистрирован: Пт 5 Декабрь 2008, 21:49
Сообщения: 855
Регион: Питер

СообщениеДобавлено: Вт 17 Сентябрь 2013, 20:27 Ответить с цитатойВернуться к началу

За основу конструктива взята печь ПТО-5300. Нижний колпак футеруем шамотом на ребро. Второй колпак увеличиваем на несколько рядов по высоте... ну и хотелось бы прицепить третий... вот по этому вопросу к Вам и обращаюсь... возможно ли это?
Так же, для увеличения теплоотдающей поверхности, поднимаем печь на шанцы.
Дымоход имеется в капитальной стене, правда на чердаке обрублен, придется заново проходить кровлю. Высота дымохода от уровня пола храма, будет примерно 12-14 метров, врезка печи в него примерно на высоте 2 метров.

_________________
8-921-743-33-53


ПТО- 5300 - копия.jpg
 Описание:
 Размер файла:  202.46 КБ
 Просмотров:  733 раз(а)

ПТО- 5300 - копия.jpg



001.jpg
 Описание:
 Размер файла:  101.44 КБ
 Просмотров:  652 раз(а)

001.jpg



003.jpg
 Описание:
 Размер файла:  66.97 КБ
 Просмотров:  608 раз(а)

003.jpg



004.jpg
 Описание:
Окончательный вариант. Все штукатурим и красим
 Размер файла:  71.53 КБ
 Просмотров:  729 раз(а)

004.jpg


Посмотреть профильОтправить личное сообщениеОтправить e-mailПосетить сайт автора
Андрей_Алексеевич



Зарегистрирован: Пн 13 Декабрь 2010, 19:17
Сообщения: 5959
Регион: малая родина Павлова, Скобелева, Циолковского, Уткиных и др.

СообщениеДобавлено: Вт 17 Сентябрь 2013, 20:53 Ответить с цитатойВернуться к началу

Если позволит нутрянка, сделай в 1-рвом колпаке закладку камней для увеличения теплосъёма и объёма "теплоносителя" - как прямоточку банную, либо факельную по сторонам и вниз...
Коли мощщи топки недостанет, третий ярус не делай колпаком Sad , но выполни его ППДК - параллельно подымающимися ДК из общего "лежака" в перекрытии 2-го... Cool
Схема ППДК возможна и сразу после 1-вого яруса, вверх, сколько надобно... Ограничивает высоту, в таком случае, лишь мощность топки да развитость тепловоспринимающих поверхностей.
Воздуху на горение не жалей!
Поддувало для золы - объёмом побольше!
За шанцы - отдельно "уважуха"!
Благословений Вам от Господа!

_________________
Печник - милостью и промыслом Божиим.
Печное отопление частного дома и т.п., авторское сопровождение проектов, наставничество в т.ч. дистанционное, партнёрство в кладке печей.
89106130763 МТС
andrejka61@mail.ru
andrej.kuzmischev@yandex.ru
Посмотреть профильОтправить личное сообщениеПозвонить автору
Сергей68



Зарегистрирован: Пт 5 Декабрь 2008, 21:49
Сообщения: 855
Регион: Питер

СообщениеДобавлено: Вт 17 Сентябрь 2013, 21:47 Ответить с цитатойВернуться к началу

Андрей_Алексеевич писал(а):

Благословений Вам от Господа!

Спасибо Андрей Алексеевич.
Топка пока планируется В*Ш*Гл =980 мм.*380мм.*680 мм.
Топочная дверца со стороны 380 мм. SVT 410.
У прототипа ( ПТО-5300) дымовые газы из топливника по сторонам и вниз ( нижний прогрев) подвертка и наверх во второй колпак. Подъемных 2-ва... может имеет смысл один подъемный во второй колпак, второй сразу в третий... врезка в дымоход в районе границы перекрышки между 2-м и 3-им колпаками??

_________________
8-921-743-33-53
Посмотреть профильОтправить личное сообщениеОтправить e-mailПосетить сайт автора
Андрей_Алексеевич



Зарегистрирован: Пн 13 Декабрь 2010, 19:17
Сообщения: 5959
Регион: малая родина Павлова, Скобелева, Циолковского, Уткиных и др.

СообщениеДобавлено: Вт 17 Сентябрь 2013, 22:44 Ответить с цитатойВернуться к началу

Сергей68 писал(а):
... может имеет смысл один подъемный во второй колпак, второй сразу в третий...


А ДГ ты как "уговариваь станешь" Sad ?
Они ж все рванут в 3-тий Cool
Лучшее- добавь требуемое кол-во колпаков (смотри по "посадке" ТД), но сделай их ПОСЛЕДОВАТЕЛЬНО РАСПОЛОЖЕННЫМИ... с подвёрками в 6-3 ряда, сокращая кол-во.
Сам стал бы делать, как писал ранее - ППДК... надёжнее, проще, меньше прочисток (3-ри в 1-рвом ярусе) - применяется в изразцовых ПТОшках...

_________________
Печник - милостью и промыслом Божиим.
Печное отопление частного дома и т.п., авторское сопровождение проектов, наставничество в т.ч. дистанционное, партнёрство в кладке печей.
89106130763 МТС
andrejka61@mail.ru
andrej.kuzmischev@yandex.ru
Посмотреть профильОтправить личное сообщениеПозвонить автору
Сергей68



Зарегистрирован: Пт 5 Декабрь 2008, 21:49
Сообщения: 855
Регион: Питер

СообщениеДобавлено: Ср 18 Сентябрь 2013, 00:13 Ответить с цитатойВернуться к началу

Андрей_Алексеевич писал(а):

А ДГ ты как "уговариваь станешь" Sad ?

Дык...эта... добрым словом однако Smile
Спасибо Андрей Алексеевич за подсказку.

_________________
8-921-743-33-53
Посмотреть профильОтправить личное сообщениеОтправить e-mailПосетить сайт автора
Андрей_Алексеевич



Зарегистрирован: Пн 13 Декабрь 2010, 19:17
Сообщения: 5959
Регион: малая родина Павлова, Скобелева, Циолковского, Уткиных и др.

СообщениеДобавлено: Ср 18 Сентябрь 2013, 08:41 Ответить с цитатойВернуться к началу

Сергей68 писал(а):
Андрей_Алексеевич писал(а):

А ДГ ты как "уговариваь станешь" Sad ?

Дык...эта... добрым словом однако Smile...


Видать доходчива твоя молитва до Бога! Very Happy
Вот ведь дал же разумение и дедам как строить печи с ПНП...
http://www.violatorsleep.ru/news/pritcha-l-n-tolstoj-tri-starca.html

По печи: после 1-вого яруса собери все ДГ к колпак невысокий под арочный свод шамотный... в нём щели, как в каменках... самые горячие - те, что ближе к выходу подъёмных ДК, делай поменьше сечением 3х12, а те, что подальше по-нарастающей так и дойдёшь до 12х25см...
Рассечки ставь не сплошными стенками! а вразброд...
про ЗЛХ НЕ ПОЗАБУДЬ!!!
В поддувальной дверке сделай 4-тыре отв. Ф=20мм, по углам, для непрекращающегося поступления воздуха на горение... раньше и дверки такие были 20х20 с ажурным рисунком сквозным литьём Cool , для "мощных" топок...

_________________
Печник - милостью и промыслом Божиим.
Печное отопление частного дома и т.п., авторское сопровождение проектов, наставничество в т.ч. дистанционное, партнёрство в кладке печей.
89106130763 МТС
andrejka61@mail.ru
andrej.kuzmischev@yandex.ru
Посмотреть профильОтправить личное сообщениеПозвонить автору
vova230



Зарегистрирован: Ср 24 Март 2010, 00:20
Сообщения: 811
Регион: Беларусь

СообщениеДобавлено: Ср 18 Сентябрь 2013, 10:34 Ответить с цитатойВернуться к началу

Что-то сомнительно мне что даже две такие печи смогут потянуть такой храм
Посмотреть профильОтправить личное сообщениеОтправить e-mail
Сергей68



Зарегистрирован: Пт 5 Декабрь 2008, 21:49
Сообщения: 855
Регион: Питер

СообщениеДобавлено: Ср 18 Сентябрь 2013, 10:38 Ответить с цитатойВернуться к началу

vova230 писал(а):
Что-то сомнительно мне что даже две такие печи смогут потянуть такой храм

Так они и не потянут, но будут большим подспорьем к электрическим обогревателям... коими сейчас храм и отапливается.

_________________
8-921-743-33-53
Посмотреть профильОтправить личное сообщениеОтправить e-mailПосетить сайт автора
vova230



Зарегистрирован: Ср 24 Март 2010, 00:20
Сообщения: 811
Регион: Беларусь

СообщениеДобавлено: Ср 18 Сентябрь 2013, 10:47 Ответить с цитатойВернуться к началу

Вот если бы печь-калорифер соорудить, быстрее тепло пошло бы, да и толку думаю больше было бы. Только это вопросы не ко мне, я таких не строил.
Посмотреть профильОтправить личное сообщениеОтправить e-mail
Сергей68



Зарегистрирован: Пт 5 Декабрь 2008, 21:49
Сообщения: 855
Регион: Питер

СообщениеДобавлено: Ср 18 Сентябрь 2013, 10:59 Ответить с цитатойВернуться к началу

vova230 писал(а):
Вот если бы печь-калорифер соорудить, быстрее тепло пошло бы, да и толку думаю больше было бы. Только это вопросы не ко мне, я таких не строил.

Калорифер будет купол обогревать... нам же нужен нижний прогрев, что бы людям приходящим в храм было комфортно.

_________________
8-921-743-33-53
Посмотреть профильОтправить личное сообщениеОтправить e-mailПосетить сайт автора
vova230



Зарегистрирован: Ср 24 Март 2010, 00:20
Сообщения: 811
Регион: Беларусь

СообщениеДобавлено: Ср 18 Сентябрь 2013, 11:09 Ответить с цитатойВернуться к началу

Сергей68 писал(а):
vova230 писал(а):
Вот если бы печь-калорифер соорудить, быстрее тепло пошло бы, да и толку думаю больше было бы. Только это вопросы не ко мне, я таких не строил.

Калорифер будет купол обогревать... нам же нужен нижний прогрев, что бы людям приходящим в храм было комфортно.
Нижний прогрев это только теплый пол. Тепло от печи все равно будет уходить вверх, к куполу. В храмах это неизбежно. Но калорифер будет активно забирать холодный воздух от пола, а отдавать теплый и тем самым будет активно перемешивать воздух храма не допуская застоя холодного воздуха у пола. Кстати запитать теплый пол от калорифера тоже можно, но это уже капитальный ремонт храма, с заменой полов.
Посмотреть профильОтправить личное сообщениеОтправить e-mail
Гребенчюк Андрей



Зарегистрирован: Чт 9 Сентябрь 2010, 17:23
Сообщения: 1211
Регион: Ленинградская область

СообщениеДобавлено: Ср 18 Сентябрь 2013, 12:20 Ответить с цитатойВернуться к началу

в том то и смысл печь зачем им на такую огромную площадь, для красоты только ведь действительно всё тепло по физике в верху окажется. А вот принцип изготовления печи действительно толковое и совет Андрея Алексеевича очень скажем дельный.
Посмотреть профильОтправить личное сообщение
Андрей_Алексеевич



Зарегистрирован: Пн 13 Декабрь 2010, 19:17
Сообщения: 5959
Регион: малая родина Павлова, Скобелева, Циолковского, Уткиных и др.

СообщениеДобавлено: Ср 18 Сентябрь 2013, 16:37 Ответить с цитатойВернуться к началу

Сергей68 писал(а):
...Храм расположен в Новой Ладоге...


Прежде всего - спустись в подвал, проверь Razz не отапливался ли ранее... "русской ондолью"? - топки под длинющие поленья в подвале, загрузочные люки для дров сбоку от стены... Cool
ПТОшкой является тогда ВЕСЬ ПОЛ!!! Very Happy

_________________
Печник - милостью и промыслом Божиим.
Печное отопление частного дома и т.п., авторское сопровождение проектов, наставничество в т.ч. дистанционное, партнёрство в кладке печей.
89106130763 МТС
andrejka61@mail.ru
andrej.kuzmischev@yandex.ru
Посмотреть профильОтправить личное сообщениеПозвонить автору
Андрей_Алексеевич



Зарегистрирован: Пн 13 Декабрь 2010, 19:17
Сообщения: 5959
Регион: малая родина Павлова, Скобелева, Циолковского, Уткиных и др.

СообщениеДобавлено: Ср 18 Сентябрь 2013, 17:24 Ответить с цитатойВернуться к началу

Сергей68 писал(а):
...Калорифер будет купол обогревать... нам же нужен нижний прогрев, что бы людям приходящим в храм было комфортно.


Калориферы обогревают объём помещения от точки входа холодного воздуха Razz вверх, под купол Very Happy
В подобных строениях, обрати особое внимание, печи имеют "духовые жалюзи-створки". Они, как правило, не герметичны, но и располагаются перед ТД сбоку, либо (чаще) в т.н."холодном рукаве" - там никогда не появляется пепел и сажа Very Happy
По окончании топки (пепел и зола убраны!) поддувальная дверка закрывалась, но открывалась заслонка сбоку у поддувала печи. Через неё холодный воздух от пола через решетки вдоль стен, направлялся сквозь разогретые внутренности печи к открытым створкам. Створки имели "ступенчатую рейку" для регулировки поступления нагретого воздуха Cool
Т.о. сама ПТОшка и являлась и калорифером Радость
А с расчётом объёма кирпича+камней загрузки помогут теоеритики посильнее rtfm
Сам не стал бы делать менее 6 кг на кб.м. отапливаемого объёма... пускай поправят! т.б., что их будет 2-ве....
Важно учесть уменьшение массы "загрузки" с увеличением высоты печи... - та самая "ступенька", что у тебя в эскизах! Тэбе - Маладэц!!!
Буду признателен за простую формулу расчёта :hi
Других схем отопления в строениях старше 150 лет, не встречал... Confused

_________________
Печник - милостью и промыслом Божиим.
Печное отопление частного дома и т.п., авторское сопровождение проектов, наставничество в т.ч. дистанционное, партнёрство в кладке печей.
89106130763 МТС
andrejka61@mail.ru
andrej.kuzmischev@yandex.ru
Посмотреть профильОтправить личное сообщениеПозвонить автору
blago



Зарегистрирован: Сб 12 Февраль 2011, 11:46
Сообщения: 264
Регион: Приволжский ФО

СообщениеДобавлено: Ср 18 Сентябрь 2013, 20:45 Ответить с цитатойВернуться к началу

Никакая печь не обогреет такое большое помещение. Только установка пиролизной печи, с теплообменником и под каждое окошко регистр. Только тогда будет толк. Вот посмотрите эту печь. Загружаете раз в 18 - 20 часов 8 - 10 поленниц и поддерживаете тепло в храме.

_________________
Конструктивные решения по котлам и печам BLAGO. +79177171909


угловая пиролизная печь, с пластинчатым теплообменником (1).jpg
 Описание:
 Размер файла:  198.9 КБ
 Просмотров:  713 раз(а)

угловая пиролизная печь, с пластинчатым теплообменником (1).jpg


Посмотреть профильОтправить личное сообщениеОтправить e-mailПосетить сайт автора
Ivan20051



Зарегистрирован: Вс 10 Январь 2010, 18:25
Сообщения: 362
Регион: Псков

СообщениеДобавлено: Чт 19 Сентябрь 2013, 13:26 Ответить с цитатойВернуться к началу

На самом деле почему вы не смотрите в сторону котлов например КИК, ведь храм это место временного пребывания., Печь вашу угробят, будут топить до потери сознания в ожидании тепла.Только теплоемкий котел плюс батареи

_________________
89062208974
Посмотреть профильОтправить личное сообщениеОтправить e-mailПозвонить авторуICQ Number
blago



Зарегистрирован: Сб 12 Февраль 2011, 11:46
Сообщения: 264
Регион: Приволжский ФО

СообщениеДобавлено: Чт 19 Сентябрь 2013, 13:38 Ответить с цитатойВернуться к началу

Верная мысль, поддерживаю. Но не КИК, а пиролизная печь.

_________________
Конструктивные решения по котлам и печам BLAGO. +79177171909
Посмотреть профильОтправить личное сообщениеОтправить e-mailПосетить сайт автора
Виктор_А



Зарегистрирован: Чт 6 Январь 2011, 17:01
Сообщения: 850
Регион: МО г.Серпухов

СообщениеДобавлено: Чт 19 Сентябрь 2013, 15:30 Ответить с цитатойВернуться к началу

Ну печи все на пиролизе-выделение газов, основанное на температурном воздействии Very HappyВ Вашем случае-обратное движение газов Very Happy
Посмотреть профильОтправить личное сообщениеОтправить e-mailПозвонить автору
blago



Зарегистрирован: Сб 12 Февраль 2011, 11:46
Сообщения: 264
Регион: Приволжский ФО

СообщениеДобавлено: Чт 19 Сентябрь 2013, 15:56 Ответить с цитатойВернуться к началу

Виктор_А писал(а):
Ну печи все на пиролизе-выделение газов, основанное на температурном воздействии Very HappyВ Вашем случае-обратное движение газов Very Happy

Не согласен с вами. Пиролиз и пиролизное сжигание топлива, это совсем другое.

_________________
Конструктивные решения по котлам и печам BLAGO. +79177171909
Посмотреть профильОтправить личное сообщениеОтправить e-mailПосетить сайт автора
Показать сообщения:      
Начать новую темуОтветить на тему


 Перейти:   



Следующая тема
Предыдущая тема
Вы не можете начинать темы
Вы не можете отвечать на сообщения
Вы не можете редактировать свои сообщения
Вы не можете удалять свои сообщения
Вы не можете голосовать в опросах
Вы не можете добавлять приложения в этом форуме
Вы можете скачивать файлы в этом форуме




Проект форум печников "Альянс. Печных Дел Мастера" © 2006-2026