| Автор |
Сообщение
|
KLIM
Зарегистрирован: Вс 13 Январь 2013, 18:06
Сообщения: 41
Регион: Москва
|
Добавлено:
Ср 16 Январь 2013, 21:29
|
  |
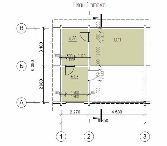
Добрый день !
Помогите определится, что делать с печкой.
В приложении план заказанной мною бани.
Помещение 13,11 м кв. - парилка.
Понимаю, что поступил глупо, но в парилке отлил армированнную плиту размером 3100*1600*145. Плита проходит вдоль стены "2" на расстоянии 700 мм от неё, поперёк всего помещения парной.
Планировал одно, но начитавшись Вашего форума, захотелось полноценную кирпичную печь.
Можно ли печь размещать на армированной плите ?
Многие печи с топкой из другого помещения, у меня так не получится, скорее всего, какую печь можно установить при ниже указанной планировке?
Скачать Баня.PDF с WebFile.RU
|
| Описание: |
|
| Размер файла: |
14.84 КБ |
| Просмотров: |
1110 раз(а) |

|
| Описание: |
|
| Размер файла: |
24.92 КБ |
| Просмотров: |
994 раз(а) |

|
| Описание: |
|
| Размер файла: |
45.72 КБ |
| Просмотров: |
991 раз(а) |

|
|
|
  |
 |
sergey166
Зарегистрирован: Пн 12 Декабрь 2011, 10:30
Сообщения: 176
Регион: Тюмень
|
Добавлено:
Чт 17 Январь 2013, 08:58
|
  |
Не знаю на счет печи и фундамента под неё, а самая правильная банная кирпичная печь - та которая всеми 4-мя сторонами в парилке. Так, что не переживайте концепция правильная...
|
|
|
|
  |
 |
Андрей_Алексеевич

Зарегистрирован: Пн 13 Декабрь 2010, 19:17
Сообщения: 5956
Регион: малая родина Павлова, Скобелева, Циолковского, Уткиных и др.
|
Добавлено:
Чт 17 Январь 2013, 09:28
|
  |
Вы на плане заштриховали бы место расположения фундамента, для наглядности...
|
_________________ Печник - милостью и промыслом Божиим.
Печное отопление частного дома и т.п., авторское сопровождение проектов, наставничество в т.ч. дистанционное, партнёрство в кладке печей.
89106130763 МТС
andrejka61@mail.ru
andrej.kuzmischev@yandex.ru
|
|
   |
 |
Kolek2012

Зарегистрирован: Вт 10 Январь 2012, 09:37
Сообщения: 445
Регион: Нижний Новгород
|
Добавлено:
Чт 17 Январь 2013, 14:07
|
  |
| KLIM писал(а): |
Помещение 13,11 м кв. - парилка. |
Не забудьте про высоту потолков не менее 2,5 м.
| KLIM писал(а): |
| Планировал одно, но начитавшись Вашего форума, захотелось полноценную кирпичную печь. |
Это Вы правильно захотели.
| KLIM писал(а): |
| Можно ли печь размещать на армированной плите ? |
Мой совет не как печника, а как активного пользователя, размещайте печь как будет эффективнее с точки зрения прогрева помещения, получения пара. И если плита не вписывается в эту концепцию, то ну её нафиг, эту плиту. Лучше потерять 1 раз деньги на заливку не понадобившейся плиты, чем потом всю жизнь жалеть о том, что печь установил не в нужном месте, а на этой самой злосчастной плите.
| KLIM писал(а): |
| Многие печи с топкой из другого помещения, у меня так не получится |
А как планируете отапливать другие помещения?
|
|
|
|
    |
 |
KLIM
Зарегистрирован: Вс 13 Январь 2013, 18:06
Сообщения: 41
Регион: Москва
|
Добавлено:
Чт 17 Январь 2013, 18:03
|
  |
Потолки будут 2,5 м., на чертеже не совсем правильно, половые лаги ниже чем цоколь;
Помимо того, что я отлил эту плиту,я ещё внизу сделал стяжку с уклоном и стоком в канализацию через гидрозатворы.
Колодец рядом - нельзя мыльную воду сливать на землю.
Сломать плиту сразу жалко Есть ли у кого нибудь опыт установки печи на плиту опирающуюся на края фундамента ?
Скачать Баня 1.pdf с WebFile.RU
Плиту нарисовал.
|
|
|
|
  |
 |
Дмитрий Мыльников
Зарегистрирован: Пн 25 Октябрь 2010, 15:30
Сообщения: 140
Регион: Тюмень
|
Добавлено:
Чт 17 Январь 2013, 18:54
|
  |
Ставили печь банную, которая 2 сторонами проходит вдоль фундамента по плите лет шесть назад. Общий вес 5 тонн, пока стоит ровно, трещин ни где нет. Хотя так не совсем правильно.
Лучше бы уточнить у производителя максимальную нагрузку возможную
|
|
|
|
   |
 |
Павел_П

Зарегистрирован: Чт 6 Август 2009, 09:12
Сообщения: 423
Регион: Москва
|
Добавлено:
Чт 7 Февраль 2013, 08:59
|
  |
| KLIM писал(а): |
...
Понимаю, что поступил глупо, но в парилке отлил армированнную плиту размером 3100*1600*145. Плита проходит вдоль стены "2" на расстоянии 700 мм от неё, поперёк всего помещения парной.
Планировал одно, но начитавшись Вашего форума, захотелось полноценную кирпичную печь.
Можно ли печь размещать на армированной плите ?
|
можете так заморочиться:
- отчертите место нахождения печи
- по центру рисуете квадрат 400х400
- в плите долбите делаете "люк", но арматуру не трогаете
- через отверстие выкладываете из кирпича опалубку где-то 600х600 /сможете откопать приямок и отсыпать песком вообще отлично/
- армируете столб с выпуском арматуры выше пола, перевязывая с арматурой плиты
- заливаете столб, одновременно по периметру печи +50 /+100/ доливаете армированную подушку
вот как-то так. это не выдумка, делали так с одним въедливым заказчиком. у него правда подпол был метра 1,5 ...
|
_________________ щи да каша - пища наша
|
|
   |
 |
KLIM
Зарегистрирован: Вс 13 Январь 2013, 18:06
Сообщения: 41
Регион: Москва
|
Добавлено:
Чт 7 Февраль 2013, 17:04
|
  |
Спасибо ! Это реально сделать.
|
|
|
|
  |
 |
Павел_П

Зарегистрирован: Чт 6 Август 2009, 09:12
Сообщения: 423
Регион: Москва
|
Добавлено:
Чт 7 Февраль 2013, 17:58
|
  |
ну здОрово, коли так ! )))
|
_________________ щи да каша - пища наша
|
|
   |
 |
KLIM
Зарегистрирован: Вс 13 Январь 2013, 18:06
Сообщения: 41
Регион: Москва
|
Добавлено:
Вт 19 Февраль 2013, 16:50
|
  |
Ну всё баня поставлена, жду предложений в личку.
|
|
|
|
  |
 |
KLIM
Зарегистрирован: Вс 13 Январь 2013, 18:06
Сообщения: 41
Регион: Москва
|
Добавлено:
Вс 28 Апрель 2013, 13:07
|
  |
Понял, что КП не потяну финансово.
Заказал МП Тройка 6Р, под обкладку кирпичём. Посмотрим, что получится.
|
|
|
|
  |
 |
KLIM
Зарегистрирован: Вс 13 Январь 2013, 18:06
Сообщения: 41
Регион: Москва
|
Добавлено:
Пн 27 Май 2013, 20:10
|
  |
|
  |
 |
Андрей_Алексеевич

Зарегистрирован: Пн 13 Декабрь 2010, 19:17
Сообщения: 5956
Регион: малая родина Павлова, Скобелева, Циолковского, Уткиных и др.
|
Добавлено:
Пн 27 Май 2013, 21:13
|
  |
Аккуратная кладка!
А что не решёточки, хотя бы внизу?
|
_________________ Печник - милостью и промыслом Божиим.
Печное отопление частного дома и т.п., авторское сопровождение проектов, наставничество в т.ч. дистанционное, партнёрство в кладке печей.
89106130763 МТС
andrejka61@mail.ru
andrej.kuzmischev@yandex.ru
|
|
   |
 |
KLIM
Зарегистрирован: Вс 13 Январь 2013, 18:06
Сообщения: 41
Регион: Москва
|
Добавлено:
Пн 27 Май 2013, 21:24
|
  |
В следующей печке "Андрей...." наверное воплотит По мне и дверцы нормально Думаю, что у них режимы будут только "открыто - закрыто".
|
|
|
|
  |
 |
KLIM
Зарегистрирован: Вс 13 Январь 2013, 18:06
Сообщения: 41
Регион: Москва
|
Добавлено:
Пн 27 Май 2013, 21:30
|
  |
З.Ы. печь пока не топил для парения. Ещё много в парилке доделывать.
|
|
|
|
  |
 |
Безумный Печник

Зарегистрирован: Чт 2 Февраль 2012, 21:43
Сообщения: 3221
Регион: спб
|
Добавлено:
Вт 28 Май 2013, 23:44
|
  |
КЛИМ но вот а ты боялся сомневался !!! не дорого и стильно про пар отпишись
|
_________________ Русская Печная АртелЪ -Возрождение старинных ремесел. Печные работы под ключ от зонтика до зольника . 89213537822
|
|
    |
 |
KLIM
Зарегистрирован: Вс 13 Январь 2013, 18:06
Сообщения: 41
Регион: Москва
|
Добавлено:
Ср 29 Май 2013, 22:34
|
  |
|
  |
 |
Андрей ..

Зарегистрирован: Ср 16 Ноябрь 2011, 07:49
Сообщения: 1163
Регион: Нижегородская обл.
|
Добавлено:
Пт 31 Май 2013, 06:13
|
  |
| Андрей_Алексеевич писал(а): |
Аккуратная кладка!
А что не решёточки, хотя бы внизу? |
Там под печью отдельный канал с задвижкой для забора свежего воздуха с улицы, поэтому конвекцию из парной надо перекрывать.
|
|
|
|
    |
 |
KLIM
Зарегистрирован: Вс 13 Январь 2013, 18:06
Сообщения: 41
Регион: Москва
|
Добавлено:
Вс 11 Август 2013, 22:48
|
  |
Доделал потолок, топил печку.
двери пока нет, повесил одеяло, пол не доделан.. По китайскому термометру более 75 достичь не удалось. Гигрометр китайский отказался показывать влажность
Закуплюсь качественными приборами и продолжу эксперименты.
На вечер второго дня в парилке тепло, 50 град., но это наверное не показатель, т.к. на улице 28 град.
|
|
|
|
  |
 |
Вадим Борисыч

Зарегистрирован: Пт 16 Апрель 2010, 08:54
Сообщения: 340
Регион: Камчатка
|
Добавлено:
Пн 12 Август 2013, 01:33
|
  |
| KLIM писал(а): |
| ... более 75 достичь не удалось... |
Более 70 гр в парилке очень вредно для здоровья, в особенности для легких
|
_________________ С уважением, В.Б.
|
|
  |
 |
|
|