| Автор |
Сообщение
|
Slav
Зарегистрирован: Вт 4 Октябрь 2011, 11:34
Сообщения: 9
Регион: Иркутск
|
Добавлено:
Вт 4 Октябрь 2011, 11:47
|
  |
--------------------------------------------------------------------------------
Добрый день.
Этим летом построил баню-дом...встал вопрос установки печи. Первоначально планировал установить железную, но чем больше их рассматриваю, тем больше сомнений...
И в конце-концов склонился к кирпичной печи.
Помогите пожалуйста подобрать конкретный проект под имеющиеся условия:
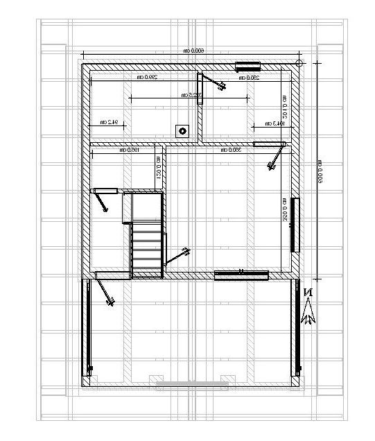
- парилка 2*3 м, мойка 2*3 м, комната оттдыха, мансардный этаж..
(сруб 6*6 с капитальной стеной + веранда, перегородки пока не ставил), под парилкой и мойкой залита плита...
- обязательное условие - печь постоянного действия
- предполагаю нагрев вводы посредством регистра
|
| Описание: |
|
| Размер файла: |
66.32 КБ |
| Просмотров: |
1121 раз(а) |

|
|
|
  |
 |
Евгений Колчин

Зарегистрирован: Чт 3 Октябрь 2002, 06:26
Сообщения: 10145
Регион: Москва
|
Добавлено:
Вт 4 Октябрь 2011, 13:11
|
  |
отопление бани чем?
|
_________________ ************************************
|
|
      |
 |
Slav
Зарегистрирован: Вт 4 Октябрь 2011, 11:34
Сообщения: 9
Регион: Иркутск
|
Добавлено:
Ср 5 Октябрь 2011, 03:20
|
  |
| Евгений Колчин писал(а): |
| отопление бани чем? |
в мойке - тёплый пол, в КО электрообогрев, 2-ой этаж зимой первое время планирую не эксплуатировать...дальше - будет видно...
|
|
|
|
  |
 |
Slav
Зарегистрирован: Вт 4 Октябрь 2011, 11:34
Сообщения: 9
Регион: Иркутск
|
Добавлено:
Ср 5 Октябрь 2011, 03:52
|
  |
| Евгений Колчин писал(а): |
| отопление бани чем? |
Евгений, просматривая форум, кажется у Вас, я встретил печь, которая мне приглянулась, но не знаю, подойдёт ли она для моей бани... по размерам и "нагревам"...
|
| Описание: |
|
| Размер файла: |
29.13 КБ |
| Просмотров: |
981 раз(а) |

|
|
|
  |
 |
Евгений Колчин

Зарегистрирован: Чт 3 Октябрь 2002, 06:26
Сообщения: 10145
Регион: Москва
|
Добавлено:
Ср 5 Октябрь 2011, 07:22
|
  |
В случае применения данной модели печи вам придется менять моечную с парной местами. Иначе не знаю, как "привязать" ее к проекту.
Этой печью вы прогреете всю баню.
|
_________________ ************************************
|
|
      |
 |
Slav
Зарегистрирован: Вт 4 Октябрь 2011, 11:34
Сообщения: 9
Регион: Иркутск
|
Добавлено:
Ср 5 Октябрь 2011, 09:31
|
  |
| Евгений Колчин писал(а): |
В случае применения данной модели печи вам придется менять моечную с парной местами. Иначе не знаю, как "привязать" ее к проекту.
Этой печью вы прогреете всю баню. |
Не могли бы Вы пдсказать её размеры и показать её тыл?..
Имеется ли возможность её, так сказать, модернизации "зеркально"? (чтобы сохранить расположение парной и моечной)
|
| Описание: |
|
| Размер файла: |
28.83 КБ |
| Просмотров: |
900 раз(а) |

|
|
|
  |
 |
Евгений Колчин

Зарегистрирован: Чт 3 Октябрь 2002, 06:26
Сообщения: 10145
Регион: Москва
|
Добавлено:
Ср 5 Октябрь 2011, 10:16
|
  |
Зеркалить можно...вот только все одно не пойму, как вы ее будете устанавливать. Размер печи 6.5х4 кирпича
|
_________________ ************************************
|
|
      |
 |
Slav
Зарегистрирован: Вт 4 Октябрь 2011, 11:34
Сообщения: 9
Регион: Иркутск
|
Добавлено:
Ср 5 Октябрь 2011, 11:02
|
  |
| Евгений Колчин писал(а): |
| Зеркалить можно...вот только все одно не пойму, как вы ее будете устанавливать. Размер печи 6.5х4 кирпича |
...а такой вариант установки не получится?
|
| Описание: |
|
| Размер файла: |
59.69 КБ |
| Просмотров: |
978 раз(а) |

|
|
|
  |
 |
Евгений Колчин

Зарегистрирован: Чт 3 Октябрь 2002, 06:26
Сообщения: 10145
Регион: Москва
|
Добавлено:
Ср 5 Октябрь 2011, 11:57
|
  |
если так, то норма...
|
_________________ ************************************
|
|
      |
 |
Slav
Зарегистрирован: Вт 4 Октябрь 2011, 11:34
Сообщения: 9
Регион: Иркутск
|
Добавлено:
Ср 5 Октябрь 2011, 12:13
|
  |
| Евгений Колчин писал(а): |
| если так, то норма... |
...и всё же где можно увидеть обратную сторону этой печи?..возможно ли её сдвинуть в сторону таким образом. чтобы часть печи находилась в помывочной?
...и если я правильно понял, то её размер ~1м*1.7м? Простите за делитантство..
|
|
|
|
  |
 |
Евгений Колчин

Зарегистрирован: Чт 3 Октябрь 2002, 06:26
Сообщения: 10145
Регион: Москва
|
Добавлено:
Ср 5 Октябрь 2011, 13:28
|
  |
размер такой...
но вот зеркалить лучше парная-моечная по проекту
поскольку каменка находиться над топкой
задняя сторона печи есть сплошная кладка с одной дверцей каменки на высоте 16(18) ряда, не считая прочисток и задвижек
нет под рукой, надо искать фото
|
_________________ ************************************
|
|
      |
 |
Slav
Зарегистрирован: Вт 4 Октябрь 2011, 11:34
Сообщения: 9
Регион: Иркутск
|
Добавлено:
Чт 6 Октябрь 2011, 03:29
|
  |
| Евгений Колчин писал(а): |
размер такой...
но вот зеркалить лучше парная-моечная по проекту
поскольку каменка находиться над топкой
задняя сторона печи есть сплошная кладка с одной дверцей каменки на высоте 16(18) ряда, не считая прочисток и задвижек
нет под рукой, надо искать фото |
Помогите, пожалуйста найти проект, порядовку этой печи.
|
|
|
|
  |
 |
Марк
Зарегистрирован: Пт 18 Ноябрь 2011, 19:43
Сообщения: 6
Регион: Украина
|
Добавлено:
Вт 6 Декабрь 2011, 18:08
|
  |
Присоединяюсь к Slav.
Склоняюсь к данному проэкту. Помогите найти порядовки и подробный проэкт...
|
|
|
|
  |
 |
odincow
Зарегистрирован: Вс 22 Январь 2012, 09:07
Сообщения: 10
Регион: Екатеринбург
|
Добавлено:
Вс 22 Январь 2012, 11:45
|
  |
|
  |
 |
|
|